Pulverbatch, Shrewsbury
By Roger Parry & Partners
£ 450,000
Reviews
3 out of 5 stars
Roger Parry & Partners says ..
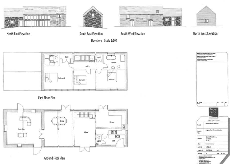
An extremely rare opportunity to purchase a detached barn with adjoining land extending to 5 acres. The property has planning permission to convert to a large three bedroomed property, planning number 23/00391/FUL Shropshire County Council. Extending to approximately 196 square metres and will ev...
Property Oracle says ..
This property listing presents a unique opportunity to acquire a large plot of land (approximately 5 acres) with a substantial barn in Pulverbatch, Shropshire. The barn itself is currently derelict and requires complete renovation to become a habitable dwelling. Planning permission may already exist, however this is not explicitly stated. The images show a structure that needs extensive work, both internally and potentially externally. There is substantial potential to create a large family home, given the size of the property and land. While not stated, the rural location in Pulverbatch suggests a relatively quiet and peaceful setting. The proximity to Shrewsbury and access to transportation (Church Stretton train station) should also be noted. The lack of precise details on internal measurements and the existing state of the barn and planning permission make it hard to assess the overall value for money. Further investigation into planning permissions and potential construction costs would be needed for a definitive assessment. Potential buyers should factor in the substantial cost of renovation and completion before committing. The existing amenities shown are a distance away, and the time taken to reach them would need considering.
Therefore, we give this property 6 / 10. *Disclaimer: This is our option and does constitute a recommendation or financial advice. Do your own research. *
- Price
- 7
- Condition
- 4
- Location
- 6
- Land
- 8
- Bedrooms
- 3
- Bathrooms
- 3
- Sqft (est)
- 1,700.00
The heatmap indicates the level of crime in the area. The color of the heatmap indicates the crime severity and recency.
Metrics Year-on-Year
- Average area value
- 243,278.00 £Decreased by 3.15 %
- Est sale value
- 532,100.00 £Increased by 28.81 %
- Average area rental value
- 1,186.00 £/moIncreased by 12.42 %
- Est letting value
- 1,700.00 £/moUnchanged by 0.00 %
- Est rental Yield
- 5.85 %Increased by 16.07 %
- Crime Rate
- 0.00 %
Agent Activity
Roger Parry & Partners created the listing.
Nearby Schools
| Name | Type | Ofsted | Distance |
|---|---|---|---|
| Pontesbury Cofe Primary School | Voluntary Controlled School | Outstanding | 5.04 KM |
| Mary Webb School And Science College | Academy Converter | 5.08 KM | |
| Longden Cofe Primary School | Voluntary Aided School | Good | 6.00 KM |
| Minsterley Primary School | Community School | Good | 8.12 KM |
| St Thomas And St Anne Cofe Primary School | Voluntary Controlled School | Good | 8.30 KM |
Images
Nearby Streets
| Name | Average Price | Average Sqft | Distance |
|---|---|---|---|
| Puntley Road | £ 0 | 0 | 0.00 KM |
Nearby Transport
| Name | NLC | TLC | Distance |
|---|---|---|---|
| Church Stretton | 4365 | CTT | 9.93 KM |
Nearby Listings
| Address | Price | Type | Score | Distance |
|---|---|---|---|---|
| Pulverbatch, Shrewsbury | £ 450,000 | BUY | 6 / 10 | 0.00 KM |
| Land at Cothercott Hill, near Pulverbatch, Shrewsbury | £ 690,000 | BUY | Unknown | 0.18 KM |
| Pulverbatch, Shrewsbury | £ 410,000 | BUY | Unknown | 1.09 KM |
| Outrack Cottage and Land, Pulverbatch, Shrewsbury, Shropshire | £ 475,000 | BUY | Unknown | 1.17 KM |
| Woodcock Inn, Pulverbatch, Shrewsbury, SY5 8DS | £ 450,000 | BUY | Unknown | 1.18 KM |
Nearby Properties
| Address | Price | Distance |
|---|---|---|
| 1 Bebbington Cottages | £ 169,500 | 1.18 KM |
| 4 Bebbington Cottages | £ 196,000 | 1.18 KM |
| 9 Bebbington Cottages | £ 100,000 | 1.18 KM |
| 6 Bebbington Cottages | £ 89,000 | 1.18 KM |
| 3 Bebbington Cottages | £ 224,000 | 1.18 KM |