Knightsbridge Court, West Bars, Chesterfield
By Wilkins Vardy Residential
£ 129,950
Reviews
2 out of 5 stars
Wilkins Vardy Residential says ..
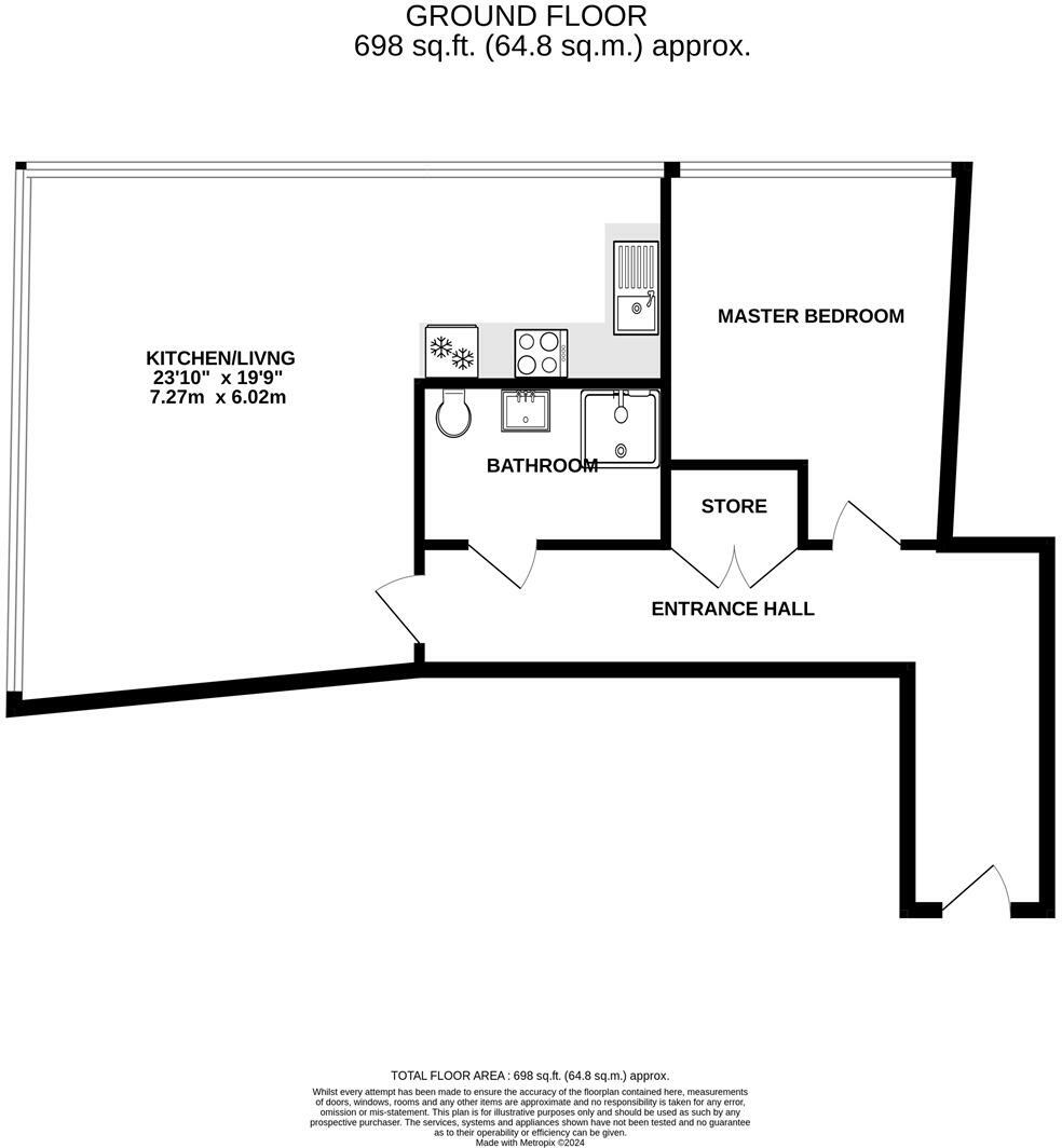
*** LARGE ONE BED GROUND FLOOR APARTMENT IN TOWN CENTRE LOCATION *** COME AND TAKE A VIRTUAL LOOK AROUND THESE IMPRESSIVE TOWN CENTRE APARTMENTS WITH 900+ YEAR LEASE, NO GROUND RENT & MANAGEABLE SERVICE CHARGE. Sitting in the recently converted former court house buildings whic...
Property Oracle says ..
This one-bedroom apartment at Knightsbridge Court, Chesterfield, presents a mixed bag for potential buyers. The property’s location in the town centre offers excellent access to shops, amenities and transportation links, and its proximity to well-rated primary schools makes it appealing to families. The interior is presented in good condition, with modern fixtures and fittings suggesting a recent renovation or conversion. The apartment itself is bright and spacious. However, the lack of a private garden or outdoor space is a notable drawback. Further complicating the property’s desirability is the aesthetic of the exterior which may not appeal to all buyers. The list price should be carefully considered in comparison to similar properties in the area. While the interior is well-presented, its price relative to other units in the same development appears elevated, suggesting a thorough market analysis is needed before purchase.
Therefore, we give this property 5 / 10. *Disclaimer: This is our option and does constitute a recommendation or financial advice. Do your own research. *
- Price
- 6
- Condition
- 8
- Location
- 7
- Land
- 1
- Bedrooms
- 1
- Bathrooms
- 1
- Sqft (est)
- 2,152.78
The heatmap indicates the level of crime in the area. The color of the heatmap indicates the crime severity and recency.
Metrics Year-on-Year
- Average area value
- 297,500.00 £Increased by 10.75 %
- Est sale value
- 527,431.10 £Increased by 2.51 %
- Average area rental value
- 708.00 £/moDecreased by 0.84 %
- Est letting value
- 0.00 £/mo
- Est rental Yield
- 2.86 %Decreased by 10.34 %
- Crime Rate
- 5.00 %Unchanged by 0.00 %
Agent Activity
Wilkins Vardy Residential created the listing.
Nearby Schools
| Name | Type | Ofsted | Distance |
|---|---|---|---|
| St Mary'S Catholic Primary | Voluntary Aided School | Good | 0.47 KM |
| Abercrombie Primary School | Community School | Good | 0.89 KM |
| Parkside Community School | Community School | Good | 0.90 KM |
| Chesterfield College | Further Education | Requires improvement | 1.05 KM |
| Brampton Primary School | Community School | Good | 1.14 KM |
Images
Nearby Streets
| Name | Average Price | Average Sqft | Distance |
|---|---|---|---|
| New Square | £ 0 | 0 | 0.00 KM |
| Rose Hill | £ 0 | 0 | 0.00 KM |
| Queen Street | £ 190,000 | 0 | 0.00 KM |
| New Street | £ 180,000 | 0 | 0.00 KM |
| West Street | £ 0 | 0 | 0.00 KM |
Nearby Transport
| Name | NLC | TLC | Distance |
|---|---|---|---|
| Chesterfield | 6615 | CHD | 1.51 KM |
| Dronfield | 6616 | DRO | 8.25 KM |
Nearby Listings
| Address | Price | Type | Score | Distance |
|---|---|---|---|---|
| Knightsbridge Court, West Bars, Chesterfield | £ 129,950 | BUY | 5 / 10 | 0.00 KM |
| Knightsbridge Court, West Bars, Chesterfield | £ 169,500 | BUY | 6 / 10 | 0.00 KM |
| Knightsbridge Court, West Bars, Chesterfield | £ 185,000 | BUY | 8 / 10 | 0.00 KM |
| Knightsbridge Court, West Bars, Chesterfield | £ 148,000 | BUY | Unknown | 0.00 KM |
| West Bars, Chesterfield, Derbyshire, S40 | £ 138,000 | BUY | 6 / 10 | 0.01 KM |
Nearby Properties
| Address | Price | Distance |
|---|---|---|
| 21 Albion Road | £ 155,000 | 0.11 KM |
| 17 Albion Road | £ 140,000 | 0.11 KM |
| 29 Albion Road | £ 200,000 | 0.11 KM |
| 20 Albion Road | £ 164,000 | 0.11 KM |
| 3 Clarence Road | £ 92,500 | 0.12 KM |