Arrowsmith Drive, Alsager, Stoke-on-Trent, Cheshire
By Springbok Properties
£ 238,000
Reviews
3 out of 5 stars
Springbok Properties says ..
This appealing home combines practical living space with excellent transport connections and access to schools, amenities, and green spaces, making it a strong choice for a wide range of buyers.
Property Oracle says ..
Therefore, we give this property 6 / 10. *Disclaimer: This is our option and does constitute a recommendation or financial advice. Do your own research. *
- Price
- 5
- Condition
- 6
- Location
- 8
- Land
- 7
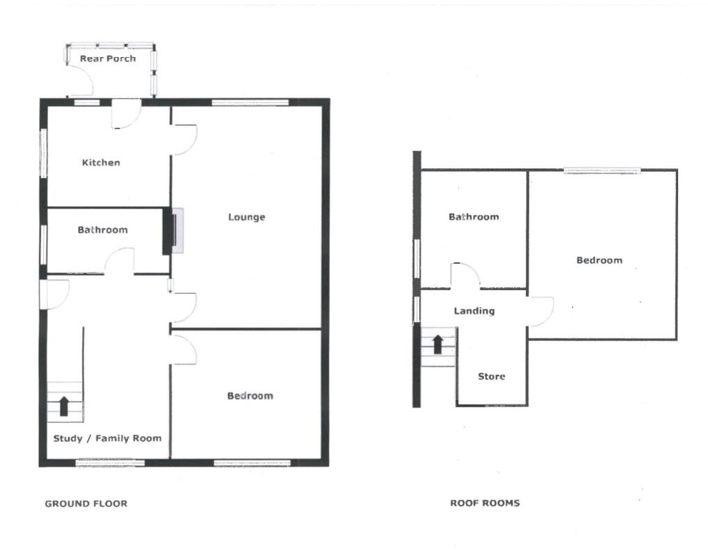
- Bedrooms
- 2
- Bathrooms
- 2
- Sqft (est)
- 792.00
The heatmap indicates the level of crime in the area. The color of the heatmap indicates the crime severity and recency.
Metrics Year-on-Year
- Average area value
- 220,900.00 £Decreased by 29.15 %
- Est sale value
- 164,736.00 £Decreased by 24.91 %
- Average area rental value
- 1,048.00 £/moDecreased by 5.76 %
- Est letting value
- 0.00 £/mo
- Est rental Yield
- 5.69 %Increased by 32.94 %
- Crime Rate
- 2.00 %Unchanged by 0.00 %
from 311,779.00 £
from 219,384.00 £
from 1,112.00 £/mo
from 0.00 £/mo
from 4.28 %
from 2.00 %
Agent Activity
Springbok Properties created the listing.
Nearby Schools
| Name | Type | Ofsted | Distance |
|---|---|---|---|
| Alsager School | Academy Converter | Outstanding | 0.43 KM |
| Cranberry Academy | Academy Sponsor Led | Good | 0.47 KM |
| Pikemere School | Academy Converter | 0.96 KM | |
| St Gabriel'S Catholic Primary School | Voluntary Aided School | Outstanding | 1.15 KM |
| Alsager Highfields Community Primary School | Academy Sponsor Led | 1.81 KM |
Images
Nearby Streets
| Name | Average Price | Average Sqft | Distance |
|---|---|---|---|
| Parish Close | £ 340,000 | 0 | 0.00 KM |
| Padston Drive | £ 257,000 | 0 | 0.00 KM |
| Beechwood Drive | £ 775,000 | 0 | 0.00 KM |
| Nightingale Way | £ 0 | 0 | 0.00 KM |
| Duncan Road | £ 492,500 | 0 | 0.00 KM |
Nearby Transport
| Name | NLC | TLC | Distance |
|---|---|---|---|
| Alsager | 1223 | ASG | 2.37 KM |
| Kidsgrove | 1229 | KDG | 8.41 KM |
Nearby Listings
| Address | Price | Type | Score | Distance |
|---|---|---|---|---|
| Arrowsmith Drive, Alsager, Stoke-on-Trent, Cheshire | £ 238,000 | BUY | 6 / 10 | 0.00 KM |
| Arrowsmith Drive, Alsager | £ 230,000 | BUY | 6 / 10 | 0.01 KM |
| Arrowsmith Drive, Alsager | £ 225,000 | BUY | 7 / 10 | 0.03 KM |
| Arrowsmith Drive, Alsager | £ 210,000 | BUY | 6 / 10 | 0.04 KM |
| Arrowsmith Drive, Alsager | £ 575,000 | BUY | 7 / 10 | 0.07 KM |
Nearby Properties
| Address | Price | Distance |
|---|---|---|
| 2 Arrowsmith Drive | £ 250,000 | 0.01 KM |
| 14 Arrowsmith Drive | £ 200,000 | 0.01 KM |
| 10 Arrowsmith Drive | £ 247,000 | 0.01 KM |
| 41 Arrowsmith Drive | £ 180,000 | 0.01 KM |
| 47 Arrowsmith Drive | £ 171,500 | 0.01 KM |