Simmons Estates says ..
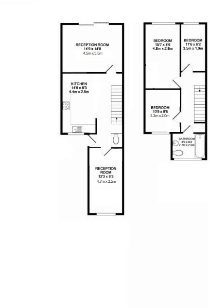
Situated in a peaceful cul-de-sac, this well-presented three-bedroom semi-detached home combines contemporary style with practical features, making it ideal for families and professionals alike. The property offers two spacious reception rooms, including a smart garage conversion, and a private s...
Property Oracle says ..
Therefore, we give this property 6 / 10. *Disclaimer: This is our option and does constitute a recommendation or financial advice. Do your own research. *
- Price
- 6
- Condition
- 7
- Location
- 7
- Land
- 7
- Bedrooms
- 3
- Bathrooms
- 1
The heatmap indicates the level of crime in the area. The color of the heatmap indicates the crime severity and recency.
Metrics Year-on-Year
- Average area value
- 805,000.00 £Increased by 108.85 %
- Average area rental value
- 1,675.00 £/moDecreased by 10.81 %
- Est rental Yield
- 2.50 %Decreased by 57.26 %
- Crime Rate
- 9.00 %Unchanged by 0.00 %
from 385,436.00 £
from 1,878.00 £/mo
from 5.85 %
from 9.00 %
Agent Activity
Simmons Estates created the listing.
Nearby Schools
| Name | Type | Ofsted | Distance |
|---|---|---|---|
| Hertsmere Jewish Primary School | Academy Sponsor Led | 1.09 KM | |
| Meryfield Primary School | Academy Converter | 1.11 KM | |
| Radlett Preparatory School Limited | Other Independent School | Good | 1.15 KM |
| Parkside Community Primary School | Foundation School | Good | 1.71 KM |
| Newberries Primary School | Community School | Good | 1.99 KM |
Images
Nearby Streets
| Name | Average Price | Average Sqft | Distance |
|---|---|---|---|
| Purcell Close | £ 475,000 | 0 | 0.00 KM |
| Little Hays | £ 0 | 0 | 0.00 KM |
| Sommerville Court | £ 0 | 0 | 0.00 KM |
| Chiltern Close | £ 0 | 0 | 0.00 KM |
| Badgers Close | £ 0 | 0 | 0.00 KM |
Nearby Transport
| Name | NLC | TLC | Distance |
|---|---|---|---|
| Elstree And Borehamwood | 1542 | ELS | 2.47 KM |
| Radlett | 1546 | RDT | 2.98 KM |
| How Wood (Hertfordshire) | 1563 | HWW | 7.67 KM |
| Park Street | 1561 | PKT | 8.01 KM |
| Mill Hill Broadway | 1527 | MIL | 8.06 KM |
Nearby Listings
| Address | Price | Type | Score | Distance |
|---|---|---|---|---|
| Stainer Road, Borehamwood | £ 500,000 | BUY | 6 / 10 | 0.00 KM |
| Stainer Road, Borehamwood, Hertfordshire, WD6 | £ 475,000 | BUY | 6 / 10 | 0.05 KM |
| Purcell Close, Borehamwood | £ 475,000 | BUY | Unknown | 0.06 KM |
| Tallis Way, Borehamwood, WD6 | £ 475,000 | BUY | Unknown | 0.20 KM |
| Felton Close, Borehamwood, WD6 | £ 250,000 | BUY | 5 / 10 | 0.38 KM |
Nearby Properties
| Address | Price | Distance |
|---|---|---|
| 27 Stainer Road | £ 210,000 | 0.04 KM |
| 31 Stainer Road | £ 440,000 | 0.04 KM |
| 37 Stainer Road | £ 235,000 | 0.04 KM |
| 21 Stainer Road | £ 380,000 | 0.05 KM |
| 23 Stainer Road | £ 365,000 | 0.05 KM |