Seaton Avenue, Tupsley, Hereford, HR1
By Flint & Cook
£ 360,000
Reviews
3 out of 5 stars
Flint & Cook says ..
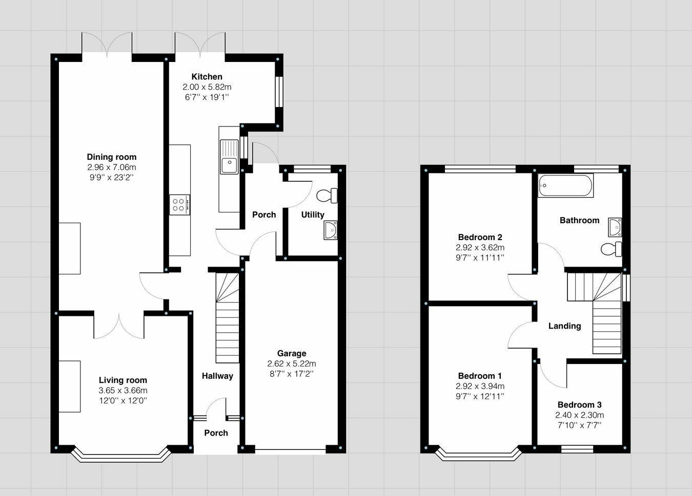
Situated in this highly sought after residential location, a well presented and extended three bedroom semi detached home offering ideal family accommodation and being sold with the added benefit of no onward chain. The property also benefits from gas central heating, double glazing, garage, d...
Property Oracle says ..
This three-bedroom semi-detached house in Tupsley, Hereford is presented in good order and benefits from a location that is convenient for families. The property’s proximity to several well-regarded primary schools (The Bishop Of Hereford’s Bluecoat School, Hampton Dene Primary School, and St Paul’s Cofe Primary School all receiving ‘Good’ or ‘Outstanding’ Ofsted ratings) is a considerable advantage for families. The relatively close proximity to Hereford city centre via public transport (Hereford Train station 2.36KM) further enhances its appeal. The interior photographs suggest a comfortable and reasonably modern living space with updated aspects in the kitchen and bathrooms. The home’s outdoor space appears nicely maintained, adding to its family-friendly appeal. Overall, the property presents a solid proposition for buyers seeking a family home in a good school catchment area, with reasonable convenience to amenities and transport links. However, further detailed checks on the property condition and a comparative market analysis of prices per square foot are required to fully ascertain its value for money. The lack of plot size data limits a thorough valuation. A survey is highly recommended. This is a good, functional home in a generally desirable area, however it requires a more in-depth valuation to make a definitive determination.
Therefore, we give this property 6 / 10. *Disclaimer: This is our option and does constitute a recommendation or financial advice. Do your own research. *
- Price
- 7
- Condition
- 7
- Location
- 7
- Land
- 6
- Bedrooms
- 3
- Bathrooms
- 1
- Sqft (est)
- 1,363.46
The heatmap indicates the level of crime in the area. The color of the heatmap indicates the crime severity and recency.
Metrics Year-on-Year
- Average area value
- 225,619.00 £Decreased by 6.60 %
- Est sale value
- 295,870.82 £Decreased by 18.73 %
- Average area rental value
- 850.00 £/moDecreased by 4.92 %
- Est letting value
- 0.00 £/mo
- Est rental Yield
- 4.52 %Increased by 1.80 %
- Crime Rate
- 12.00 %Unchanged by 0.00 %
Agent Activity
Flint & Cook created the listing.
Nearby Schools
| Name | Type | Ofsted | Distance |
|---|---|---|---|
| The Bishop Of Hereford'S Bluecoat School | Voluntary Aided School | Good | 0.47 KM |
| Hampton Dene Primary School | Community School | Good | 0.55 KM |
| St Paul'S Cofe Primary School | Academy Converter | Outstanding | 0.59 KM |
| Aylestone School | Community School | Requires improvement | 0.89 KM |
| Broadlands Children Centre | Children's Centre | 0.95 KM |
Images
Nearby Streets
| Name | Average Price | Average Sqft | Distance |
|---|---|---|---|
| Salisbury Avenue | £ 650,000 | 0 | 0.00 KM |
| Lincoln Close | £ 399,500 | 0 | 0.00 KM |
| Lyndhurst Avenue | £ 0 | 0 | 0.00 KM |
| Hampton Dene Road | £ 0 | 0 | 0.00 KM |
| Harvey Road | £ 293,500 | 0 | 0.00 KM |
Nearby Transport
| Name | NLC | TLC | Distance |
|---|---|---|---|
| Hereford | 3607 | HFD | 2.36 KM |
Nearby Listings
| Address | Price | Type | Score | Distance |
|---|---|---|---|---|
| Seaton Avenue, Hereford | £ 345,000 | BUY | 6 / 10 | 0.04 KM |
| Salisbury Avenue, Tupsley, Hereford | £ 560,000 | BUY | 6 / 10 | 0.19 KM |
| White House Way, Hereford, HR1 | £ 250,000 | BUY | 7 / 10 | 0.21 KM |
| Devereux Close, Tupsley, Hereford, HR1 | £ 340,000 | BUY | Unknown | 0.22 KM |
| Salisbury Avenue, Hereford, HR1 | £ 575,000 | BUY | 8 / 10 | 0.23 KM |
Nearby Properties
| Address | Price | Distance |
|---|---|---|
| 39 Seaton Avenue | £ 273,000 | 0.01 KM |
| 59 Seaton Avenue | £ 232,500 | 0.01 KM |
| 25a Seaton Avenue | £ 239,950 | 0.01 KM |
| 47 Seaton Avenue | £ 185,000 | 0.01 KM |
| 61 Seaton Avenue | £ 225,000 | 0.01 KM |