Leightons says ..
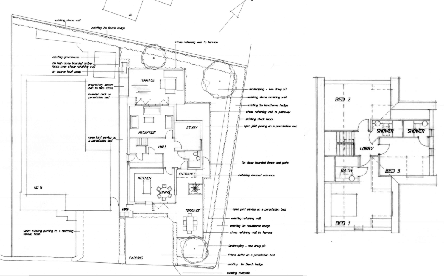
Looking for a building project with strong potential? This plot with full planning permission offers the chance to create a three bedroom detached home in a well-regarded part of Silsden, with an anticipated finished value of around £375,000.
Property Oracle says ..
Therefore, we give this property 6 / 10. *Disclaimer: This is our option and does constitute a recommendation or financial advice. Do your own research. *
- Price
- 8
- Condition
- 3
- Location
- 7
- Land
- 6
- Bedrooms
- 0
- Bathrooms
- 0
- Sqft (est)
- 979.00
The heatmap indicates the level of crime in the area. The color of the heatmap indicates the crime severity and recency.
Metrics Year-on-Year
- Average area value
- 422,431.00 £Increased by 29.36 %
- Est sale value
- 668,657.00 £Increased by 163.71 %
- Average area rental value
- 902.00 £/moDecreased by 19.75 %
- Est letting value
- 979.00 £/mo
- Est rental Yield
- 2.56 %Decreased by 38.01 %
- Crime Rate
- 7.00 %Unchanged by 0.00 %
from 326,550.00 £
from 253,561.00 £
from 1,124.00 £/mo
from 0.00 £/mo
from 4.13 %
from 7.00 %
Agent Activity
Leightons created the listing.
Nearby Schools
| Name | Type | Ofsted | Distance |
|---|---|---|---|
| Silsden Primary School | Community School | Good | 1.03 KM |
| Daisy Chain Children'S Centre | Children's Centre Linked Site | 1.31 KM | |
| Steeton Primary School | Community School | Good | 2.94 KM |
| Beechcliffe Special School | Community Special School | Good | 4.13 KM |
| University Academy Keighley | Academy Sponsor Led | Good | 4.13 KM |
Images
Nearby Streets
| Name | Average Price | Average Sqft | Distance |
|---|---|---|---|
| Old Tannery Lane | £ 0 | 0 | 0.00 KM |
| Old Beck Road | £ 0 | 0 | 0.00 KM |
| Stirling Street | £ 235,000 | 0 | 0.00 KM |
| Bridge Road | £ 0 | 0 | 0.00 KM |
| Saint John's Street | £ 285,000 | 0 | 0.00 KM |
Nearby Transport
| Name | NLC | TLC | Distance |
|---|---|---|---|
| Steeton And Silsden | 8469 | SON | 2.32 KM |
| Keighley | 8468 | KEI | 6.14 KM |
| Cononley | 8470 | CEY | 9.04 KM |
Nearby Listings
| Address | Price | Type | Score | Distance |
|---|---|---|---|---|
| Hawber Cote Lane, Silsden, BD20 | £ 115,000 | BUY | 6 / 10 | 0.00 KM |
| Hawber Cote Lane, Silsden, BD20 | £ 300,000 | BUY | 7 / 10 | 0.02 KM |
| Hawber Cote Lane, Silsden | £ 334,950 | BUY | 6 / 10 | 0.04 KM |
| 1 Hawber Cote Lane, Silsden BD20 0JJ | £ 299,950 | BUY | 7 / 10 | 0.06 KM |
| Wayside Mews, Silsden, BD20 | £ 325,000 | BUY | Unknown | 0.14 KM |
Nearby Properties
| Address | Price | Distance |
|---|---|---|
| 2 Hawber Cote Lane | £ 340,000 | 0.07 KM |
| 11 Banklands Lane | £ 217,000 | 0.08 KM |
| 7 Banklands Lane | £ 170,000 | 0.08 KM |
| 5 Banklands Lane | £ 190,000 | 0.08 KM |
| 9 Banklands Lane | £ 239,000 | 0.10 KM |