Romans says ..
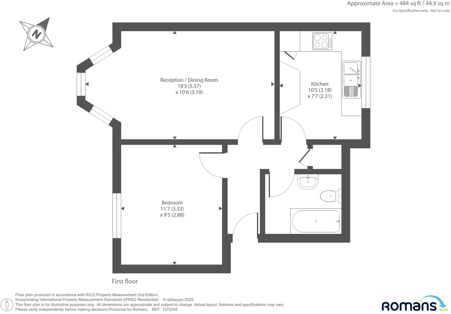
A superb one bedroom first floor maisonette sold with no chain and perfectly located within walking distance to the shops of Burnham Village. Set in a small select development this home is sold in excellent condition throughout and boasts its own private entrance with a staircase leadi...
Property Oracle says ..
This is a one-bedroom maisonette in Burnham, Buckinghamshire. It is located close to local schools and transport links. The property appears to be in good condition and offers communal garden space. The asking price of £210,000 seems reasonable given the location and condition of the property, especially when compared to average property prices in the area.
Therefore, we give this property 6 / 10. *Disclaimer: This is our option and does constitute a recommendation or financial advice. Do your own research. *
- Price
- 8
- Condition
- 7
- Location
- 7
- Land
- 5
- Bedrooms
- 1
- Bathrooms
- 1
- Sqft (est)
- 383.25
The heatmap indicates the level of crime in the area. The color of the heatmap indicates the crime severity and recency.
Metrics Year-on-Year
- Average area value
- 817,143.00 £Increased by 53.84 %
- Est sale value
- 319,630.50 £Increased by 78.59 %
- Average area rental value
- 1,640.00 £/moDecreased by 18.93 %
- Est letting value
- 383.25 £/moUnchanged by 0.00 %
- Est rental Yield
- 2.41 %Decreased by 47.26 %
- Crime Rate
- 4.00 %Unchanged by 0.00 %
Agent Activity
Romans created the listing.
Nearby Schools
| Name | Type | Ofsted | Distance |
|---|---|---|---|
| Burnham Grammar School | Academy Converter | Good | 0.48 KM |
| Our Lady Of Peace Catholic Primary And Nursery School | Voluntary Aided School | Good | 0.61 KM |
| Priory School | Foundation School | Good | 0.67 KM |
| Burnham Family Centre | Children's Centre | 0.68 KM | |
| St Peter'S Church Of England Primary School | Voluntary Aided School | Good | 0.68 KM |
Images
Nearby Streets
| Name | Average Price | Average Sqft | Distance |
|---|---|---|---|
| High Street | £ 0 | 0 | 0.00 KM |
| St. Michael's Court | £ 458,333 | 0 | 0.00 KM |
| Baldwin Road | £ 450,000 | 0 | 0.00 KM |
| Lammas Road | £ 0 | 0 | 0.00 KM |
| Hall Meadow | £ 0 | 0 | 0.00 KM |
Nearby Transport
| Name | NLC | TLC | Distance |
|---|---|---|---|
| Burnham | 3176 | BNM | 1.47 KM |
| Taplow | 3151 | TAP | 2.91 KM |
| Windsor And Eton Central | 3175 | WNC | 7.45 KM |
| Maidenhead | 3147 | MAI | 7.47 KM |
| Slough | 3172 | SLO | 7.53 KM |
Nearby Listings
| Address | Price | Type | Score | Distance |
|---|---|---|---|---|
| Parkgate, Windsor Lane, Burnham | £ 210,000 | BUY | 6 / 10 | 0.00 KM |
| Parkgate, Windsor Lane, Burnham, SL1 | £ 200,000 | BUY | 5 / 10 | 0.01 KM |
| Lincoln Hatch Lane, Burnham, Buckinghamshire, SL1 | £ 1,000,000 | BUY | 7 / 10 | 0.11 KM |
| Holly Lodge, Burnham, Buckinghamshire, SL1 | £ 400,000 | BUY | 6 / 10 | 0.21 KM |
| Lincoln Hatch Lane, Burnham, Buckinghamshire, SL1 | £ 800,000 | BUY | 6 / 10 | 0.26 KM |
Nearby Properties
| Address | Price | Distance |
|---|---|---|
| 228 Windsor Lane | £ 675,000 | 0.06 KM |
| 218a Windsor Lane | £ 550,000 | 0.06 KM |
| 242 Windsor Lane | £ 238,000 | 0.06 KM |
| 226 Windsor Lane | £ 604,500 | 0.08 KM |
| 232 Windsor Lane | £ 500,000 | 0.08 KM |