Yopa says ..
Recently refurbished mid-terraced house conveniently situated for the Town Centre and Rugby Railway Station, offered for sale with no onward chain.
Property Oracle says ..
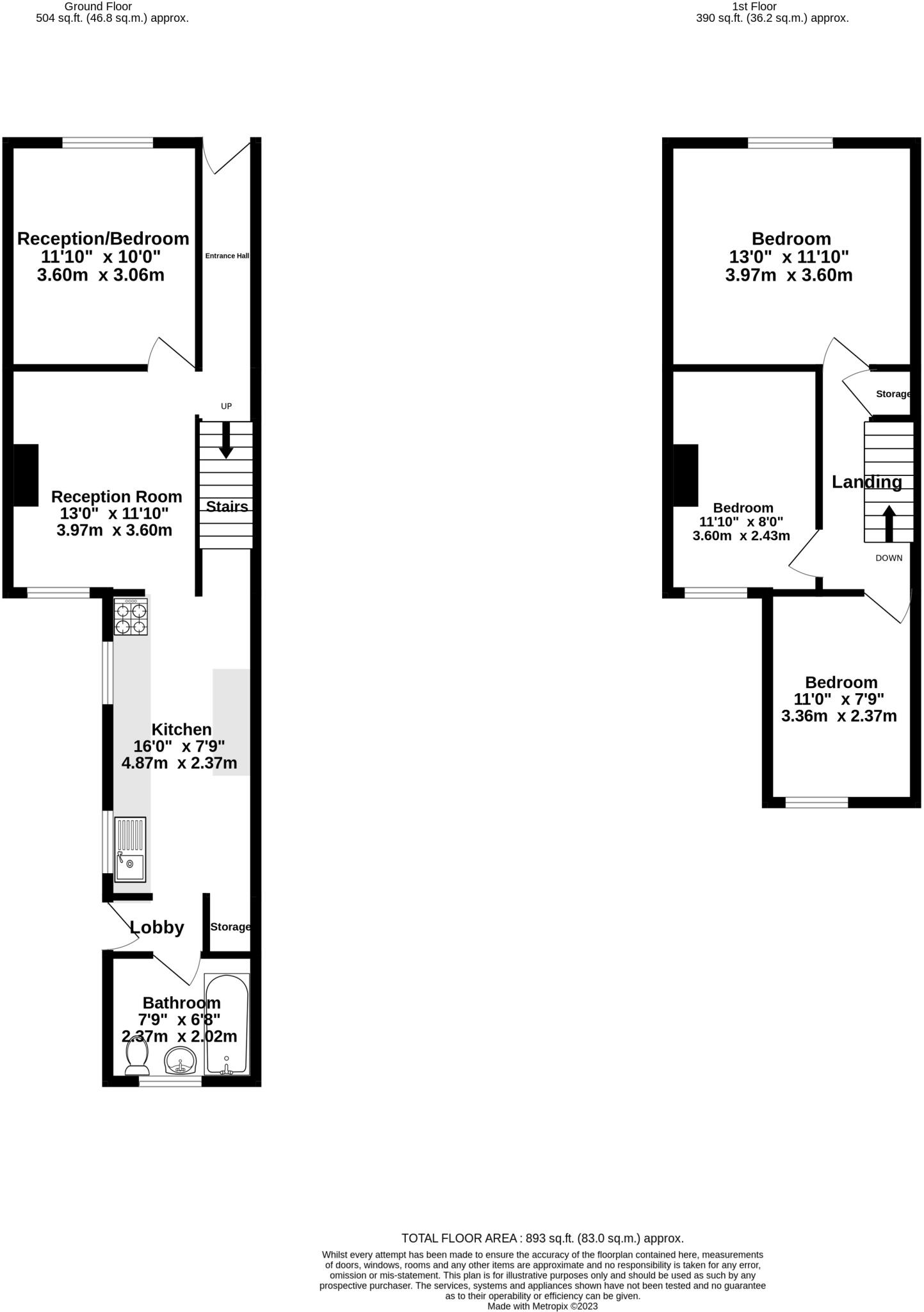
The property is located in Rugby, Warwickshire, and is a three-bedroom terraced house. The list price is £230,000. The property is situated on Craven Road, Benn, Rugby. Nearby amenities include a train station (Rugby station, 0.30 KM) and several schools within a reasonable distance, such as Northlands Primary School (0.56 KM) and St Andrew’s Benn Cofe Primary School (0.69 KM), both rated ‘Good’ by Ofsted. The proximity to these amenities makes the location relatively convenient. However, the provided data does not offer details on the quality of local shops or other places of significance. Based on the provided images, the property appears to be in generally fair condition. While the rooms show signs of being lived in and some minor wear and tear, there are no major visible issues requiring immediate repair. The kitchen and bathroom seem functional, though some modernisation might enhance their appeal. The garden is small and requires some maintenance. The property’s plot size is listed as 0.00 SQFT, indicating a very small or non-existent garden. This is a significant drawback, especially when compared to other properties in the area. Considering the average price of £200,692 and average price per sqft of £219.00 in the area, the list price of £230,000 for an 893.40 SQFT property seems slightly higher than the average. However, the lack of plot size information for comparable properties makes a definitive price comparison challenging. The property’s condition is a factor to consider; while not needing major renovations, it would likely benefit from some modernisation to increase its market value.
Therefore, we give this property 5 / 10. *Disclaimer: This is our option and does constitute a recommendation or financial advice. Do your own research. *
- Price
- 6
- Condition
- 6
- Location
- 7
- Land
- 2
- Bedrooms
- 3
- Bathrooms
- 1
- Sqft (est)
- 893.40
The heatmap indicates the level of crime in the area. The color of the heatmap indicates the crime severity and recency.
Metrics Year-on-Year
- Average area value
- 252,500.00 £Increased by 21.08 %
- Est sale value
- 293,035.20 £Increased by 51.15 %
- Average area rental value
- 820.00 £/moDecreased by 68.92 %
- Est letting value
- 893.40 £/moDecreased by 50.00 %
- Est rental Yield
- 3.90 %Decreased by 74.31 %
- Crime Rate
- 14.00 %Unchanged by 0.00 %
Agent Activity
Yopa marked this listing as sold.
Yopa created the listing.
Nearby Schools
| Name | Type | Ofsted | Distance |
|---|---|---|---|
| Claremont Children'S Centre (Formerly Rugby Parents Centre) | Children's Centre | 0.17 KM | |
| Northlands Primary School | Community School | Good | 0.56 KM |
| St Andrew'S Benn Cofe (Voluntary Aided) Primary School | Voluntary Aided School | Good | 0.69 KM |
| Lawrence Sheriff School | Academy Converter | 0.72 KM | |
| Rugby School | Other Independent School | 1.48 KM |
Images
Nearby Streets
| Name | Average Price | Average Sqft | Distance |
|---|---|---|---|
| Barter Place | £ 0 | 0 | 0.00 KM |
| Gavel Drive | £ 0 | 0 | 0.00 KM |
| Craven Road | £ 200,000 | 0 | 0.00 KM |
| Albert Square | £ 0 | 0 | 0.00 KM |
| Parsons Close | £ 0 | 0 | 0.00 KM |
Nearby Transport
| Name | NLC | TLC | Distance |
|---|---|---|---|
| Rugby | 1087 | RUG | 0.30 KM |
Nearby Listings
| Address | Price | Type | Score | Distance |
|---|---|---|---|---|
| Craven Road, Rugby, CV21 | £ 230,000 | BUY | 5 / 10 | 0.00 KM |
| Craven Road, Rugby | £ 185,000 | BUY | 6 / 10 | 0.01 KM |
| Murray Road, Rugby | £ 245,000 | BUY | Unknown | 0.05 KM |
| Murray Road, Rugby | £ 140,000 | BUY | 5 / 10 | 0.08 KM |
| Sandown Road, Rugby, Warwickshire, CV21 | £ 185,000 | BUY | 6 / 10 | 0.11 KM |
Nearby Properties
| Address | Price | Distance |
|---|---|---|
| 25 Craven Road | £ 77,000 | 0.01 KM |
| 31 Craven Road | £ 96,250 | 0.01 KM |
| 76 Craven Road | £ 129,000 | 0.01 KM |
| 29 Craven Road | £ 105,000 | 0.01 KM |
| 33 Craven Road | £ 106,000 | 0.01 KM |