Cote Lane, Farsley, Pudsey
By Hunters
£ 350,000
Hunters says ..
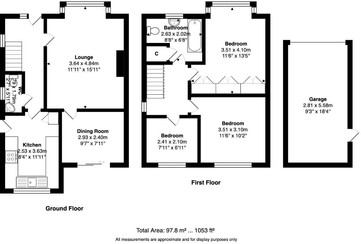
This well-maintained three-bedroom detached house, situated in a desirable location close to transport links, schools, and green spaces, offers spacious and versatile living areas, modern conveniences, private gardens, and a detached garage, making it an ideal home for families or couples seeking...
- Bedrooms
- 3
- Bathrooms
- 1
The heatmap indicates the level of crime in the area. The color of the heatmap indicates the crime severity and recency.
Metrics Year-on-Year
- Average area value
- 245,948.00 £Decreased by 19.85 %
- Average area rental value
- 915.00 £/moDecreased by 6.92 %
- Est rental Yield
- 4.46 %Increased by 16.15 %
- Crime Rate
- 4.00 %Unchanged by 0.00 %
from 306,845.00 £
from 983.00 £/mo
from 3.84 %
from 4.00 %
Agent Activity
Hunters created the listing.
Nearby Schools
| Name | Type | Ofsted | Distance |
|---|---|---|---|
| Farsley & Calverley Children'S Centre | Children's Centre | 0.04 KM | |
| Farsley Farfield Primary School | Community School | Good | 0.15 KM |
| Co-Op Academy Priesthorpe | Academy Converter | Requires improvement | 0.78 KM |
| Westroyd Primary School And Nursery | Community School | Good | 0.95 KM |
| Farsley Springbank Primary School | Community School | Good | 1.34 KM |
Images
Nearby Streets
| Name | Average Price | Average Sqft | Distance |
|---|---|---|---|
| Woodlands Avenue | £ 0 | 0 | 0.00 KM |
| Back Woodlands Avenue | £ 0 | 0 | 0.00 KM |
| Westway | £ 0 | 0 | 0.00 KM |
| Stanningley Bypass | £ 0 | 0 | 0.00 KM |
| Summerville Mews | £ 0 | 0 | 0.00 KM |
Nearby Transport
| Name | NLC | TLC | Distance |
|---|---|---|---|
| New Pudsey | 8506 | NPD | 0.50 KM |
| Apperley Bridge | 8562 | APY | 4.60 KM |
| Bramley (West Yorkshire) | 8496 | BLE | 4.80 KM |
| Kirkstall Forge | 6544 | KLF | 6.62 KM |
| Horsforth | 8499 | HRS | 7.04 KM |
Nearby Listings
| Address | Price | Type | Score | Distance |
|---|---|---|---|---|
| Cote Lane, Farsley, Pudsey | £ 350,000 | BUY | Unknown | 0.00 KM |
| Cote Lane, Farsley, Pudsey | £ 375,000 | BUY | 6 / 10 | 0.05 KM |
| Tudor Close, Farsley | £ 499,995 | BUY | 8 / 10 | 0.05 KM |
| Richmond Road, Farsley, Pudsey, West Yorkshire | £ 325,000 | BUY | 6 / 10 | 0.10 KM |
| Farfield Drive, Farsley, Pudsey | £ 270,000 | BUY | 6 / 10 | 0.20 KM |
Nearby Properties
| Address | Price | Distance |
|---|---|---|
| 23 Cote Lane | £ 180,000 | 0.04 KM |
| 39 Cote Lane | £ 325,000 | 0.04 KM |
| 7 Cote Lane | £ 160,000 | 0.05 KM |
| 8 Tudor Close | £ 175,000 | 0.05 KM |
| 25 Cote Lane | £ 145,000 | 0.05 KM |