Churchills Estate Agents says ..
A SUPERB 3 BEDROOM FORECOURTED PERIOD TOWN HOUSE SET IN THIS SOUGHT AFTER LOCATION CLOSE TO LOCAL SHOPS AND AMENITIES YET WITHIN A SHORT WALK INTO THE CITY CENTRE. The property which has the benefit of upvc double glazing and gas central heating provides bright and tastefully presented living acc...
Property Oracle says ..
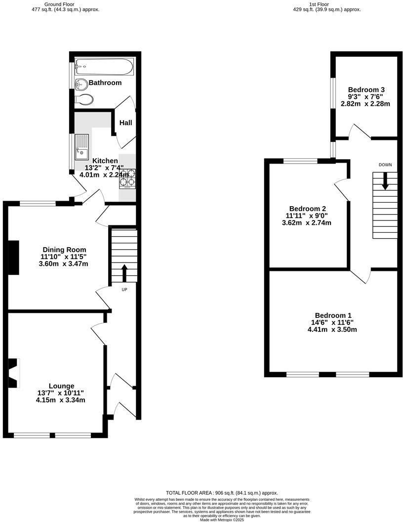
This three-bedroom terraced house in Heworth, York is listed at £295,000. The property is situated on Glen Road and benefits from being close to several primary schools, including Heworth Church of England Primary Academy (rated Good by Ofsted) and Tang Hall Primary Academy (also rated Good). York train station is approximately 2.84km away, providing convenient access to transport links. The house itself appears to be in reasonable condition, though some minor cosmetic updates might enhance its appeal. The property includes a small yard, though the plot size is limited. Compared to the average price per square foot in the area (£338), the listed price seems slightly below average, considering the condition and location. However, the limited plot size and smaller than average square footage (230.60 sqft compared to the area average of 1002 sqft) should be taken into account when assessing value.
Therefore, we give this property 6 / 10. *Disclaimer: This is our option and does constitute a recommendation or financial advice. Do your own research. *
- Price
- 7
- Condition
- 7
- Location
- 8
- Land
- 3
- Bedrooms
- 3
- Bathrooms
- 1
- Sqft (est)
- 230.60
The heatmap indicates the level of crime in the area. The color of the heatmap indicates the crime severity and recency.
Metrics Year-on-Year
- Average area value
- 494,993.00 £Increased by 52.44 %
- Est sale value
- 115,761.20 £Increased by 168.45 %
- Average area rental value
- 1,198.00 £/moDecreased by 2.44 %
- Est letting value
- 230.60 £/mo
- Est rental Yield
- 2.90 %Decreased by 36.12 %
- Crime Rate
- 2.00 %Unchanged by 0.00 %
Agent Activity
Churchills Estate Agents created the listing.
Nearby Schools
| Name | Type | Ofsted | Distance |
|---|---|---|---|
| The Avenues Children'S Centre | Children's Centre | 0.60 KM | |
| Tang Hall Primary Academy | Academy Converter | Good | 0.69 KM |
| Park Grove Primary Academy | Academy Converter | 0.86 KM | |
| Heworth Church Of England Primary Academy | Academy Converter | Good | 0.92 KM |
| St Wilfrid'S Catholic Primary School - A Catholic Voluntary Academy | Academy Converter | 1.03 KM |
Images
Nearby Streets
| Name | Average Price | Average Sqft | Distance |
|---|---|---|---|
| Layerthorpe | £ 200,000 | 0 | 0.00 KM |
| Croft Gardens | £ 0 | 0 | 0.00 KM |
| Eboracum Way | £ 0 | 0 | 0.00 KM |
| Heworth Road | £ 0 | 0 | 0.00 KM |
| Agar Court | £ 0 | 0 | 0.00 KM |
Nearby Transport
| Name | NLC | TLC | Distance |
|---|---|---|---|
| York | 8263 | YRK | 2.84 KM |
| Poppleton | 8254 | POP | 8.98 KM |
Nearby Listings
| Address | Price | Type | Score | Distance |
|---|---|---|---|---|
| Glen Road, Heworth | £ 295,000 | BUY | 6 / 10 | 0.00 KM |
| Hawthorn Street, York, YO31 | £ 260,000 | BUY | 6 / 10 | 0.05 KM |
| Hawthorn Street, Heworth, York | £ 235,000 | BUY | 6 / 10 | 0.06 KM |
| Hawthorn Street, York | £ 270,000 | BUY | 6 / 10 | 0.06 KM |
| Hawthorn Street, York | £ 235,000 | BUY | Unknown | 0.07 KM |
Nearby Properties
| Address | Price | Distance |
|---|---|---|
| 19 Hawthorn Grove | £ 249,950 | 0.04 KM |
| 7 Hawthorn Grove | £ 358,000 | 0.04 KM |
| 3 Hawthorn Street | £ 190,000 | 0.07 KM |
| 8 Hawthorn Street | £ 230,000 | 0.07 KM |
| 24 Hawthorn Street | £ 130,000 | 0.07 KM |