RE
Marlborough Court, West Bridgford, Nottingham, Nottinghamshire, NG2
By Rex Gooding
£ 289,950
Reviews
2 out of 5 stars
Rex Gooding says ..
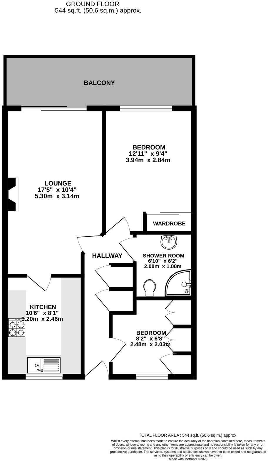
Serene Retirement Living with Tennis Court Views. Perfectly positioned in the heart of desirable West Bridgford, this elegant upper ground floor retirement apartment offers a harmonious blend of independent living with thoughtful community amenities and convenient access to local attra...
Property Oracle says ..
Therefore, we give this property 5 / 10. *Disclaimer: This is our option and does constitute a recommendation or financial advice. Do your own research. *
- Price
- 3
- Condition
- 8
- Location
- 8
- Land
- 3
- Bedrooms
- 2
- Bathrooms
- 1
- Sqft (est)
- 544.00
The heatmap indicates the level of crime in the area. The color of the heatmap indicates the crime severity and recency.
Metrics Year-on-Year
- Average area value
- 424,500.00 £Increased by 7.93 %
- Est sale value
- 169,728.00 £Decreased by 20.81 %
- Average area rental value
- 830.00 £/moDecreased by 15.99 %
- Est letting value
- 0.00 £/mo
- Est rental Yield
- 2.35 %Decreased by 21.93 %
- Crime Rate
- 11.00 %Unchanged by 0.00 %
from 393,325.00 £
from 214,336.00 £
from 988.00 £/mo
from 0.00 £/mo
from 3.01 %
from 11.00 %
Agent Activity
Rex Gooding created the listing.
Nearby Schools
| Name | Type | Ofsted | Distance |
|---|---|---|---|
| West Bridgford Infant School | Community School | Outstanding | 0.21 KM |
| West Bridgford Junior School | Community School | Outstanding | 0.85 KM |
| Clayfield House | Secure Units | 1.01 KM | |
| Jesse Gray Primary School | Community School | Good | 1.19 KM |
| Abbey Road Primary School | Academy Converter | 1.32 KM |
Images
Nearby Streets
| Name | Average Price | Average Sqft | Distance |
|---|---|---|---|
| Ethel Road | £ 0 | 0 | 0.00 KM |
| Bromley Road | £ 875,000 | 0 | 0.00 KM |
| The Poplars | £ 200,000 | 0 | 0.00 KM |
| Taunton Road | £ 475,000 | 0 | 0.00 KM |
| Tavistock Road | £ 140,000 | 0 | 0.00 KM |
Nearby Transport
| Name | NLC | TLC | Distance |
|---|---|---|---|
| Nottingham | 1826 | NOT | 2.65 KM |
| Netherfield | 6241 | NET | 6.74 KM |
| Carlton | 6201 | CTO | 7.08 KM |
| Beeston | 1625 | BEE | 8.51 KM |
Nearby Listings
| Address | Price | Type | Score | Distance |
|---|---|---|---|---|
| Marlborough Court, West Bridgford, Nottingham, Nottinghamshire, NG2 | £ 289,950 | BUY | 5 / 10 | 0.00 KM |
| Marlborough Court, West Bridgford, Nottingham | £ 230,000 | BUY | 5 / 10 | 0.00 KM |
| Marlborough Court, West Bridgford, Nottinghamshire, NG2 6BY | £ 230,000 | BUY | Unknown | 0.00 KM |
| Marlborough Court, West Bridgford, Nottingham, Nottinghamshire, NG2 | £ 225,000 | BUY | 5 / 10 | 0.00 KM |
| Marlborough Court, West Bridgford, Nottingham | £ 299,950 | BUY | 6 / 10 | 0.00 KM |
Nearby Properties
| Address | Price | Distance |
|---|---|---|
| 47 Marlborough Court | £ 145,000 | 0.01 KM |
| 5 Marlborough Court | £ 160,000 | 0.01 KM |
| 26 Marlborough Court | £ 117,000 | 0.01 KM |
| 29 Marlborough Court | £ 223,000 | 0.01 KM |
| 37 Marlborough Court | £ 265,000 | 0.01 KM |