Acorn says ..
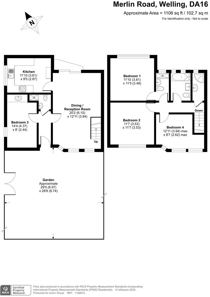
Acorn are delighted to offer to the market this huge four bedroom, three bathroom semi detached family home on a highly sought after road in South Welling, just a short stroll to Danson Park. Arranged over two floors the accommodation consists of reception room, fitted kitchen, four we...
Property Oracle says ..
Location: The property is located in Welling, Bexley, which is in close proximity to several Southeastern train stations, including Welling, Falconwood, Sidcup, Bexleyheath, and Albany Park. The area also has a good selection of primary schools, with Danson Primary School and St Stephen’s Catholic Primary School both receiving “Good” and “Outstanding” Ofsted ratings respectively. These schools are within a short distance of the property. The presence of nearby shops and amenities would further enhance the desirability of the location, although specific details on these are not provided.
Condition: Based on the images provided, the property appears to be in good condition. The interior is modern and well-presented, with recently updated fixtures and fittings in the kitchen and bathrooms. There is evidence of some modern updates throughout the property.
Land: The property has a relatively small plot size of 295 sqft. While there is a small paved area to the front, there doesn’t appear to be a significant garden.
Price: The list price of £650,000 is considerably higher than the average house price in the area (£469,089). However, the property is larger than the average (1106 sqft vs 1126 sqft), and the average price per sqft in the area is £416. Considering the modern condition and the potential for a higher price per sqft in this specific location on Merlin Road North, the price may be justifiable, although it’s at the higher end of the market. Further analysis of comparable properties on Merlin Road North would be beneficial to confirm this.
Therefore, we give this property 6 / 10. *Disclaimer: This is our option and does constitute a recommendation or financial advice. Do your own research. *
- Price
- 7
- Condition
- 9
- Location
- 8
- Land
- 3
- Bedrooms
- 4
- Bathrooms
- 4
- Sqft (est)
- 1,106.00
- Lot (est)
- 295.00
The heatmap indicates the level of crime in the area. The color of the heatmap indicates the crime severity and recency.
Metrics Year-on-Year
- Average area value
- 396,111.00 £Decreased by 12.15 %
- Est sale value
- 440,188.00 £Decreased by 3.86 %
- Average area rental value
- 1,783.00 £/moDecreased by 6.60 %
- Est letting value
- 1,106.00 £/moUnchanged by 0.00 %
- Est rental Yield
- 5.40 %Increased by 6.30 %
- Crime Rate
- 2.00 %Unchanged by 0.00 %
Agent Activity
Acorn created the listing.
Nearby Schools
| Name | Type | Ofsted | Distance |
|---|---|---|---|
| Danson Primary School | Community School | Good | 0.34 KM |
| Hook Lane Primary School | Academy Converter | 0.38 KM | |
| Bexley Grammar School | Academy Converter | 0.43 KM | |
| St Stephen'S Catholic Primary School | Voluntary Aided School | Outstanding | 0.66 KM |
| East Wickham Primary Academy | Academy Converter | Good | 1.18 KM |
Images
Nearby Streets
| Name | Average Price | Average Sqft | Distance |
|---|---|---|---|
| Newton Road | £ 660,000 | 0 | 0.00 KM |
| Lime Tree terrace | £ 0 | 0 | 0.00 KM |
| Kent Avenue | £ 508,332 | 0 | 0.00 KM |
| Coton Road | £ 0 | 0 | 0.00 KM |
| New Road | £ 450,000 | 0 | 0.00 KM |
Nearby Transport
| Name | NLC | TLC | Distance |
|---|---|---|---|
| Welling | 5128 | WLI | 0.73 KM |
| Falconwood | 5137 | FCN | 2.71 KM |
| Sidcup | 5125 | SID | 2.75 KM |
| Bexleyheath | 5094 | BXH | 3.36 KM |
| Albany Park | 5132 | AYP | 3.54 KM |
Nearby Listings
| Address | Price | Type | Score | Distance |
|---|---|---|---|---|
| Merlin Road North, Welling | £ 650,000 | BUY | 6 / 10 | 0.00 KM |
| Merlin Road North, Welling, Kent, DA16 | £ 500,000 | BUY | 6 / 10 | 0.01 KM |
| Bradenham Avenue, Welling | £ 550,000 | BUY | 6 / 10 | 0.03 KM |
| Bradenham Avenue, Welling | £ 450,000 | BUY | 7 / 10 | 0.05 KM |
| Monmouth Close, Welling, Kent | £ 450,000 | BUY | 7 / 10 | 0.12 KM |
Nearby Properties
| Address | Price | Distance |
|---|---|---|
| 39 Merlin Road North | £ 230,000 | 0.01 KM |
| 31 Merlin Road North | £ 312,500 | 0.01 KM |
| 25 Merlin Road North | £ 343,000 | 0.01 KM |
| 32 Merlin Road North | £ 320,000 | 0.06 KM |
| 20 Merlin Road North | £ 315,000 | 0.06 KM |