SE
Robin Hood Crescent, Knaphill, Woking, Surrey, GU21
By Seymours Estate Agents
£ 425,000
Reviews
3 out of 5 stars
Seymours Estate Agents says ..
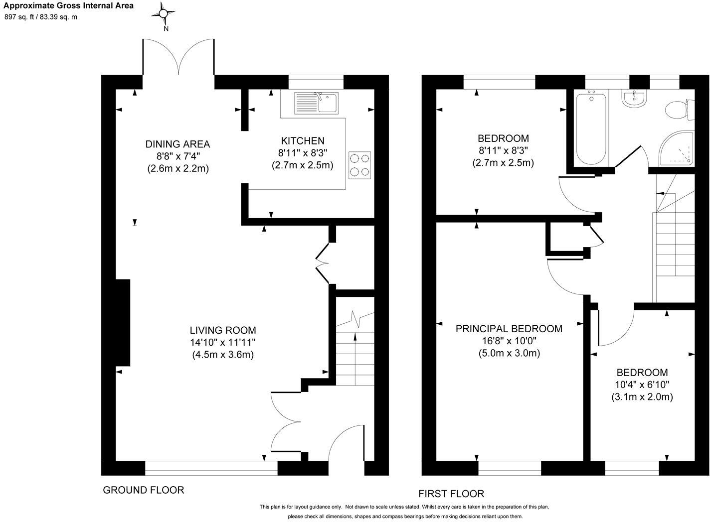
Beautifully Presented 3-Bedroom Terraced Home with South-Facing Garden & Ample Parking Offered in excellent condition throughout, this three-bedroom terraced home is ideal for families or first-time buyers looking for stylish, move-in-ready accommodation. The property fe...
Property Oracle says ..
Therefore, we give this property 7 / 10. *Disclaimer: This is our option and does constitute a recommendation or financial advice. Do your own research. *
- Price
- 7
- Condition
- 8
- Location
- 7
- Land
- 7
- Bedrooms
- 3
- Bathrooms
- 1
- Sqft (est)
- 897.00
The heatmap indicates the level of crime in the area. The color of the heatmap indicates the crime severity and recency.
Metrics Year-on-Year
- Average area value
- 586,400.00 £Increased by 18.76 %
- Est sale value
- 426,972.00 £Increased by 6.01 %
- Average area rental value
- 2,150.00 £/moIncreased by 9.47 %
- Est letting value
- 897.00 £/moUnchanged by 0.00 %
- Est rental Yield
- 4.40 %Decreased by 7.76 %
- Crime Rate
- 3.00 %Unchanged by 0.00 %
from 493,776.00 £
from 402,753.00 £
from 1,964.00 £/mo
from 897.00 £/mo
from 4.77 %
from 3.00 %
Agent Activity
Seymours Estate Agents created the listing.
Nearby Schools
| Name | Type | Ofsted | Distance |
|---|---|---|---|
| St John'S Primary School And Sure Start Children'S Centre | Children's Centre | 0.33 KM | |
| St John'S Primary School | Academy Sponsor Led | Requires improvement | 0.33 KM |
| St Hugh Of Lincoln Catholic Primary School | Academy Converter | Good | 0.82 KM |
| The Winston Churchill School A Specialist Sports College | Foundation School | Good | 0.93 KM |
| The Oaktree School | Academy Converter | 0.94 KM |
Images
Nearby Streets
| Name | Average Price | Average Sqft | Distance |
|---|---|---|---|
| Beechwood Close | £ 0 | 0 | 0.00 KM |
| Oakway | £ 475,000 | 0 | 0.00 KM |
| Elmgrove Close | £ 425,000 | 0 | 0.00 KM |
| Robin Hood Roundabout cycle path | £ 0 | 0 | 0.00 KM |
| Oakwood Road | £ 0 | 0 | 0.00 KM |
Nearby Transport
| Name | NLC | TLC | Distance |
|---|---|---|---|
| Brookwood | 5687 | BKO | 3.48 KM |
| Worplesdon | 5686 | WPL | 4.30 KM |
| Woking | 5685 | WOK | 5.63 KM |
| Longcross | 5674 | LNG | 7.59 KM |
| Sunningdale | 5671 | SNG | 8.65 KM |
Nearby Listings
| Address | Price | Type | Score | Distance |
|---|---|---|---|---|
| Robin Hood Crescent, Knaphill, Woking, Surrey, GU21 | £ 425,000 | BUY | 7 / 10 | 0.00 KM |
| Robin Hood Crescent, Knaphill, Woking, Surrey, GU21 | £ 525,000 | BUY | 7 / 10 | 0.04 KM |
| Robin Hood Crescent, Knaphill, Woking, Surrey, GU21 | £ 345,000 | BUY | 6 / 10 | 0.06 KM |
| Robin Hood Crescent, Knaphill, Woking, GU21 | £ 417,500 | BUY | 6 / 10 | 0.07 KM |
| West End Village, Nr Woking | £ 975,000 | BUY | 7 / 10 | 0.09 KM |
Nearby Properties
| Address | Price | Distance |
|---|---|---|
| 22 Robin Hood Crescent | £ 345,000 | 0.04 KM |
| 54 Robin Hood Crescent | £ 335,000 | 0.04 KM |
| 14 Robin Hood Crescent | £ 340,000 | 0.04 KM |
| 38 Robin Hood Crescent | £ 218,000 | 0.04 KM |
| 28 Robin Hood Crescent | £ 341,000 | 0.04 KM |