Chatsworth Drive, Ipswich, IP4
By Blake Mayhew
£ 395,000
Reviews
3 out of 5 stars
Blake Mayhew says ..
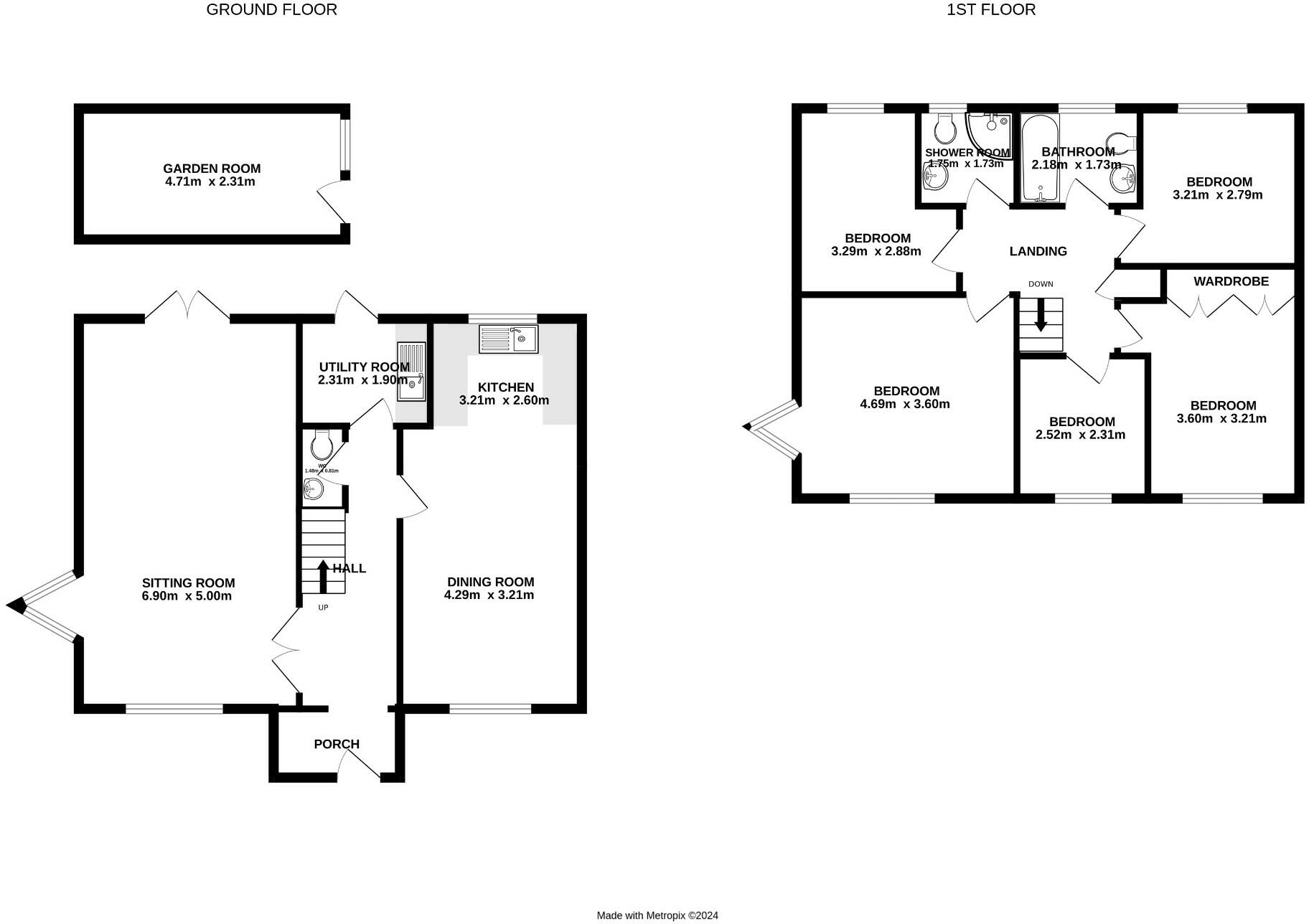
Blake Mayhew are pleased to be marketing this 5 bedroom semi-detached house. The property is situated in the sought after area of Brook Hall, to the east of Ipswich. The property benefits from 5 bedrooms, bathroom and shower room, solar panel, outbuildings, garage and off road parking.
Property Oracle says ..
This five-bedroom semi-detached house in Rushmere St Andrew, Ipswich, offers a considerable amount of living space. The property’s key selling points are its location within a desirable residential area, proximity to a well-regarded primary school, and the inclusion of off-street parking and a garden. The layout incorporates five bedrooms, a main bathroom and an additional shower room, potentially suiting a larger family or those requiring multiple bedrooms. However, the property shows its age in some areas, particularly the kitchen and bathrooms, which appear dated and could benefit from modernization to increase the overall property value and appeal. The internal photos show a need for modernisation, updating and possible renovation to make the property more appealing to today’s buyers. The absence of a precise plot size makes a complete valuation assessment more difficult. Overall, the property presents a good opportunity for those seeking space and a desirable location, but potential buyers should factor in the need for some renovation and improvements. The list price might be slightly high considering the property’s current condition but is in line with average property prices in the area; however, this needs a more in-depth comparative market analysis to ascertain.
Therefore, we give this property 6 / 10. *Disclaimer: This is our option and does constitute a recommendation or financial advice. Do your own research. *
- Price
- 7
- Condition
- 6
- Location
- 7
- Land
- 4
- Bedrooms
- 5
- Bathrooms
- 2
- Sqft (est)
- 1,158.95
The heatmap indicates the level of crime in the area. The color of the heatmap indicates the crime severity and recency.
Metrics Year-on-Year
- Average area value
- 470,962.00 £Increased by 18.53 %
- Est sale value
- 467,056.85 £Decreased by 45.91 %
- Average area rental value
- 1,683.00 £/moDecreased by 1.00 %
- Est letting value
- 1,158.95 £/moDecreased by 66.67 %
- Est rental Yield
- 4.29 %Decreased by 16.37 %
- Crime Rate
- 2.00 %Unchanged by 0.00 %
Agent Activity
Blake Mayhew created the listing.
Nearby Schools
| Name | Type | Ofsted | Distance |
|---|---|---|---|
| Broke Hall Community Primary School | Academy Converter | 0.31 KM | |
| Copleston High School | Academy Converter | Good | 1.86 KM |
| St Alban'S Catholic High School | Academy Converter | Good | 1.87 KM |
| Chatterbox Children'S Centre | Children's Centre | 2.09 KM | |
| Quayside Children'S Centre | Children's Centre | 2.09 KM |
Images
Nearby Streets
| Name | Average Price | Average Sqft | Distance |
|---|---|---|---|
| Laburnum Close | £ 350,000 | 0 | 0.00 KM |
| Beech Gardens | £ 0 | 0 | 0.00 KM |
| Bodmin Close | £ 0 | 0 | 0.00 KM |
| Woodbridge Road | £ 300,000 | 0 | 0.00 KM |
| The Boiler House | £ 311,500 | 0 | 0.00 KM |
Nearby Transport
| Name | NLC | TLC | Distance |
|---|---|---|---|
| Derby Road (Ipswich) | 7212 | DBR | 3.06 KM |
| Westerfield | 7226 | WFI | 6.00 KM |
| Ipswich | 7217 | IPS | 7.29 KM |
Nearby Listings
| Address | Price | Type | Score | Distance |
|---|---|---|---|---|
| Chatsworth Drive, Ipswich, IP4 | £ 395,000 | BUY | 6 / 10 | 0.00 KM |
| Chatsworth Drive, Rushmere St. Andrew, Ipswich | £ 325,000 | BUY | 6 / 10 | 0.00 KM |
| Chatsworth Drive, Ipswich, IP4 | £ 350,000 | BUY | 7 / 10 | 0.04 KM |
| Hardwick Close, Ipswich | £ 300,000 | BUY | 7 / 10 | 0.10 KM |
| Chatsworth Drive, Rushmere St. Andrew, IP4 | £ 550,000 | BUY | 7 / 10 | 0.11 KM |
Nearby Properties
| Address | Price | Distance |
|---|---|---|
| 41 Chatsworth Drive | £ 229,995 | 0.00 KM |
| 65 Chatsworth Drive | £ 275,000 | 0.00 KM |
| 19 Chatsworth Drive | £ 300,000 | 0.00 KM |
| 18 Chatsworth Drive | £ 290,000 | 0.00 KM |
| 35 Chatsworth Drive | £ 135,500 | 0.00 KM |