Wetherham Lane, St Tudy PL30
By Cole Rayment & White
£ 675,000
Reviews
3 out of 5 stars
Cole Rayment & White says ..
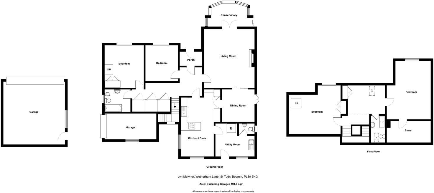
Situated in a lovely mature plot of just over half an acre is this detached dormer house with integral single garage plus detached double garage and large mature gardens. Freehold. Council Tax Band E. EPC rating E.
Property Oracle says ..
This detached property on Wetherham Lane, St Tudy, offers four bedrooms and two bathrooms. It features a large garden and a conservatory. While the property appears to be in reasonable condition, it could benefit from some modernisation. The location is rural, but it is within easy reach of local amenities and larger towns. The asking price of £675,000 seems fair, considering the size of the property and the land it offers, but potential buyers should factor in renovation costs.
Therefore, we give this property 7 / 10. *Disclaimer: This is our option and does constitute a recommendation or financial advice. Do your own research. *
- Price
- 7
- Condition
- 6
- Location
- 7
- Land
- 9
- Bedrooms
- 4
- Bathrooms
- 2
- Sqft (est)
- 1,808.34
The heatmap indicates the level of crime in the area. The color of the heatmap indicates the crime severity and recency.
Metrics Year-on-Year
- Average area value
- 458,437.00 £Decreased by 4.05 %
- Est sale value
- 688,977.54 £Increased by 27.85 %
- Average area rental value
- 1,114.00 £/moIncreased by 37.02 %
- Est letting value
- 0.00 £/mo
- Est rental Yield
- 2.92 %Increased by 43.14 %
- Crime Rate
- 20.00 %Unchanged by 0.00 %
Agent Activity
Cole Rayment & White created the listing.
Nearby Schools
| Name | Type | Ofsted | Distance |
|---|---|---|---|
| St Tudy Cofe Primary School | Academy Converter | Requires improvement | 0.31 KM |
| St Mabyn Cofe School | Academy Converter | Good | 4.46 KM |
| St Teath Community Primary School | Academy Converter | 4.63 KM | |
| St Breward Community Primary School | Academy Converter | 4.89 KM | |
| St Kew Ace Academy | Academy Converter | Good | 7.09 KM |
Images
Nearby Streets
| Name | Average Price | Average Sqft | Distance |
|---|---|---|---|
| Church View | £ 0 | 0 | 0.00 KM |
| Meadow View | £ 0 | 0 | 0.00 KM |
Nearby Listings
| Address | Price | Type | Score | Distance |
|---|---|---|---|---|
| Wetherham Lane, St Tudy PL30 | £ 675,000 | BUY | 7 / 10 | 0.00 KM |
| Glebe Parc, St Tudy, PL30 | £ 280,000 | BUY | 7 / 10 | 0.14 KM |
| St. Tudy, Bodmin, Cornwall, PL30 | £ 250,000 | BUY | Unknown | 0.27 KM |
| Bodmin, Cornwall | £ 350,000 | BUY | 5 / 10 | 0.27 KM |
| Tremeer Lane, St. Tudy, Bodmin | £ 500,000 | BUY | Unknown | 0.33 KM |
Nearby Properties
| Address | Price | Distance |
|---|---|---|
| 10 Glebe Parc | £ 227,000 | 0.11 KM |
| 9 Glebe Parc | £ 189,950 | 0.11 KM |
| 12 Glebe Parc | £ 148,000 | 0.11 KM |
| 5 Glebe Parc | £ 185,000 | 0.11 KM |
| 3 Glebe Parc | £ 225,000 | 0.11 KM |