Watson Homes says ..
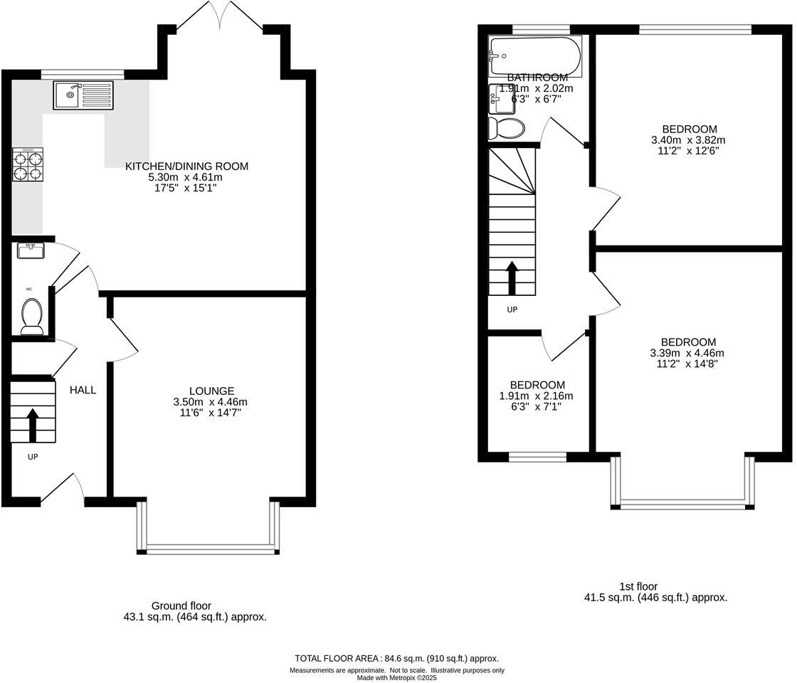
SIMPLY STUNNING!!! Watson Homes Cheam are delighted to offer this immaculately presented three bedroom family home. The property benefits from a modern open plan 17ft kitchen/diner, a downstairs WC, a luxury bathroom suite, a pretty rear garden and ample off street parking. Located on...
Property Oracle says ..
This three-bedroom mid-terrace house located on Church Hill Road in Cheam, Sutton, presents a compelling opportunity for prospective buyers. The property’s location offers a desirable blend of suburban tranquility and urban accessibility. The area is well-served by highly-rated schools, including the outstanding Cheam High School, making it very popular with families. The house’s interior, as evidenced by the provided images, appears to be in immaculate condition. A renovated or recently updated kitchen and bathroom are noticeable features. Beyond the interior quality, the inclusion of a significant and well-maintained rear garden adds considerable value, a rare luxury in many parts of London. The list price falls within the range of recently sold properties in the vicinity, indicating that the pricing is reasonable given the current market conditions and considering the property’s overall appeal and features. While the absence of precise square footage information in some comparable listings prevents a completely precise per-square-foot comparison, overall it appears that the asking price accurately reflects the property’s attractive features and location in a well-regarded suburban area of London. This property is likely to attract high levels of interest.
Therefore, we give this property 7 / 10. *Disclaimer: This is our option and does constitute a recommendation or financial advice. Do your own research. *
- Price
- 7
- Condition
- 9
- Location
- 8
- Land
- 7
- Bedrooms
- 3
- Bathrooms
- 1
- Sqft (est)
- 910.63
The heatmap indicates the level of crime in the area. The color of the heatmap indicates the crime severity and recency.
Metrics Year-on-Year
- Average area value
- 783,500.00 £Decreased by 0.05 %
- Est sale value
- 566,411.86 £Increased by 5.78 %
- Average area rental value
- 2,348.00 £/moIncreased by 2.67 %
- Est letting value
- 910.63 £/moUnchanged by 0.00 %
- Est rental Yield
- 3.60 %Increased by 2.86 %
- Crime Rate
- 3.00 %Unchanged by 0.00 %
Agent Activity
Watson Homes created the listing.
Nearby Schools
| Name | Type | Ofsted | Distance |
|---|---|---|---|
| Cheam High School | Academy Converter | Outstanding | 0.20 KM |
| Cheam Fields Primary Academy | Academy Converter | Good | 0.44 KM |
| Cheam Park Farm Primary Academy | Academy Converter | Outstanding | 0.85 KM |
| Brookways School | Other Independent Special School | Good | 1.13 KM |
| Green Oak Children'S Centre (Formally Nonsuch And Cheam Sure Start Children'S Centre) | Children's Centre | 1.23 KM |
Images
Nearby Streets
| Name | Average Price | Average Sqft | Distance |
|---|---|---|---|
| Esher Avenue | £ 587,500 | 0 | 0.00 KM |
| The Meads | £ 0 | 0 | 0.00 KM |
| Church Farm Road | £ 0 | 0 | 0.00 KM |
| Westfield Close | £ 0 | 0 | 0.00 KM |
| Cheam Park Way | £ 0 | 0 | 0.00 KM |
Nearby Transport
| Name | NLC | TLC | Distance |
|---|---|---|---|
| West Sutton | 5293 | WSU | 1.27 KM |
| Cheam | 5352 | CHE | 1.35 KM |
| Sutton Common | 5436 | SUC | 2.39 KM |
| Sutton | 5385 | SUO | 2.93 KM |
| St Helier | 5290 | SIH | 3.19 KM |
Nearby Listings
| Address | Price | Type | Score | Distance |
|---|---|---|---|---|
| Church Hill Road, Cheam | £ 600,000 | BUY | 7 / 10 | 0.00 KM |
| Church Hill Road, Cheam, SM3 | £ 225,000 | BUY | 6 / 10 | 0.02 KM |
| Northfield Crescent, Cheam, Sutton, SM3 | £ 775,000 | BUY | 7 / 10 | 0.09 KM |
| Northfield Crescent, Sutton | £ 575,000 | BUY | Unknown | 0.12 KM |
| Abbotts Road, Cheam, Sutton, SM3 | £ 525,000 | BUY | 6 / 10 | 0.16 KM |
Nearby Properties
| Address | Price | Distance |
|---|---|---|
| 32 Church Hill Road | £ 615,000 | 0.01 KM |
| 76 Church Hill Road | £ 415,000 | 0.01 KM |
| 44 Church Hill Road | £ 472,000 | 0.01 KM |
| 42 Church Hill Road | £ 250,000 | 0.01 KM |
| 131a Church Hill Road | £ 160,000 | 0.01 KM |