Crispin Road, Rochester, Kent, ME2
By Andrew Kingsley
£ 535,000
Reviews
3 out of 5 stars
Andrew Kingsley says ..
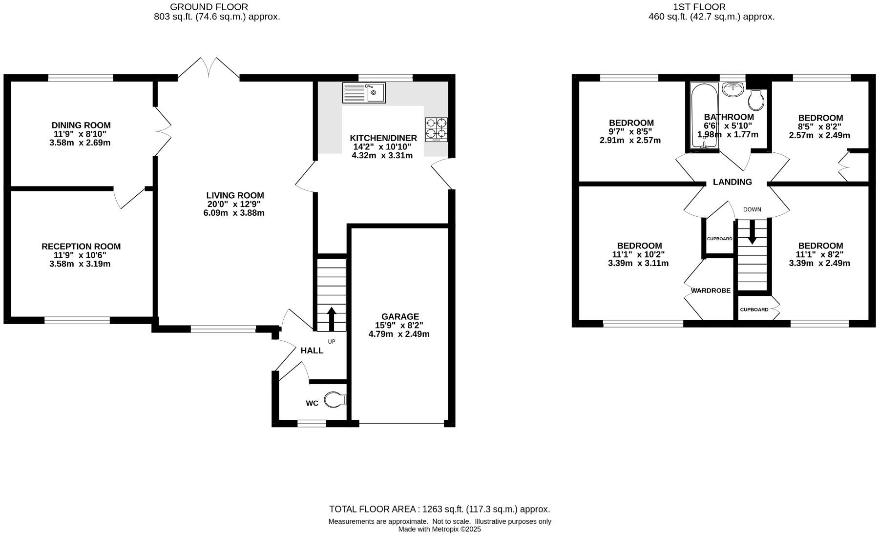
Andrew Kingsley is delighted to offer For Sale this spacious and well maintained 4 Bed Detached extended family home, set in lovely gardens with an Integral Garage. Situated in a prime residential location with close access to the A2 and only a short drive to Ebbsfleet International Train Station.
Property Oracle says ..
This is a detached property located on Crispin Road in Rochester. It features four bedrooms and one bathroom. While the square footage is not provided, the property includes a garden and garage. Nearby, there are several schools, including Abbey Court Foundation Special School with an ‘Outstanding’ Ofsted rating. The closest train station is Strood (Kent), which is 2.96 KM away. The property appears to be well-maintained, although the interior design might benefit from modernisation. The asking price is £535,000, which is higher than some recent sales of similar properties in the area.
Therefore, we give this property 7 / 10. *Disclaimer: This is our option and does constitute a recommendation or financial advice. Do your own research. *
- Price
- 6
- Condition
- 7
- Location
- 7
- Land
- 8
- Bedrooms
- 4
- Bathrooms
- 1
The heatmap indicates the level of crime in the area. The color of the heatmap indicates the crime severity and recency.
Metrics Year-on-Year
- Average area value
- 224,000.00 £Decreased by 29.61 %
- Average area rental value
- 1,116.00 £/moDecreased by 12.40 %
- Est rental Yield
- 5.98 %Increased by 24.58 %
- Crime Rate
- 6.00 %Unchanged by 0.00 %
Agent Activity
Andrew Kingsley created the listing.
Nearby Schools
| Name | Type | Ofsted | Distance |
|---|---|---|---|
| Abbey Court Foundation Special School | Community Special School | Outstanding | 0.55 KM |
| Elaine Primary School | Academy Sponsor Led | 0.85 KM | |
| Strood Academy | Academy Sponsor Led | Good | 0.98 KM |
| Manorway Independent School | Other Independent Special School | Inadequate | 1.06 KM |
| Cedar Children'S Academy | Academy Sponsor Led | Good | 1.32 KM |
Images
Nearby Streets
| Name | Average Price | Average Sqft | Distance |
|---|---|---|---|
| Crispin Road | £ 0 | 0 | 0.00 KM |
| Russet Close | £ 0 | 0 | 0.00 KM |
| A2 | £ 375,000 | 0 | 0.00 KM |
| Cedar Road; Hawthorn Road | £ 300,000 | 0 | 0.00 KM |
| Ash Road | £ 0 | 0 | 0.00 KM |
Nearby Transport
| Name | NLC | TLC | Distance |
|---|---|---|---|
| Strood (Kent) | 5191 | SOO | 2.96 KM |
| Higham | 5202 | HGM | 3.02 KM |
| Cuxton | 5201 | CUX | 3.24 KM |
| Rochester | 5203 | RTR | 4.37 KM |
| Chatham | 5199 | CTM | 5.70 KM |
Nearby Listings
| Address | Price | Type | Score | Distance |
|---|---|---|---|---|
| Crispin Road, Rochester, Kent, ME2 | £ 535,000 | BUY | 7 / 10 | 0.00 KM |
| Crispin Road, Rochester, Kent, ME2 | £ 475,000 | BUY | 7 / 10 | 0.02 KM |
| Linwood Avenue, Rochester, Kent | £ 375,000 | BUY | Unknown | 0.15 KM |
| Linwood Avenue, Rochester, Kent | £ 248,000 | BUY | 6 / 10 | 0.15 KM |
| Rede Court Road, Rochester, ME2 3TF | £ 400,000 | BUY | 7 / 10 | 0.16 KM |
Nearby Properties
| Address | Price | Distance |
|---|---|---|
| 4 Crispin Road | £ 205,000 | 0.00 KM |
| 126 Rede Court Road | £ 485,000 | 0.14 KM |
| 53 Linwood Avenue | £ 327,000 | 0.15 KM |
| 11 Linwood Avenue | £ 142,000 | 0.15 KM |
| 1 Linwood Avenue | £ 220,000 | 0.15 KM |