Everton Road, Hordle, Lymington, SO41
By Spencers Of The New Forest
£ 675,000
Reviews
3 out of 5 stars
Spencers Of The New Forest says ..
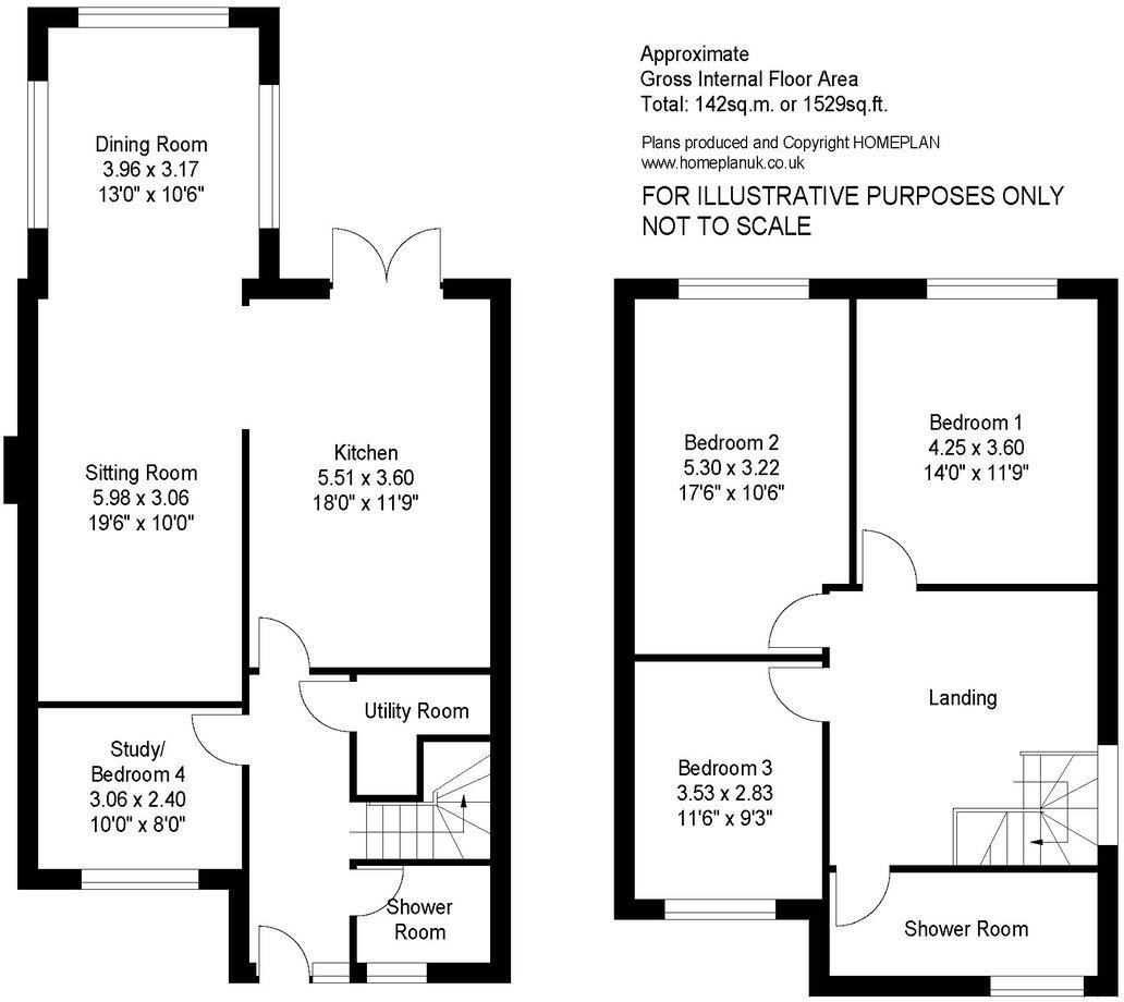
A beautifully presented, substantial detached home. The property has extended its original footprint to create a home of space, light and warmth. This beautiful house has a superb layout and should attract purchasers looking for a home which is presented in first class order throughout, offeri...
Property Oracle says ..
This is a detached property in Hordle, Lymington, Hampshire. It features four bedrooms and two bathrooms. The house appears to be in good condition, with a modern interior and a well-maintained garden. The property is located close to local schools and amenities. The listing price is £675,000, which is above the average property price for the area.
Therefore, we give this property 7 / 10. *Disclaimer: This is our option and does constitute a recommendation or financial advice. Do your own research. *
- Price
- 6
- Condition
- 8
- Location
- 7
- Land
- 7
- Bedrooms
- 4
- Bathrooms
- 2
The heatmap indicates the level of crime in the area. The color of the heatmap indicates the crime severity and recency.
Metrics Year-on-Year
- Average area value
- 584,000.00 £Increased by 30.99 %
- Average area rental value
- 3,500.00 £/moIncreased by 145.61 %
- Est rental Yield
- 7.19 %Increased by 87.24 %
- Crime Rate
- 0.00 %
Agent Activity
Spencers Of The New Forest created the listing.
Nearby Schools
| Name | Type | Ofsted | Distance |
|---|---|---|---|
| Hordle Cofe (Va) Primary School | Voluntary Aided School | Outstanding | 0.36 KM |
| Ashley Infant School | Community School | Good | 2.93 KM |
| Milford-On-Sea Church Of England Primary School | Academy Converter | 3.23 KM | |
| St Luke'S Church Of England Primary School | Voluntary Controlled School | Outstanding | 3.47 KM |
| Ashley Junior School | Foundation School | Good | 3.51 KM |
Images
Nearby Streets
| Name | Average Price | Average Sqft | Distance |
|---|---|---|---|
| Whitebarn Crescent | £ 425,000 | 0 | 0.00 KM |
| Charlton Close | £ 0 | 0 | 0.00 KM |
| Christchurch Road | £ 0 | 0 | 0.00 KM |
| Larch Close | £ 0 | 0 | 0.00 KM |
| Lavender Gardens | £ 560,000 | 0 | 0.00 KM |
Nearby Transport
| Name | NLC | TLC | Distance |
|---|---|---|---|
| Sway | 5884 | SWY | 3.37 KM |
| New Milton | 5881 | NWM | 5.33 KM |
| Brockenhurst | 5886 | BCU | 8.01 KM |
| Lymington Town | 5887 | LYT | 8.05 KM |
| Lymington Pier | 5892 | LYP | 8.88 KM |
Nearby Listings
| Address | Price | Type | Score | Distance |
|---|---|---|---|---|
| Everton Road, Hordle, Lymington, SO41 | £ 675,000 | BUY | 7 / 10 | 0.00 KM |
| Everton Road, Hordle, Lymington, SO41 | £ 450,000 | BUY | 7 / 10 | 0.05 KM |
| Longfield Road, Hordle, Lymington, Hampshire, SO41 | £ 425,000 | BUY | 7 / 10 | 0.09 KM |
| Longfield Road, Hordle, Lymington, Hampshire, SO41 | £ 525,000 | BUY | Unknown | 0.10 KM |
| Longfield Road, Hordle, Hampshire, SO41 | £ 389,950 | BUY | 6 / 10 | 0.11 KM |
Nearby Properties
| Address | Price | Distance |
|---|---|---|
| 158 Everton Road | £ 293,000 | 0.03 KM |
| 120 Everton Road | £ 245,000 | 0.03 KM |
| 156 Everton Road | £ 320,000 | 0.04 KM |
| 118 Everton Road | £ 252,000 | 0.04 KM |
| 184 Everton Road | £ 775,000 | 0.04 KM |