Heritage Barn, Ellerdine, Telford, Shropshire, TF6 6QR
By Mannleys Sales & Lettings
£ 900,000
Reviews
3 out of 5 stars
Mannleys Sales & Lettings says ..
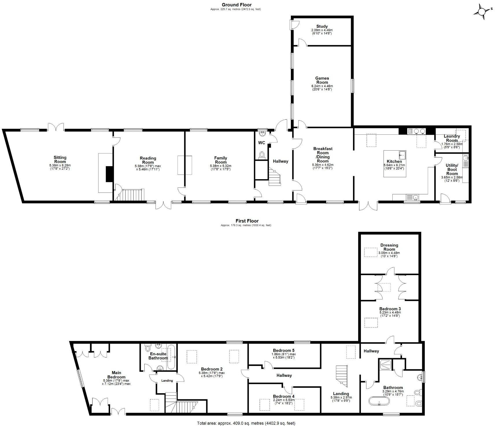
This stunning barn conversion boasts over 4400sqft of living space, 5 bedrooms, 2 bathrooms, 5 reception rooms, and a prime rural location with excellent road links.
Property Oracle says ..
This barn conversion is located in Ellerdine, Shropshire, and is on the market for £900,000. The property boasts 5 bedrooms and 2 bathrooms, and is approximately 3,973 square feet. The plot size is 4,402 square feet. The average house price in the area is £442,750, with an average size of 1,646 square feet and average price per square foot of £268. Given the size and type of property, the price seems high compared to the average in the area, but this is likely due to the unique nature of a barn conversion and the larger plot size. The property appears to be in excellent condition and benefits from a substantial amount of land. There are several primary schools within a reasonable distance, which is a positive aspect for families. While the immediate area appears quiet, the proximity to nearby towns and villages adds to the appeal. Overall, the property is a desirable offering in a tranquil setting, but the price point is a significant factor to consider.
Therefore, we give this property 7 / 10. *Disclaimer: This is our option and does constitute a recommendation or financial advice. Do your own research. *
- Price
- 6
- Condition
- 9
- Location
- 7
- Land
- 8
- Bedrooms
- 5
- Bathrooms
- 2
- Sqft (est)
- 3,972.96
- Lot (est)
- 4,402.44
The heatmap indicates the level of crime in the area. The color of the heatmap indicates the crime severity and recency.
Metrics Year-on-Year
- Average area value
- 461,863.00 £Increased by 14.54 %
- Est sale value
- 1,291,212.00 £Increased by 75.68 %
- Average area rental value
- 775.00 £/moDecreased by 30.12 %
- Est letting value
- 0.00 £/mo
- Est rental Yield
- 2.01 %Decreased by 39.09 %
- Crime Rate
- 0.00 %
Agent Activity
Mannleys Sales & Lettings created the listing.
Nearby Schools
| Name | Type | Ofsted | Distance |
|---|---|---|---|
| High Ercall Primary School | Foundation School | Good | 4.45 KM |
| Crudgington Primary School | Academy Converter | 4.59 KM | |
| Rodenhurst School | Other Independent Special School | 6.21 KM | |
| Hodnet Primary School | Community School | Good | 7.19 KM |
| St Marys Cofe Primary School | Academy Converter | 8.26 KM |
Images
Nearby Streets
| Name | Average Price | Average Sqft | Distance |
|---|---|---|---|
| Grange Cottages | £ 0 | 0 | 0.00 KM |
| Church Row | £ 0 | 0 | 0.00 KM |
| Twiney Lane | £ 690,000 | 0 | 0.00 KM |
| Oak House Cottages | £ 0 | 0 | 0.00 KM |
Nearby Listings
| Address | Price | Type | Score | Distance |
|---|---|---|---|---|
| Heritage Barn, Ellerdine, Telford, Shropshire, TF6 6QR | £ 900,000 | BUY | 7 / 10 | 0.00 KM |
| Heritage Barn, Ellerdine, Telford, Shropshire, TF6 6QR | £ 900,000 | BUY | 7 / 10 | 0.00 KM |
| Rowton, Telford, Shropshire, TF6 6QY | £ 585,000 | BUY | 8 / 10 | 1.27 KM |
| Rowton, Telford, Shropshire, TF6 6QY | £ 585,000 | BUY | 7 / 10 | 1.27 KM |
| The Brambles, Windy Oak Barns, Ellerdine | £ 595,000 | BUY | 8 / 10 | 1.49 KM |
Nearby Properties
| Address | Price | Distance |
|---|---|---|
| 3 Church Row | £ 79,000 | 1.36 KM |
| 9 Cliffe Crescent | £ 225,000 | 1.64 KM |
| 1 Cliffe Crescent | £ 206,500 | 1.64 KM |
| 2 Cliff Crescent | £ 185,000 | 1.64 KM |
| 7 Farriers Court | £ 195,000 | 1.66 KM |