Harper & Woods says ..
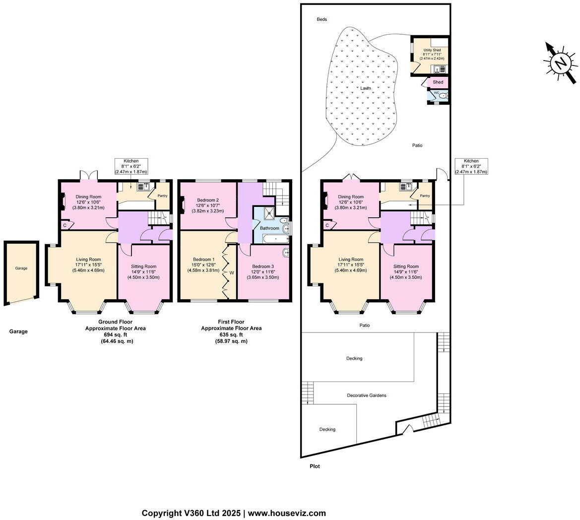
A simply lovely family home! This recently redecorated and newly carpeted, detached home offers some fantastic views towards the Welsh Hills, with three double bedrooms, sunny rear garden and great decked terrace areas at front, which soak up the afternoon and evening sun. Sitting proud in an ...
Property Oracle says ..
This is a detached property on Cliff Road, Wallasey, featuring three bedrooms and one bathroom. The house offers a good amount of living space at 1,328.59 sqft and includes a garden and patio. While the property is in reasonable condition, some areas, such as the bathroom and kitchen, would benefit from modernisation. The location is convenient, with nearby schools and transport links. The asking price of £275,000 seems fair, considering the size and location of the property.
Therefore, we give this property 6 / 10. *Disclaimer: This is our option and does constitute a recommendation or financial advice. Do your own research. *
- Price
- 7
- Condition
- 6
- Location
- 7
- Land
- 7
- Bedrooms
- 3
- Bathrooms
- 1
- Sqft (est)
- 1,328.59
The heatmap indicates the level of crime in the area. The color of the heatmap indicates the crime severity and recency.
Metrics Year-on-Year
- Average area value
- 158,667.00 £Decreased by 12.47 %
- Est sale value
- 284,318.26 £Increased by 35.44 %
- Average area rental value
- 606.00 £/moDecreased by 22.70 %
- Est letting value
- 0.00 £/mo
- Est rental Yield
- 4.58 %Decreased by 11.75 %
- Crime Rate
- 2.00 %Unchanged by 0.00 %
Agent Activity
Harper & Woods created the listing.
Nearby Schools
| Name | Type | Ofsted | Distance |
|---|---|---|---|
| Weatherhead High School | Academy Converter | Outstanding | 0.16 KM |
| St George'S Primary School | Community School | Good | 1.03 KM |
| The Oldershaw School | Academy Converter | Good | 1.06 KM |
| Park Primary School | Community School | Good | 1.08 KM |
| The Mosslands School | Community School | Requires improvement | 1.16 KM |
Images
Nearby Streets
| Name | Average Price | Average Sqft | Distance |
|---|---|---|---|
| Westbourne Road | £ 0 | 0 | 0.00 KM |
| Bala Grove | £ 0 | 0 | 0.00 KM |
| Loretto Road | £ 0 | 0 | 0.00 KM |
| Hillside Road | £ 0 | 0 | 0.00 KM |
| Shrewsbury Road | £ 340,000 | 0 | 0.00 KM |
Nearby Transport
| Name | NLC | TLC | Distance |
|---|---|---|---|
| Birkenhead North | 2145 | BKN | 1.25 KM |
| Wallasey Village | 2265 | WLV | 1.59 KM |
| Wallasey Grove Road | 2154 | WLG | 1.99 KM |
| Bidston | 2136 | BID | 2.52 KM |
| New Brighton | 2152 | NBN | 2.61 KM |
Nearby Listings
| Address | Price | Type | Score | Distance |
|---|---|---|---|---|
| Cliff Road, Wallasey | £ 275,000 | BUY | 6 / 10 | 0.00 KM |
| Cliff Road, Wallasey, Wirral | £ 310,000 | BUY | 7 / 10 | 0.03 KM |
| Palmerston Road, Wallasey, Wirral | £ 350,000 | BUY | 6 / 10 | 0.04 KM |
| Willoughby Road, Wallasey, Wirral | £ 270,000 | BUY | Unknown | 0.11 KM |
| Breck Road, Wallasey, Wirral | £ 255,000 | BUY | Unknown | 0.16 KM |
Nearby Properties
| Address | Price | Distance |
|---|---|---|
| 72 Cliff Road | £ 255,000 | 0.01 KM |
| 15 Palmerston Road | £ 197,500 | 0.04 KM |
| 13 Palmerston Road | £ 197,000 | 0.04 KM |
| 7 Palmerston Road | £ 154,000 | 0.05 KM |
| 14 Palmerston Road | £ 240,000 | 0.07 KM |