Clovelly Road, Bideford, EX39
By John Smale & Co
£ 110,000
Reviews
2 out of 5 stars
John Smale & Co says ..
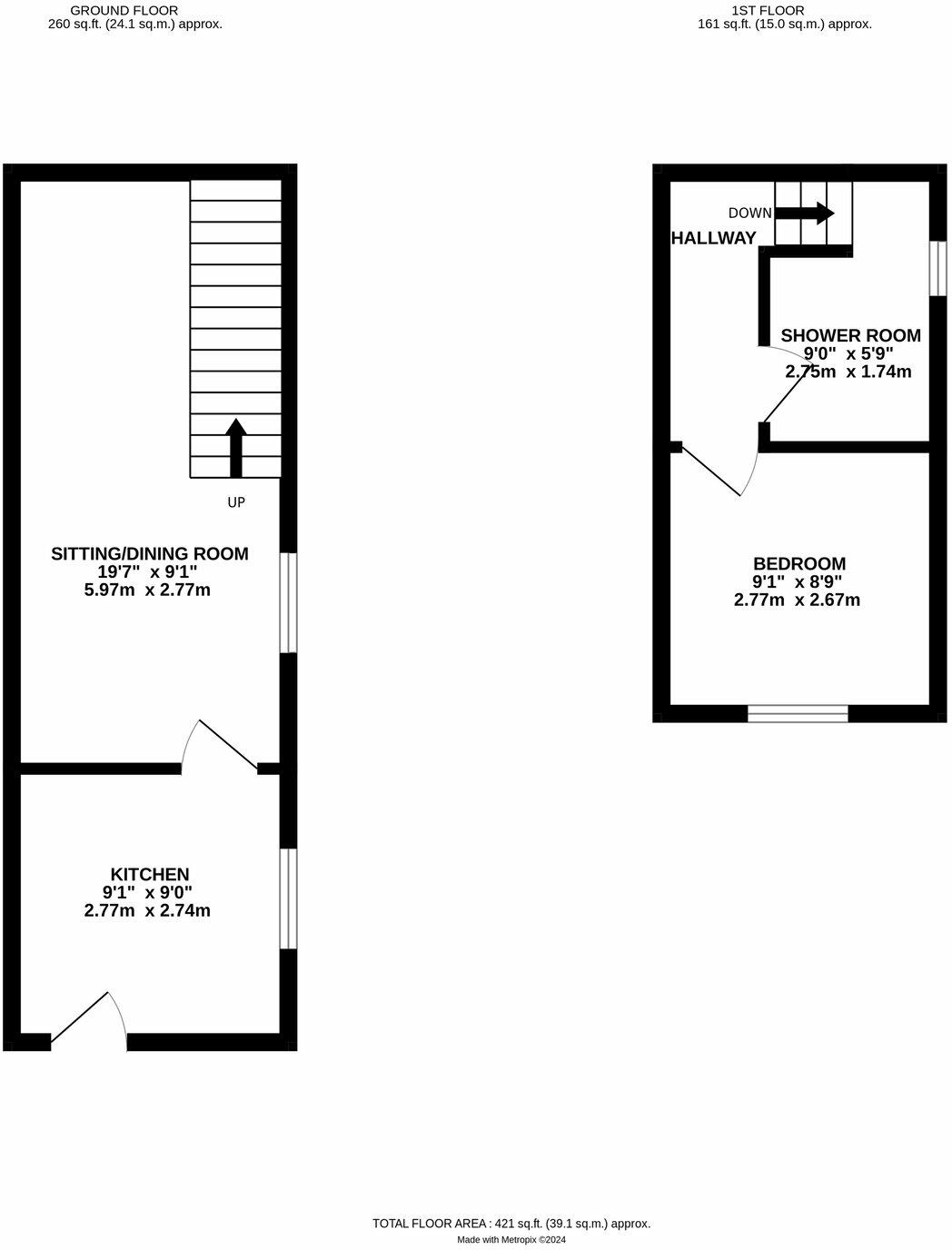
Ideally suited as a great first time buy or alternatively as an investment proposition, with excellent rental potential, is this ground and first floor maisonette which benefits from PVC double glazing and gas central heating, with a private courtyard, along with allocated parking. Available w...
Property Oracle says ..
This one-bedroom, one-bathroom maisonette located on Clovelly Road in Bideford, Devon, presents an opportunity for a first-time buyer or investor. The property is situated in an area with relatively close access to schools like West Croft School and Bideford College, making it appealing for families. The property’s condition appears to be adequate, though updating the interior (kitchen and bathroom in particular) would enhance its appeal. The list price of £110,000 is in line with nearby comparable properties, but more information is needed to fully analyze price per sqft value. A notable drawback is the limited land or garden space. The property does benefit from an allocated parking space, a considerable advantage in this area. Overall, this maisonette represents a viable entry point to the Bideford property market, particularly for those not requiring a large garden. Buyers should factor in potential costs associated with modernising the interior.
Therefore, we give this property 5 / 10. *Disclaimer: This is our option and does constitute a recommendation or financial advice. Do your own research. *
- Price
- 7
- Condition
- 5
- Location
- 6
- Land
- 2
- Bedrooms
- 1
- Bathrooms
- 1
- Sqft (est)
- 420.87
The heatmap indicates the level of crime in the area. The color of the heatmap indicates the crime severity and recency.
Metrics Year-on-Year
- Average area value
- 320,749.00 £Increased by 14.47 %
- Est sale value
- 175,502.79 £Increased by 43.30 %
- Average area rental value
- 825.00 £/moIncreased by 40.78 %
- Est letting value
- 420.87 £/mo
- Est rental Yield
- 3.09 %Increased by 23.11 %
- Crime Rate
- 16.00 %Unchanged by 0.00 %
Agent Activity
John Smale & Co created the listing.
Nearby Schools
| Name | Type | Ofsted | Distance |
|---|---|---|---|
| West Croft School | Community School | Requires improvement | 0.22 KM |
| Bideford College | Academy Sponsor Led | Requires improvement | 0.72 KM |
| Kingsley School | Other Independent School | 0.94 KM | |
| St Mary'S Church Of England Primary School | Voluntary Controlled School | Good | 1.55 KM |
| Bideford Bay Children'S Centre | Children's Centre | 1.83 KM |
Images
Nearby Streets
| Name | Average Price | Average Sqft | Distance |
|---|---|---|---|
| Pynes Lane | £ 0 | 0 | 0.00 KM |
| Dymond Road | £ 335,000 | 0 | 0.00 KM |
| High View | £ 0 | 0 | 0.00 KM |
| Belvoir Road | £ 438,375 | 0 | 0.00 KM |
| Abbotsham Road | £ 365,000 | 0 | 0.00 KM |
Nearby Listings
| Address | Price | Type | Score | Distance |
|---|---|---|---|---|
| Clovelly Road, Bideford, EX39 | £ 110,000 | BUY | 5 / 10 | 0.00 KM |
| Bideford, North Devon | £ 400,000 | BUY | 7 / 10 | 0.04 KM |
| Clovelly Road, Bideford | £ 212,995 | BUY | 6 / 10 | 0.06 KM |
| Clovelly Road, Bideford | £ 214,995 | BUY | 6 / 10 | 0.06 KM |
| Bideford, Devon | £ 260,000 | BUY | 6 / 10 | 0.06 KM |
Nearby Properties
| Address | Price | Distance |
|---|---|---|
| 46 Clovelly Road | £ 205,000 | 0.05 KM |
| 96 Clovelly Road | £ 162,000 | 0.05 KM |
| 91 Clovelly Road | £ 250,000 | 0.05 KM |
| 101 Clovelly Road | £ 144,000 | 0.05 KM |
| 106 Clovelly Road | £ 183,000 | 0.05 KM |