Top Lane, Copmanthorpe, YO23
By Wishart Estate Agents
£ 215,000
Reviews
3 out of 5 stars
Wishart Estate Agents says ..
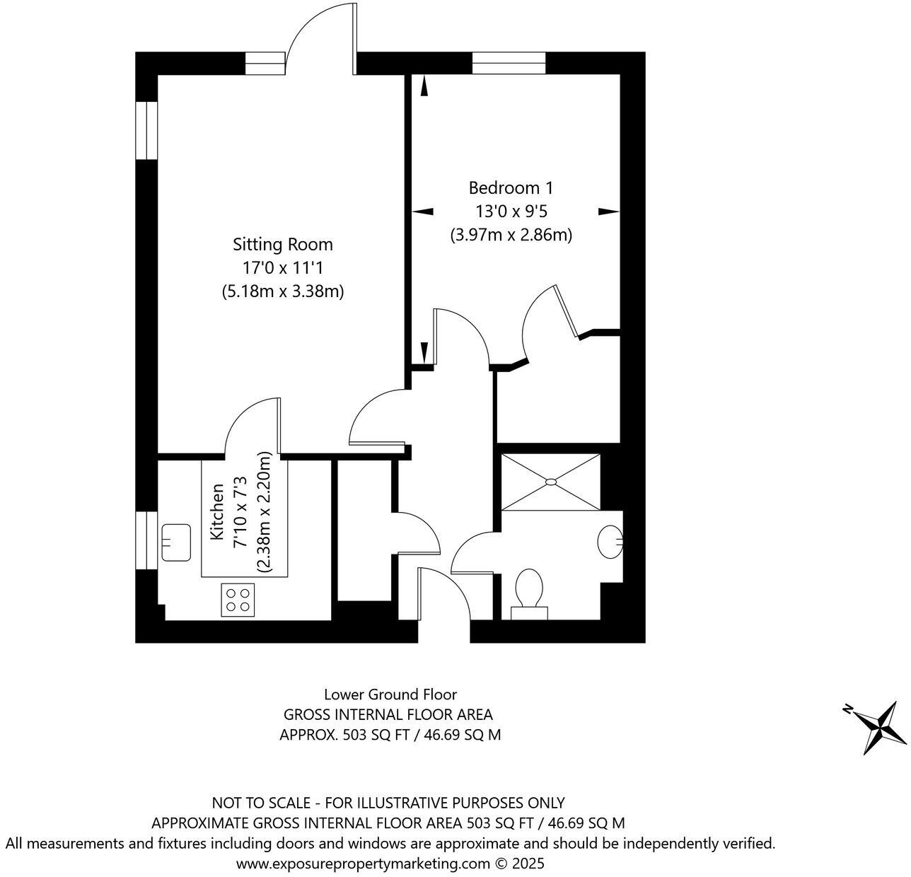
This stylish apartment offers modern living with UNDERFLOOR HEATING, an OPEN-PLAN lounge/diner, and a beautiful easterly facing PATIO. Exclusive to the over-60s, with secure entry, a HOUSE MANAGER, communal lounge, and guest suite. Conveniently located near LOCAL AMENITIES and just a short drive...
Property Oracle says ..
Copmanthorpe is a desirable village location close to York. The property benefits from being within easy reach of Copmanthorpe Primary School, which has a good Ofsted rating. Transport links to York and Poppleton are also relatively convenient. The apartment itself appears to be in good condition, well-maintained, and presented to a high standard. The presence of a private garden is a definite advantage, adding to the overall appeal. Considering the average price per square foot in the area is £308, and this apartment is listed at £215,000 for 503 sqft (£427 per sqft), the list price appears slightly higher than the average, but comparable properties in the area support this pricing. However, the lack of information on the size of comparable properties makes a definitive statement on value difficult.
Therefore, we give this property 7 / 10. *Disclaimer: This is our option and does constitute a recommendation or financial advice. Do your own research. *
- Price
- 7
- Condition
- 9
- Location
- 8
- Land
- 7
- Bedrooms
- 1
- Bathrooms
- 1
- Sqft (est)
- 503.00
The heatmap indicates the level of crime in the area. The color of the heatmap indicates the crime severity and recency.
Metrics Year-on-Year
- Average area value
- 591,875.00 £Increased by 5.13 %
- Est sale value
- 239,931.00 £Decreased by 6.47 %
- Average area rental value
- 1,194.00 £/moDecreased by 3.63 %
- Est letting value
- 0.00 £/moDecreased by 100.00 %
- Est rental Yield
- 2.42 %Decreased by 8.33 %
- Crime Rate
- 2.00 %Unchanged by 0.00 %
Agent Activity
Wishart Estate Agents created the listing.
Nearby Schools
| Name | Type | Ofsted | Distance |
|---|---|---|---|
| Copmanthorpe Primary School | Community School | Good | 0.48 KM |
| Woodthorpe Primary School | Academy Converter | 2.12 KM | |
| Askham Bryan College | Further Education | Good | 2.50 KM |
| Westfield Primary Community School | Community School | Good | 3.26 KM |
| York High School | Academy Sponsor Led | 3.27 KM |
Images
Nearby Streets
| Name | Average Price | Average Sqft | Distance |
|---|---|---|---|
| Church Street | £ 425,000 | 0 | 0.00 KM |
| Saint Nicholas Crescent | £ 425,000 | 0 | 0.00 KM |
| Fletcher's Croft | £ 0 | 0 | 0.00 KM |
| Saint Giles Way | £ 290,000 | 0 | 0.00 KM |
| College Road | £ 475,000 | 0 | 0.00 KM |
Nearby Transport
| Name | NLC | TLC | Distance |
|---|---|---|---|
| Poppleton | 8254 | POP | 6.25 KM |
| York | 8263 | YRK | 6.54 KM |
Nearby Listings
| Address | Price | Type | Score | Distance |
|---|---|---|---|---|
| Top Lane, Copmanthorpe, YO23 | £ 215,000 | BUY | 7 / 10 | 0.00 KM |
| Top Lane, Copmanthorpe, YO23 | £ 200,000 | BUY | 7 / 10 | 0.00 KM |
| Top Lane, Copmanthorpe, YO23 | £ 325,000 | BUY | 6 / 10 | 0.00 KM |
| Top Lane, Copmanthorpe, YO23 | £ 310,000 | BUY | Unknown | 0.00 KM |
| Top Lane, Copmanthorpe, YO23 | £ 315,000 | BUY | 6 / 10 | 0.00 KM |
Nearby Properties
| Address | Price | Distance |
|---|---|---|
| 58 Top Lane | £ 432,000 | 0.11 KM |
| 4 Top Lane | £ 330,000 | 0.11 KM |
| 50 Top Lane | £ 248,500 | 0.11 KM |
| 68 Top Lane | £ 285,000 | 0.11 KM |
| 14 Top Lane | £ 440,000 | 0.11 KM |