Magpie Cottage, Edginswell Lane, Torquay
By Daniel Hobbin Estate Agents
£ 245,000
Reviews
3 out of 5 stars
Daniel Hobbin Estate Agents says ..
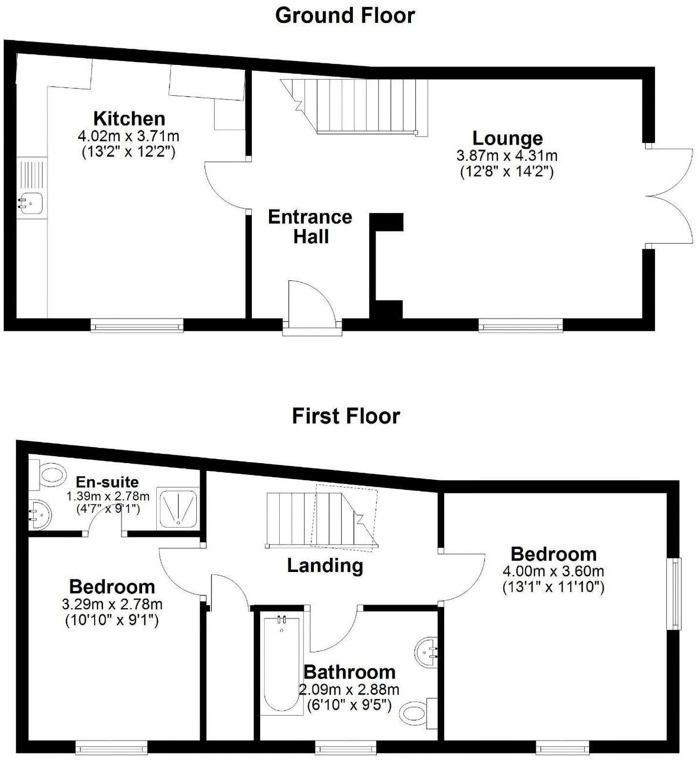
Charming End-Terraced Cottage-Style Home | No Onward Chain | Sought-After Hamlet Setting in Edginswell | Excellent Access to Local Shops & Amenities | Living Room with Garden Access | Well-Proportioned Kitchen | 2 Bedrooms Including En-Suite Master | Allocated Parking
Property Oracle says ..
Magpie Cottage is a traditional cottage located in Shiphay, Torbay. The property features two bedrooms and two bathrooms. While the location offers convenient access to schools and transportation, the property requires renovation, particularly in the kitchen and bathrooms. The inclusion of a garden is a positive attribute. Considering the condition and location, the list price of £245,000 appears reasonable, but potential buyers should factor in renovation costs.
Therefore, we give this property 6 / 10. *Disclaimer: This is our option and does constitute a recommendation or financial advice. Do your own research. *
- Price
- 8
- Condition
- 4
- Location
- 7
- Land
- 7
- Bedrooms
- 2
- Bathrooms
- 2
The heatmap indicates the level of crime in the area. The color of the heatmap indicates the crime severity and recency.
Metrics Year-on-Year
- Average area value
- 370,455.00 £Increased by 6.00 %
- Average area rental value
- 971.00 £/moDecreased by 11.08 %
- Est rental Yield
- 3.15 %Decreased by 16.00 %
- Crime Rate
- 8.00 %Unchanged by 0.00 %
Agent Activity
Daniel Hobbin Estate Agents created the listing.
Nearby Schools
| Name | Type | Ofsted | Distance |
|---|---|---|---|
| Shiphay Learning Academy | Academy Converter | 0.94 KM | |
| Sherwell Valley Primary School | Community School | Good | 1.63 KM |
| Kingskerswell Church Of England Primary School | Voluntary Controlled School | Good | 1.83 KM |
| Torquay Boys' Grammar School | Academy Converter | Good | 1.90 KM |
| Torquay Girls Grammar School | Academy Converter | Outstanding | 2.20 KM |
Images
Nearby Streets
| Name | Average Price | Average Sqft | Distance |
|---|---|---|---|
| South Devon Highway | £ 400,000 | 0 | 0.00 KM |
| South Devon Highway | £ 472,500 | 0 | 0.00 KM |
| Saturday's Lane | £ 0 | 0 | 0.00 KM |
| Higher Edginswell Lane | £ 0 | 0 | 0.00 KM |
| Caroline Close | £ 550,000 | 0 | 0.00 KM |
Nearby Transport
| Name | NLC | TLC | Distance |
|---|---|---|---|
| Torre | 3432 | TRR | 3.09 KM |
| Torquay | 3434 | TQY | 4.12 KM |
| Paignton | 3427 | PGN | 5.65 KM |
| Newton Abbot | 3426 | NTA | 5.80 KM |
Nearby Listings
| Address | Price | Type | Score | Distance |
|---|---|---|---|---|
| Magpie Cottage, Edginswell Lane, Torquay | £ 245,000 | BUY | 6 / 10 | 0.00 KM |
| Edginswell Lane, Torquay | £ 1,100,000 | BUY | 8 / 10 | 0.01 KM |
| Edginswell Lane, Torquay, Devon, TQ2 7JF | £ 110,000 | BUY | 6 / 10 | 0.01 KM |
| Edginswell Lane, Torquay | £ 700,000 | BUY | 8 / 10 | 0.01 KM |
| Edginswell Lane, Torquay | £ 75,000 | BUY | 5 / 10 | 0.01 KM |
Nearby Properties
| Address | Price | Distance |
|---|---|---|
| Mission Hall Cottage | £ 230,000 | 0.02 KM |
| Wayside | £ 292,000 | 0.02 KM |
| Savannah | £ 330,000 | 0.02 KM |
| Hillside | £ 440,000 | 0.02 KM |
| Timeless | £ 442,500 | 0.02 KM |