Edward Street, Cannock
By Lovett&Co. Estate Agents
£ 270,000
Reviews
3 out of 5 stars
Lovett&Co. Estate Agents says ..
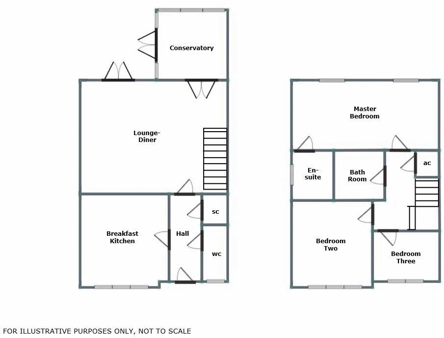
Lovett&Co. Estate Agents are pleased to offer for sale this well presented three bedroom semi-detached property, a hidden gem, situated off the main road down a shared private driveway. The property boasts a quiet outlook and large private rear garden, ideal for families and pets to play as w...
Property Oracle says ..
This three-bedroom, two-bathroom property located on Edward Street in Cannock, Staffordshire presents as a reasonably well-maintained family home. The exterior is in good condition, with a neat brick and render finish. The interior photos show a functional layout, with a kitchen that appears adequately equipped, though perhaps slightly dated in style. The living spaces are of a comfortable size, and the bedrooms are presented as suitable for family use. The property benefits from a garden and off-street parking. The location is convenient, with relatively close proximity to schools and transport links. While Cannock itself isn’t considered a prime location, it offers a balance of affordability and accessibility. The lack of precise square footage data makes a definitive assessment of the price per square foot difficult, but the listed price seems to fall within the range of comparable properties in the area. Overall, this property represents a solid, family-friendly option in a convenient location, though potential buyers might want to factor in the possibility of future cosmetic updates or improvements.
Therefore, we give this property 6 / 10. *Disclaimer: This is our option and does constitute a recommendation or financial advice. Do your own research. *
- Price
- 7
- Condition
- 6
- Location
- 7
- Land
- 4
- Bedrooms
- 3
- Bathrooms
- 2
- Sqft (est)
- 7.88
The heatmap indicates the level of crime in the area. The color of the heatmap indicates the crime severity and recency.
Metrics Year-on-Year
- Average area value
- 219,975.00 £Increased by 2.77 %
- Est sale value
- 2,237.92 £Increased by 24.56 %
- Average area rental value
- 1,200.00 £/moIncreased by 50.00 %
- Est letting value
- 7.88 £/mo
- Est rental Yield
- 6.55 %Increased by 45.88 %
- Crime Rate
- 4.00 %Unchanged by 0.00 %
Agent Activity
Lovett&Co. Estate Agents created the listing.
Nearby Schools
| Name | Type | Ofsted | Distance |
|---|---|---|---|
| Cannock Chase Children'S Centre | Children's Centre | 0.78 KM | |
| Cannock Chase High School | Academy Converter | Good | 1.07 KM |
| Chadsmoor Cofe (Vc) Junior School | Voluntary Controlled School | Good | 1.16 KM |
| Sherbrook Primary School | Community Special School | Good | 1.20 KM |
| Staffordshire University Academy | Academy Sponsor Led | Requires improvement | 1.28 KM |
Images
Nearby Streets
| Name | Average Price | Average Sqft | Distance |
|---|---|---|---|
| Somerset Place | £ 0 | 0 | 0.00 KM |
| Cavan's Close | £ 0 | 0 | 0.00 KM |
| Fallowfield | £ 0 | 0 | 0.00 KM |
| Wordsworth Close | £ 180,000 | 0 | 0.00 KM |
| James Street | £ 175,000 | 0 | 0.00 KM |
Nearby Transport
| Name | NLC | TLC | Distance |
|---|---|---|---|
| Cannock | 1016 | CAO | 1.98 KM |
| Hednesford | 1148 | HNF | 2.70 KM |
| Landywood | 1017 | LAW | 5.27 KM |
| Bloxwich North | 1018 | BWN | 8.75 KM |
| Bloxwich | 1141 | BLX | 9.63 KM |
Nearby Listings
| Address | Price | Type | Score | Distance |
|---|---|---|---|---|
| Edward Street, Cannock | £ 270,000 | BUY | 6 / 10 | 0.00 KM |
| Edward Street, Cannock | £ 280,000 | BUY | 7 / 10 | 0.01 KM |
| Edward Street, Cannock | £ 299,950 | BUY | Unknown | 0.01 KM |
| Edward Street, Cannock | £ 139,950 | BUY | 7 / 10 | 0.01 KM |
| Edward Street, Cannock | £ 120,000 | BUY | 6 / 10 | 0.01 KM |
Nearby Properties
| Address | Price | Distance |
|---|---|---|
| 96 Edward Street | £ 150,000 | 0.01 KM |
| 66 Edward Street | £ 175,000 | 0.01 KM |
| 116 Edward Street | £ 100,000 | 0.01 KM |
| 58 Edward Street | £ 127,500 | 0.01 KM |
| 62 Edward Street | £ 38,000 | 0.01 KM |