Clifford Drive, Menston, Ilkley, West Yorkshire, LS29
By Dale Eddison
£ 165,000
Reviews
3 out of 5 stars
Dale Eddison says ..
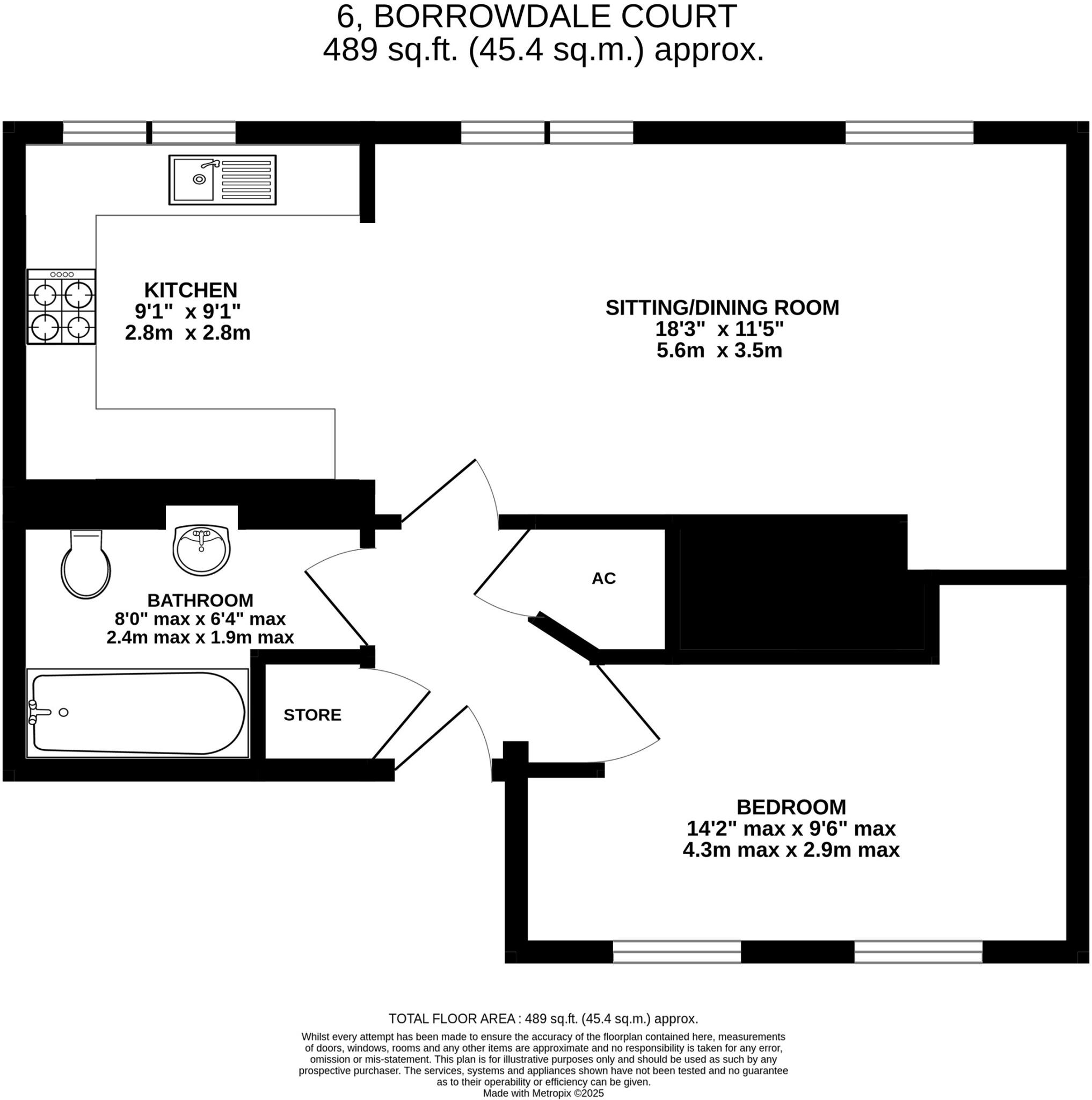
Beautifully presented one-bed first-floor apartment in a character conversion within the sought-after High Royds Development. Modern, stylish, and offered with no onward chain, ideal for first-time buyers or investors.
Property Oracle says ..
This is a one-bedroom flat in Menston, a suburb of Leeds. The property appears to be in good, modern condition, with a recently updated kitchen and bathroom. It benefits from being in a convenient location, close to schools and transport links. The lack of private land is a drawback, but the price seems reasonable for the size and location.
Therefore, we give this property 6 / 10. *Disclaimer: This is our option and does constitute a recommendation or financial advice. Do your own research. *
- Price
- 7
- Condition
- 8
- Location
- 7
- Land
- 3
- Bedrooms
- 1
- Bathrooms
- 1
- Sqft (est)
- 478.22
The heatmap indicates the level of crime in the area. The color of the heatmap indicates the crime severity and recency.
Metrics Year-on-Year
- Average area value
- 287,211.00 £Decreased by 20.15 %
- Est sale value
- 206,591.04 £Increased by 34.58 %
- Average area rental value
- 1,133.00 £/moDecreased by 5.74 %
- Est letting value
- 478.22 £/moUnchanged by 0.00 %
- Est rental Yield
- 4.73 %Increased by 17.96 %
- Crime Rate
- 20.00 %Unchanged by 0.00 %
Agent Activity
Dale Eddison created the listing.
Nearby Schools
| Name | Type | Ofsted | Distance |
|---|---|---|---|
| St. Mary'S Menston, A Catholic Voluntary Academy | Academy Converter | Outstanding | 0.73 KM |
| Menston Primary School | Community School | Good | 1.16 KM |
| Tranmere Park Primary School | Foundation School | Outstanding | 1.58 KM |
| Green Meadows Academy | Academy Special Sponsor Led | 1.73 KM | |
| Hawksworth Church Of England Primary School | Voluntary Aided School | Good | 2.17 KM |
Images
Nearby Streets
| Name | Average Price | Average Sqft | Distance |
|---|---|---|---|
| Guiseley Drive | £ 495,000 | 0 | 0.00 KM |
| Arkendale Court | £ 235,392 | 0 | 0.00 KM |
| Menston Drive | £ 0 | 0 | 0.00 KM |
| Throstle View | £ 0 | 0 | 0.00 KM |
| Hillside View | £ 0 | 0 | 0.00 KM |
Nearby Transport
| Name | NLC | TLC | Distance |
|---|---|---|---|
| Menston | 8574 | MNN | 1.04 KM |
| Guiseley | 8567 | GSY | 2.26 KM |
| Burley-In-Wharfedale | 8565 | BUW | 3.50 KM |
| Baildon | 8552 | BLD | 4.24 KM |
| Apperley Bridge | 8562 | APY | 5.57 KM |
Nearby Listings
| Address | Price | Type | Score | Distance |
|---|---|---|---|---|
| Clifford Drive, Menston, Ilkley, West Yorkshire, LS29 | £ 165,000 | BUY | 6 / 10 | 0.00 KM |
| Borrowdale Court, Clifford Drive, Leeds, West Yorkshire, LS29 | £ 169,950 | BUY | 6 / 10 | 0.01 KM |
| Clifford Drive, Menston, Ilkley, West Yorkshire, LS29 | £ 97,500 | BUY | Unknown | 0.06 KM |
| Clifford Drive, Menston, Ilkley, West Yorkshire, LS29 | £ 135,000 | BUY | 6 / 10 | 0.07 KM |
| Burnstall Close, Menston, LS29 | £ 410,000 | BUY | Unknown | 0.07 KM |
Nearby Properties
| Address | Price | Distance |
|---|---|---|
| 9 Burnstall Close | £ 340,000 | 0.07 KM |
| 1 Burnstall Close | £ 320,000 | 0.07 KM |
| 43 High Royds Drive | £ 334,999 | 0.16 KM |
| 41 High Royds Drive | £ 265,000 | 0.16 KM |
| 1 High Royds Drive | £ 142,000 | 0.17 KM |