Gascoigne Halman says ..
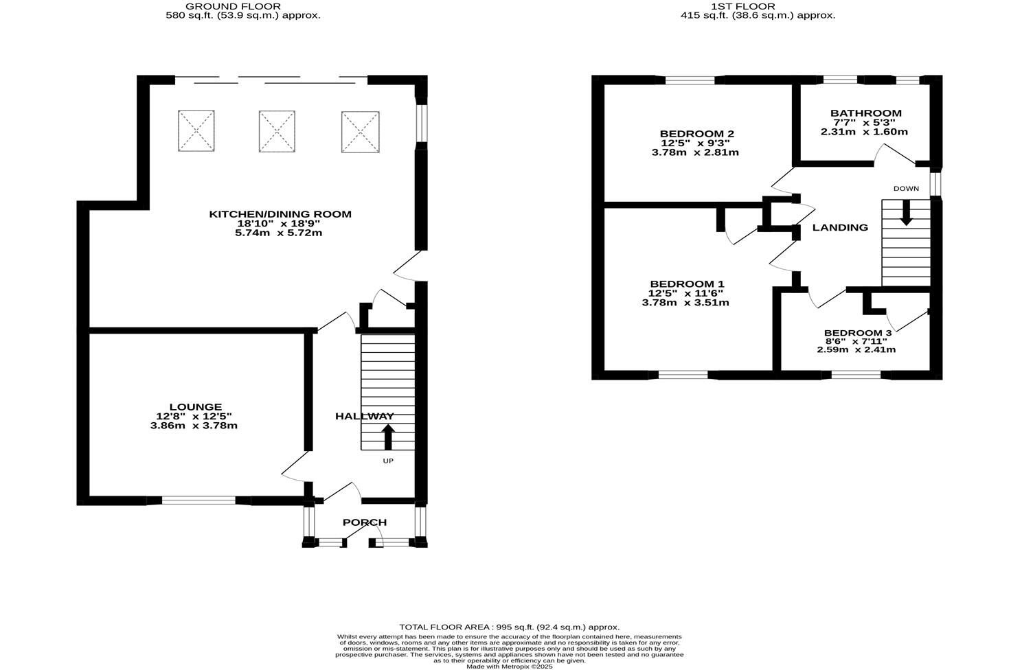
A SUBSTANTIALLY and THOUGHTFULLY EXTENDED THREE BEDROOM END TERRACE PROPERTY occupying a FAVOURABLE LOCATION within POYNTON. IMMACULATELY PRESENTED ACCOMMODATION OVER TWO FLOORS. ENTRANCE HALL, LOUNGE, STUNNING OPEN PLAN LIVING DINING KITCHEN, THREE BEDROOMS and CONTEMPORARY FAMILY BATHROOM. SET ...
Property Oracle says ..
This property is a 3-bedroom end of terrace house located in Poynton, Cheshire. The property benefits from a modern extension to the rear, which incorporates a kitchen/diner and sunroom. The extension is of high quality and has increased the living space significantly. The property also has a well maintained garden. The location is good, with easy access to local amenities and transport links. The property is well presented and in good condition. However, the list price is slightly above the average price per square foot for the area. This is likely due to the high quality of the extension and the desirable location. Overall, this is a well-presented property in a good location, although the price may be slightly higher than some similar properties in the area.
Therefore, we give this property 7 / 10. *Disclaimer: This is our option and does constitute a recommendation or financial advice. Do your own research. *
- Price
- 7
- Condition
- 8
- Location
- 8
- Land
- 7
- Bedrooms
- 3
- Bathrooms
- 1
- Sqft (est)
- 851.80
- Lot (est)
- 995.00
The heatmap indicates the level of crime in the area. The color of the heatmap indicates the crime severity and recency.
Metrics Year-on-Year
- Average area value
- 492,854.00 £Decreased by 20.03 %
- Est sale value
- 678,032.80 £Increased by 87.29 %
- Average area rental value
- 1,813.00 £/moIncreased by 3.30 %
- Est letting value
- 1,703.60 £/moIncreased by 100.00 %
- Est rental Yield
- 4.41 %Increased by 28.95 %
- Crime Rate
- 28.00 %Unchanged by 0.00 %
Agent Activity
Gascoigne Halman created the listing.
Nearby Schools
| Name | Type | Ofsted | Distance |
|---|---|---|---|
| St Paul'S Catholic Primary School, A Voluntary Academy | Academy Converter | 0.56 KM | |
| Poynton Children'S Centre | Children's Centre Linked Site | 0.97 KM | |
| Vernon Primary School | Community School | Outstanding | 0.98 KM |
| Lower Park School | Community School | Outstanding | 1.35 KM |
| Poynton High School | Academy Converter | 1.55 KM |
Images
Nearby Streets
| Name | Average Price | Average Sqft | Distance |
|---|---|---|---|
| Lawrence Place | £ 199,950 | 0 | 0.00 KM |
| Lostock Road | £ 260,000 | 0 | 0.00 KM |
| Abbey Court | £ 514,333 | 0 | 0.00 KM |
| Fountain Close | £ 0 | 0 | 0.00 KM |
| Adlington Court | £ 0 | 0 | 0.00 KM |
Nearby Transport
| Name | NLC | TLC | Distance |
|---|---|---|---|
| Poynton | 2874 | PYT | 1.45 KM |
| Adlington (Cheshire) | 2939 | ADC | 2.56 KM |
| Hazel Grove | 2768 | HAZ | 4.08 KM |
| Bramhall | 2944 | BML | 4.76 KM |
| Middlewood | 2971 | MDL | 5.09 KM |
Nearby Listings
| Address | Price | Type | Score | Distance |
|---|---|---|---|---|
| Vernon Road, Poynton | £ 385,000 | BUY | 7 / 10 | 0.00 KM |
| Lyme View Place, Poynton, SK12 | £ 615,000 | BUY | 7 / 10 | 0.23 KM |
| London Road South, Poynton, Cheshire, SK12 | £ 310,000 | BUY | 6 / 10 | 0.23 KM |
| Lyme View Place, Poynton | £ 425,000 | BUY | 7 / 10 | 0.24 KM |
| MIDWAY DRIVE, Poynton, SK12 1GZ | £ 525,000 | BUY | 7 / 10 | 0.30 KM |
Nearby Properties
| Address | Price | Distance |
|---|---|---|
| 63 Barnaby Road | £ 240,000 | 0.10 KM |
| 47 Barnaby Road | £ 147,000 | 0.10 KM |
| 64 Barnaby Road | £ 139,000 | 0.10 KM |
| 45 Barnaby Road | £ 155,000 | 0.10 KM |
| 74 Barnaby Road | £ 207,500 | 0.10 KM |