TH
Iveson Road, Leeds, LS16
By The Home Movement
£ 250,000
Reviews
4 out of 5 stars
The Home Movement says ..
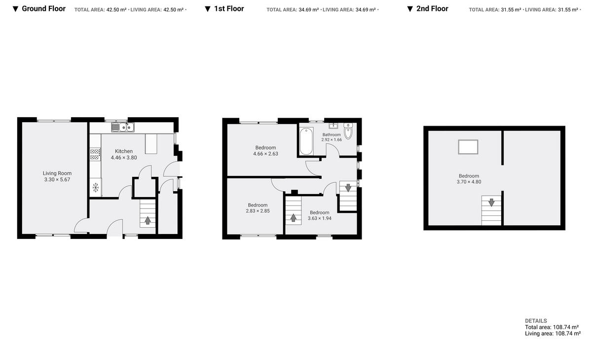
3 beds plus converted loft space, immaculately presented, impressive plot & parking
Property Oracle says ..
Therefore, we give this property 8 / 10. *Disclaimer: This is our option and does constitute a recommendation or financial advice. Do your own research. *
- Price
- 9
- Condition
- 8
- Location
- 8
- Land
- 7
- Bedrooms
- 3
- Bathrooms
- 1
- Sqft (est)
- 921.71
The heatmap indicates the level of crime in the area. The color of the heatmap indicates the crime severity and recency.
Metrics Year-on-Year
- Average area value
- 425,754.00 £Increased by 28.76 %
- Est sale value
- 447,951.06 £Increased by 65.87 %
- Average area rental value
- 1,157.00 £/moIncreased by 11.79 %
- Est letting value
- 921.71 £/mo
- Est rental Yield
- 3.26 %Decreased by 13.30 %
- Crime Rate
- 6.00 %Unchanged by 0.00 %
from 330,666.00 £
from 270,061.03 £
from 1,035.00 £/mo
from 0.00 £/mo
from 3.76 %
from 6.00 %
Agent Activity
The Home Movement created the listing.
Nearby Schools
| Name | Type | Ofsted | Distance |
|---|---|---|---|
| Lighthouse School Leeds | Free Schools Special | Good | 0.32 KM |
| Iveson Primary School | Foundation School | Good | 0.57 KM |
| Holy Name Catholic Voluntary Academy | Academy Sponsor Led | Good | 0.67 KM |
| Ireland Wood Primary School | Foundation School | Good | 0.99 KM |
| Ireland Wood Children'S Centre | Children's Centre | 1.11 KM |
Images
Nearby Streets
| Name | Average Price | Average Sqft | Distance |
|---|---|---|---|
| Oak Park Mount | £ 0 | 0 | 0.00 KM |
| Blackthorn Lane | £ 479,995 | 0 | 0.00 KM |
| Blackstone Lane | £ 0 | 0 | 0.00 KM |
| Clayton Wood Road | £ 0 | 0 | 0.00 KM |
| Grove Farm Crescent | £ 0 | 0 | 0.00 KM |
Nearby Transport
| Name | NLC | TLC | Distance |
|---|---|---|---|
| Horsforth | 8499 | HRS | 2.23 KM |
| Kirkstall Forge | 6544 | KLF | 2.76 KM |
| Headingley | 8498 | HDY | 3.51 KM |
| Burley Park | 8500 | BUY | 5.15 KM |
| Bramley (West Yorkshire) | 8496 | BLE | 5.36 KM |
Nearby Listings
| Address | Price | Type | Score | Distance |
|---|---|---|---|---|
| Iveson Road, Leeds, LS16 | £ 250,000 | BUY | 8 / 10 | 0.00 KM |
| Iveson Drive, Leeds, LS16 6NR | £ 210,000 | BUY | 7 / 10 | 0.10 KM |
| Iveson Drive, Leeds | £ 235,000 | BUY | 7 / 10 | 0.12 KM |
| 92 Iveson Drive, Leeds, West Yorkshire, LS16 6NL | £ 180,000 | BUY | Unknown | 0.13 KM |
| Iveson Crescent, Leeds | £ 195,000 | BUY | 6 / 10 | 0.13 KM |
Nearby Properties
| Address | Price | Distance |
|---|---|---|
| 169 Iveson Drive | £ 111,000 | 0.12 KM |
| 147 Iveson Drive | £ 206,000 | 0.12 KM |
| 155 Iveson Drive | £ 75,000 | 0.12 KM |
| 143 Iveson Drive | £ 142,250 | 0.12 KM |
| 145 Iveson Drive | £ 119,995 | 0.12 KM |