SE
Hillside Close, Knaphill, Woking, Surrey, GU21
By Seymours Estate Agents
£ 400,000
Reviews
3 out of 5 stars
Seymours Estate Agents says ..
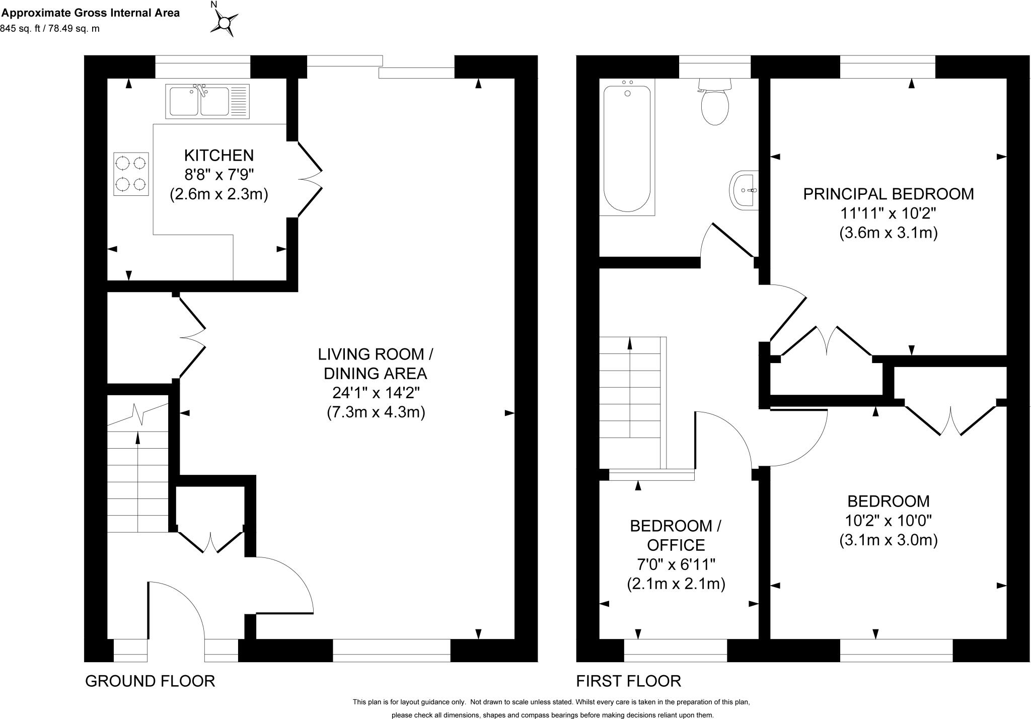
End of Terrace Home | Quiet Cul-de-Sac | Walking Distance to Knaphill Village Situated in a peaceful cul-de-sac, just a short walk from Knaphill Village and convenient bus links to Woking town centre and mainline station, this three-bedroom end-of-terrace home offers well-balanced livi...
Property Oracle says ..
Therefore, we give this property 6 / 10. *Disclaimer: This is our option and does constitute a recommendation or financial advice. Do your own research. *
- Price
- 6
- Condition
- 7
- Location
- 7
- Land
- 6
- Bedrooms
- 3
- Bathrooms
- 1
- Sqft (est)
- 669.95
The heatmap indicates the level of crime in the area. The color of the heatmap indicates the crime severity and recency.
Metrics Year-on-Year
- Average area value
- 586,400.00 £Increased by 18.76 %
- Est sale value
- 318,896.20 £Increased by 6.01 %
- Average area rental value
- 2,150.00 £/moIncreased by 9.47 %
- Est letting value
- 669.95 £/moUnchanged by 0.00 %
- Est rental Yield
- 4.40 %Decreased by 7.76 %
- Crime Rate
- 6.00 %Unchanged by 0.00 %
from 493,776.00 £
from 300,807.55 £
from 1,964.00 £/mo
from 669.95 £/mo
from 4.77 %
from 6.00 %
Agent Activity
Seymours Estate Agents created the listing.
Nearby Schools
| Name | Type | Ofsted | Distance |
|---|---|---|---|
| St John'S Primary School | Academy Sponsor Led | Requires improvement | 0.74 KM |
| St John'S Primary School And Sure Start Children'S Centre | Children's Centre | 0.74 KM | |
| St Hugh Of Lincoln Catholic Primary School | Academy Converter | Good | 0.86 KM |
| Knaphill School | Academy Converter | 1.15 KM | |
| The Oaktree School | Academy Converter | 1.15 KM |
Images
Nearby Streets
| Name | Average Price | Average Sqft | Distance |
|---|---|---|---|
| Beechwood Close | £ 0 | 0 | 0.00 KM |
| Rose Lodge | £ 0 | 0 | 0.00 KM |
| Elmgrove Close | £ 425,000 | 0 | 0.00 KM |
| Barton Close | £ 0 | 0 | 0.00 KM |
| Oakway | £ 475,000 | 0 | 0.00 KM |
Nearby Transport
| Name | NLC | TLC | Distance |
|---|---|---|---|
| Brookwood | 5687 | BKO | 3.03 KM |
| Worplesdon | 5686 | WPL | 4.71 KM |
| Woking | 5685 | WOK | 6.18 KM |
| Longcross | 5674 | LNG | 7.67 KM |
| Sunningdale | 5671 | SNG | 8.45 KM |
Nearby Listings
| Address | Price | Type | Score | Distance |
|---|---|---|---|---|
| Hillside Close, Knaphill, Woking, Surrey, GU21 | £ 400,000 | BUY | 6 / 10 | 0.00 KM |
| Hillside Close, Knaphill, Woking, Surrey, GU21 | £ 250,000 | BUY | 6 / 10 | 0.03 KM |
| Hillside Close, Woking, Surrey, GU21 | £ 375,000 | BUY | Unknown | 0.03 KM |
| Victoria Road, Knaphill, Woking, Surrey, GU21 | £ 595,000 | BUY | 7 / 10 | 0.07 KM |
| Hillside Close, Knaphill, Woking, Surrey, GU21 | £ 425,000 | BUY | 7 / 10 | 0.08 KM |
Nearby Properties
| Address | Price | Distance |
|---|---|---|
| 5a Hillside Close | £ 230,000 | 0.03 KM |
| 26 Hillside Close | £ 445,000 | 0.05 KM |
| 30 Hillside Close | £ 340,000 | 0.05 KM |
| 14 Hillside Close | £ 295,000 | 0.05 KM |
| 5 Hillside Close | £ 238,000 | 0.05 KM |