Ben Rose says ..
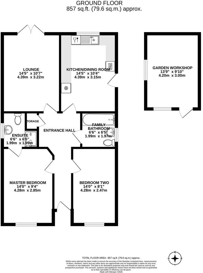
Ben Rose Estate Agents are pleased to present to market this beautifully presented, newly built two-bedroom detached bungalow, situated in a highly sought-after area of Leyland, Lancashire. This stunning home offers modern, single-level living ideal for families, downsizers, or those seeking a co...
Property Oracle says ..
This is a well-presented, modern two-bedroom detached bungalow in Leyland. The property benefits from a convenient location close to schools and transportation links. The interior is in excellent condition, with a modern kitchen and bathrooms. The property also features a good-sized garden with a shed and solar panels. The asking price appears to be reasonable for the area and the property’s condition. Overall, this property would likely appeal to those looking for a modern, low-maintenance home in a convenient location.
Therefore, we give this property 7 / 10. *Disclaimer: This is our option and does constitute a recommendation or financial advice. Do your own research. *
- Price
- 8
- Condition
- 9
- Location
- 7
- Land
- 7
- Bedrooms
- 2
- Bathrooms
- 2
- Sqft (est)
- 84.10
The heatmap indicates the level of crime in the area. The color of the heatmap indicates the crime severity and recency.
Metrics Year-on-Year
- Average area value
- 472,750.00 £Decreased by 21.88 %
- Est sale value
- 64,672.90 £Increased by 27.74 %
- Average area rental value
- 1,418.00 £/moDecreased by 35.04 %
- Est letting value
- 168.20 £/moUnchanged by 0.00 %
- Est rental Yield
- 3.60 %Decreased by 16.86 %
- Crime Rate
- 2.00 %Unchanged by 0.00 %
Agent Activity
Ben Rose created the listing.
Nearby Schools
| Name | Type | Ofsted | Distance |
|---|---|---|---|
| Seven Stars Primary School | Community School | Good | 0.79 KM |
| Wade Hall Children'S Centre | Children's Centre | 0.82 KM | |
| St Anne'S Catholic Primary School | Voluntary Aided School | Requires improvement | 0.90 KM |
| St Mary'S Catholic High School | Voluntary Aided School | Good | 0.90 KM |
| Academy@Worden | Academy Converter | Good | 1.52 KM |
Images
Nearby Streets
| Name | Average Price | Average Sqft | Distance |
|---|---|---|---|
| Birdsfoot Close | £ 0 | 0 | 0.00 KM |
| Marigold Court | £ 315,000 | 0 | 0.00 KM |
| Honeysuckle Close | £ 0 | 0 | 0.00 KM |
| Kestrel Close | £ 399,995 | 0 | 0.00 KM |
| Bracken Crescent | £ 0 | 0 | 0.00 KM |
Nearby Transport
| Name | NLC | TLC | Distance |
|---|---|---|---|
| Leyland | 2710 | LEY | 3.85 KM |
| Euxton Balshaw Lane | 2080 | EBA | 5.40 KM |
| Lostock Hall | 2689 | LOH | 5.84 KM |
| Buckshaw Parkway | 7501 | BSV | 6.22 KM |
| Croston | 2313 | CSO | 6.91 KM |
Nearby Listings
| Address | Price | Type | Score | Distance |
|---|---|---|---|---|
| Brickfield Place, Leyland | £ 270,000 | BUY | 7 / 10 | 0.00 KM |
| Brickfield Place, Leyland, PR25 1FA | £ 285,000 | BUY | 8 / 10 | 0.06 KM |
| Foxtail Close, Leyland, PR25 1FB | £ 365,000 | BUY | 8 / 10 | 0.08 KM |
| 534 Leyland Lane, Leyland PR25 1LA | £ 525,000 | BUY | 7 / 10 | 0.12 KM |
| Brickfield Place, Leyland | £ 350,000 | BUY | 7 / 10 | 0.12 KM |
Nearby Properties
| Address | Price | Distance |
|---|---|---|
| 535 Leyland Lane | £ 315,000 | 0.13 KM |
| 526 Leyland Lane | £ 265,000 | 0.13 KM |
| 536 Leyland Lane | £ 272,250 | 0.13 KM |
| 474 Leyland Lane | £ 455,000 | 0.13 KM |
| 522 Leyland Lane | £ 128,500 | 0.13 KM |