Delph Close, Blackburn, BB1
By Stones Young Estate and Letting Agents
£ 90,000
Reviews
2 out of 5 stars
Stones Young Estate and Letting Agents says ..
THREE BEDROOM TERRACED PROPERTY WITH HUGE POTENTIAL IN INTACK. Set in this desirable location, close to excellent schools and amenities, this property presents a wonderful opportunity for anyone looking to get on the property ladder and investors alike! Early viewing is essential!
Property Oracle says ..
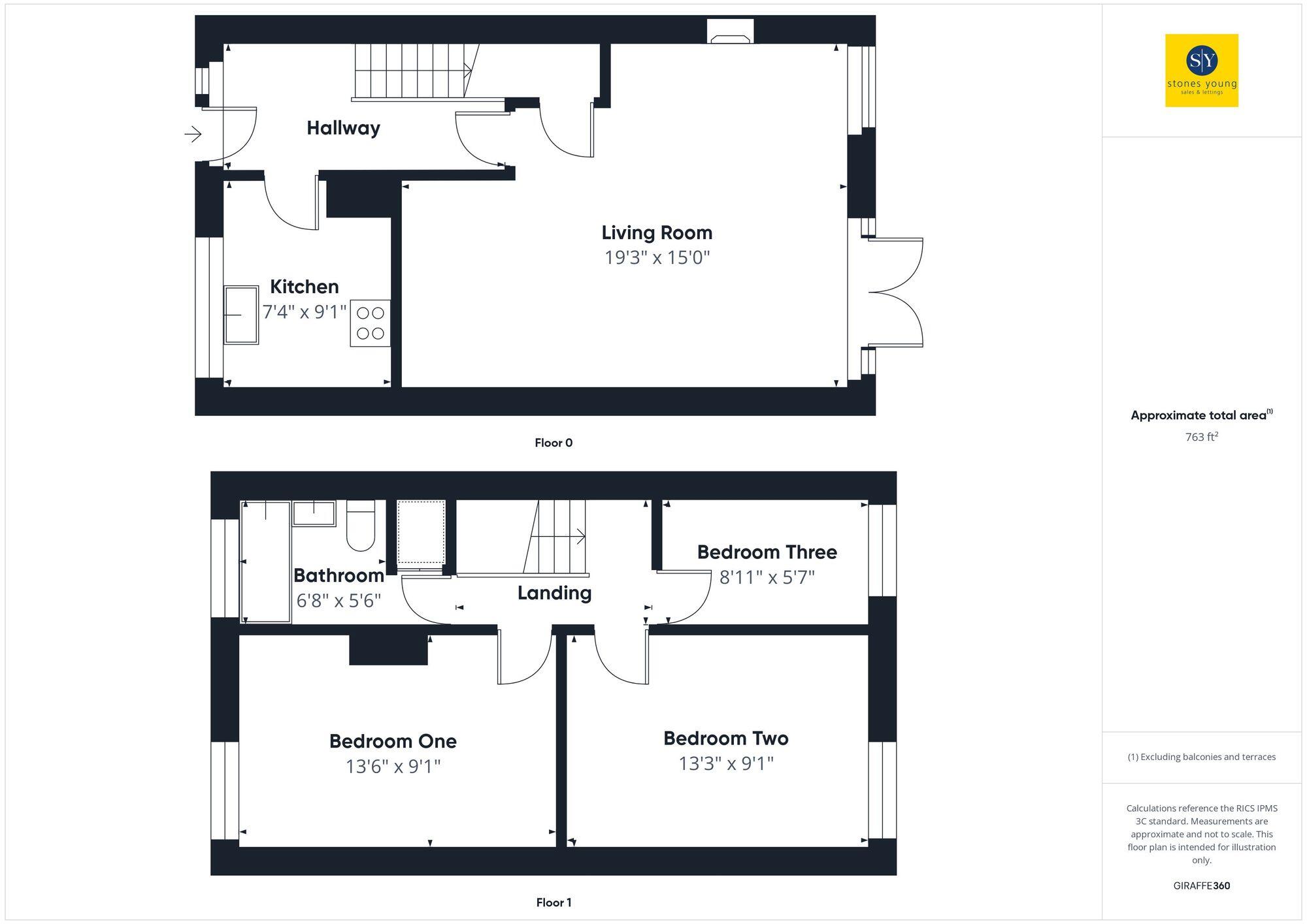
This is a three-bedroom terraced property located in Blackburn. The property requires extensive renovation throughout, including the kitchen, bathroom, and living areas. It features both front and rear gardens, with a decked area in the back. The property is situated within a reasonable distance of local schools and amenities. The asking price reflects the condition of the property and the need for significant investment to bring it up to modern standards.
Therefore, we give this property 5 / 10. *Disclaimer: This is our option and does constitute a recommendation or financial advice. Do your own research. *
- Price
- 7
- Condition
- 3
- Location
- 6
- Land
- 7
- Bedrooms
- 3
- Bathrooms
- 1
The heatmap indicates the level of crime in the area. The color of the heatmap indicates the crime severity and recency.
Metrics Year-on-Year
- Crime Rate
- 14.00 %Unchanged by 0.00 %
Agent Activity
Stones Young Estate and Letting Agents created the listing.
Nearby Schools
| Name | Type | Ofsted | Distance |
|---|---|---|---|
| Accrington Road Children'S Centre | Children's Centre Linked Site | 0.15 KM | |
| St Antony'S Rc Primary School | Voluntary Aided School | Good | 0.50 KM |
| Shadsworth Infant School | Community School | Good | 0.56 KM |
| Our Lady And St John Catholic College | Voluntary Aided School | Requires improvement | 0.74 KM |
| Intack Primary School | Community School | Good | 0.83 KM |
Images
Nearby Streets
| Name | Average Price | Average Sqft | Distance |
|---|---|---|---|
| Moorside Avenue | £ 89,950 | 0 | 0.00 KM |
| Hereford Road | £ 0 | 0 | 0.00 KM |
| Bank Lane | £ 240,000 | 0 | 0.00 KM |
| Surrey Road | £ 0 | 0 | 0.00 KM |
| Patterdale Avenue | £ 0 | 0 | 0.00 KM |
Nearby Transport
| Name | NLC | TLC | Distance |
|---|---|---|---|
| Blackburn | 2737 | BBN | 3.27 KM |
| Rishton | 2580 | RIS | 3.79 KM |
| Ramsgreave And Wilpshire | 2734 | RGW | 4.88 KM |
| Darwen | 2576 | DWN | 5.63 KM |
| Mill Hill (Lancs) | 2750 | MLH | 5.89 KM |
Nearby Listings
| Address | Price | Type | Score | Distance |
|---|---|---|---|---|
| Delph Close, Blackburn, BB1 | £ 90,000 | BUY | 5 / 10 | 0.00 KM |
| Delph Close, Blackburn | £ 114,950 | BUY | Unknown | 0.01 KM |
| Delph Approach, Blackburn, BB1 | £ 150,000 | BUY | 6 / 10 | 0.08 KM |
| Accrington Road, Blackburn, BB1 | £ 149,950 | BUY | Unknown | 0.11 KM |
| Fecitt Brow, Blackburn, Lancashire, BB1 2AZ | £ 119,950 | BUY | 6 / 10 | 0.11 KM |
Nearby Properties
| Address | Price | Distance |
|---|---|---|
| 17 Eagle Close | £ 46,000 | 0.09 KM |
| 204 Accrington Road | £ 64,000 | 0.11 KM |
| 182 Accrington Road | £ 54,000 | 0.11 KM |
| 174 Accrington Road | £ 68,000 | 0.11 KM |
| 190 Accrington Road | £ 53,000 | 0.11 KM |