Willow Way, Farnham, Surrey, GU9 0NT
By Avocado Property
£ 500,000
Reviews
3 out of 5 stars
Avocado Property says ..
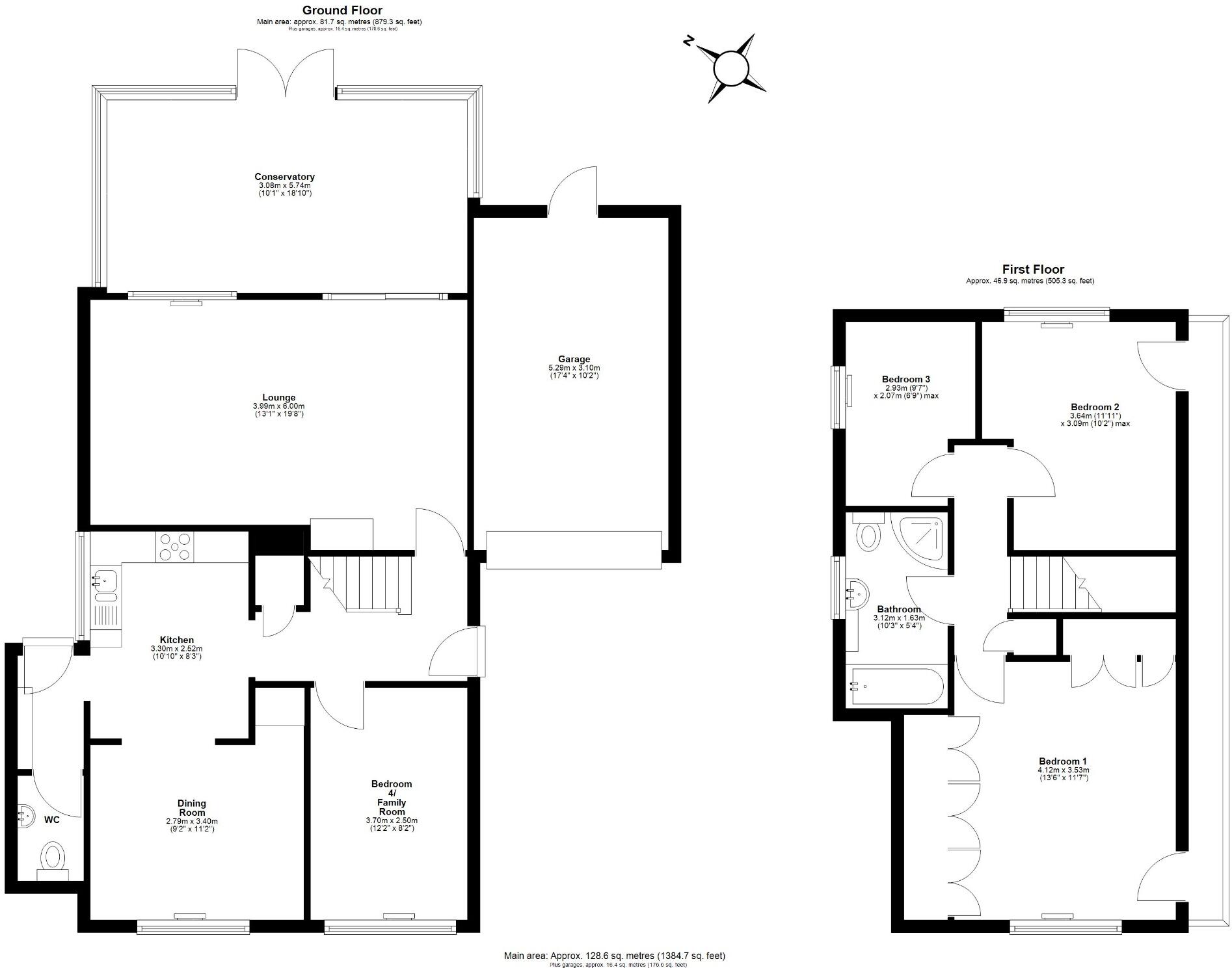
This three bedroom detached home will be sold with no onward chain, and has fantastic potential too. There are currently three bedrooms and a bathroom upstairs, with a kitchen, WC and four reception areas downstairs. Outside there is a private rear garden, garage and a driveway too.
Property Oracle says ..
Therefore, we give this property 6 / 10. *Disclaimer: This is our option and does constitute a recommendation or financial advice. Do your own research. *
- Price
- 6
- Condition
- 5
- Location
- 7
- Land
- 7
- Bedrooms
- 3
- Bathrooms
- 1
- Sqft (est)
- 1,313.61
The heatmap indicates the level of crime in the area. The color of the heatmap indicates the crime severity and recency.
Metrics Year-on-Year
- Average area value
- 272,143.00 £Decreased by 0.84 %
- Est sale value
- 321,834.45 £Increased by 2.08 %
- Average area rental value
- 950.00 £/moDecreased by 12.68 %
- Est letting value
- 0.00 £/mo
- Est rental Yield
- 4.19 %Decreased by 11.97 %
- Crime Rate
- 6.00 %Unchanged by 0.00 %
from 274,456.00 £
from 315,266.40 £
from 1,088.00 £/mo
from 0.00 £/mo
from 4.76 %
from 6.00 %
Agent Activity
Avocado Property created the listing.
Nearby Schools
| Name | Type | Ofsted | Distance |
|---|---|---|---|
| Farnham Heath End | Academy Converter | Good | 0.67 KM |
| William Cobbett Primary School | Community School | Good | 1.02 KM |
| All Hallows Catholic School | Voluntary Aided School | Outstanding | 1.47 KM |
| Hale Sure Start Children'S Centre | Children's Centre | 1.59 KM | |
| Hale Nursery & Primary Academy | Academy Converter | 1.68 KM |
Images
Nearby Streets
| Name | Average Price | Average Sqft | Distance |
|---|---|---|---|
| Hale Road | £ 0 | 0 | 0.00 KM |
| Elm Road | £ 0 | 0 | 0.00 KM |
| Friars Court | £ 450,000 | 0 | 0.00 KM |
| Hale Trail Greenway | £ 0 | 0 | 0.00 KM |
| Wood Road | £ 0 | 0 | 0.00 KM |
Nearby Transport
| Name | NLC | TLC | Distance |
|---|---|---|---|
| Farnham | 5545 | FNH | 2.20 KM |
| Aldershot | 5623 | AHT | 3.53 KM |
| North Camp | 5636 | NCM | 8.00 KM |
| Farnborough (Main) | 5521 | FNB | 8.11 KM |
| Fleet | 5522 | FLE | 8.15 KM |
Nearby Listings
| Address | Price | Type | Score | Distance |
|---|---|---|---|---|
| Willow Way, Farnham, Surrey, GU9 0NT | £ 500,000 | BUY | 6 / 10 | 0.00 KM |
| Willow Way, Farnham, Surrey | £ 575,000 | BUY | 7 / 10 | 0.07 KM |
| Upper Hale Road, Farnham, Surrey, GU9 | £ 575,000 | BUY | 7 / 10 | 0.07 KM |
| Willow Way, Farnham, Surrey, GU9 | £ 565,000 | BUY | 8 / 10 | 0.08 KM |
| Upper Hale Road, Farnham, Surrey, GU9 | £ 900,000 | BUY | 7 / 10 | 0.10 KM |
Nearby Properties
| Address | Price | Distance |
|---|---|---|
| 81 Willow Way | £ 310,000 | 0.04 KM |
| 9 Willow Way | £ 540,000 | 0.04 KM |
| 51 Willow Way | £ 145,000 | 0.04 KM |
| 57 Willow Way | £ 249,000 | 0.04 KM |
| 69 Willow Way | £ 290,000 | 0.04 KM |