Copplestone House, 9 Bedlands Lane, Budleigh Salterton, Devon
By Bradleys
£ 170,000
Reviews
3 out of 5 stars
Bradleys says ..
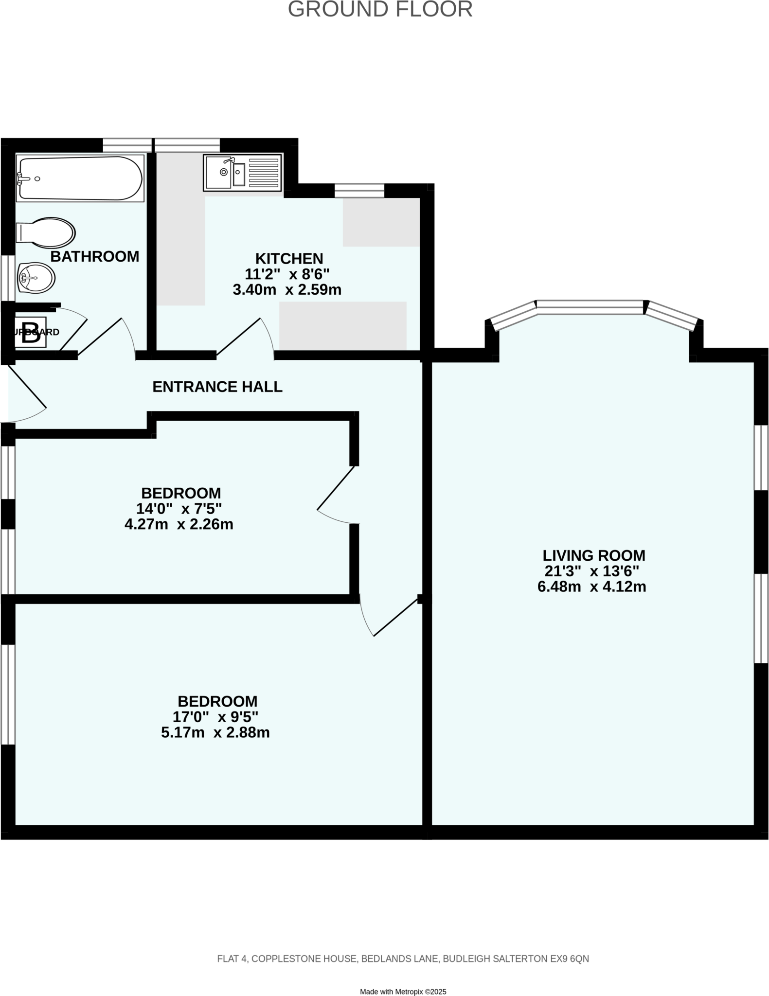
A TWO BEDROOM GROUND FLOOR FLAT A ground floor apartment located in a popular residential area of Budleigh Salterton.
Property Oracle says ..
Copplestone House is a two-bedroom apartment situated in Budleigh Salterton, Devon. The property benefits from a convenient location, with nearby schools such as St Peter’s Church of England Primary School (0.39km) and several others within a reasonable distance. The apartment is part of a larger building, and the exterior appears to be well-maintained brick construction. The garden is visible in the photos and looks well-established. The interior images show a property that is in need of some modernisation and updating. The kitchen and living areas appear dated and could benefit from refurbishment. The asking price of £170,000 should be considered in the context of the local market, where average prices are significantly higher. Nearby comparable properties range from £127,250 to £250,000 for apartments, suggesting that the asking price is within the range but may be at the higher end, depending on the size and specific features of the apartment. The lack of square footage information makes a precise comparison difficult. The property is in a good location and has a garden, but the condition of the interior requires consideration.
Therefore, we give this property 6 / 10. *Disclaimer: This is our option and does constitute a recommendation or financial advice. Do your own research. *
- Price
- 6
- Condition
- 6
- Location
- 8
- Land
- 7
- Bedrooms
- 2
- Bathrooms
- 1
The heatmap indicates the level of crime in the area. The color of the heatmap indicates the crime severity and recency.
Metrics Year-on-Year
- Average area value
- 604,931.00 £Decreased by 0.31 %
- Average area rental value
- 2,475.00 £/moIncreased by 98.64 %
- Est rental Yield
- 4.91 %Increased by 99.59 %
- Crime Rate
- 1.00 %Unchanged by 0.00 %
Agent Activity
Bradleys created the listing.
Nearby Schools
| Name | Type | Ofsted | Distance |
|---|---|---|---|
| St Peter'S Church Of England Primary School | Voluntary Aided School | Good | 0.39 KM |
| Drake'S Church Of England Primary School | Academy Converter | 2.50 KM | |
| Mill Water School | Foundation Special School | Good | 4.48 KM |
| Otterton Church Of England Primary School | Academy Converter | 4.53 KM | |
| Littleham Church Of England Primary School | Voluntary Controlled School | Requires improvement | 4.67 KM |
Images
Nearby Streets
| Name | Average Price | Average Sqft | Distance |
|---|---|---|---|
| Park Lane | £ 1,061,125 | 0 | 0.00 KM |
| Westfield Close | £ 1,250,000 | 0 | 0.00 KM |
| Ragg Lane | £ 0 | 0 | 0.00 KM |
| Chapel Hill | £ 975,000 | 0 | 0.00 KM |
| Steamer Steps | £ 0 | 0 | 0.00 KM |
Nearby Transport
| Name | NLC | TLC | Distance |
|---|---|---|---|
| Exmouth | 5756 | EXM | 8.82 KM |
Nearby Listings
| Address | Price | Type | Score | Distance |
|---|---|---|---|---|
| Copplestone House, 9 Bedlands Lane, Budleigh Salterton, Devon | £ 170,000 | BUY | 6 / 10 | 0.00 KM |
| Shortwood Close, Budleigh Salterton, Devon | £ 475,000 | BUY | 6 / 10 | 0.12 KM |
| Bedlands Lane, Budleigh Salterton, EX9 | £ 160,000 | BUY | 6 / 10 | 0.12 KM |
| Shortwood Close, Budleigh Salterton, EX9 | £ 525,000 | BUY | 7 / 10 | 0.12 KM |
| Shortwood Close, Budleigh Salterton, EX9 | £ 445,000 | BUY | Unknown | 0.15 KM |
Nearby Properties
| Address | Price | Distance |
|---|---|---|
| 3 Higher Bedlands | £ 210,000 | 0.07 KM |
| 1 Higher Bedlands | £ 290,000 | 0.07 KM |
| 2 Higher Bedlands | £ 246,000 | 0.07 KM |
| 34 Bedlands Lane | £ 417,500 | 0.08 KM |
| 36 Bedlands Lane | £ 247,500 | 0.08 KM |