MA
Burgh Island Causeway, Bigbury on Sea
By Marchand Petit
£ 765,000
Reviews
3 out of 5 stars
Marchand Petit says ..
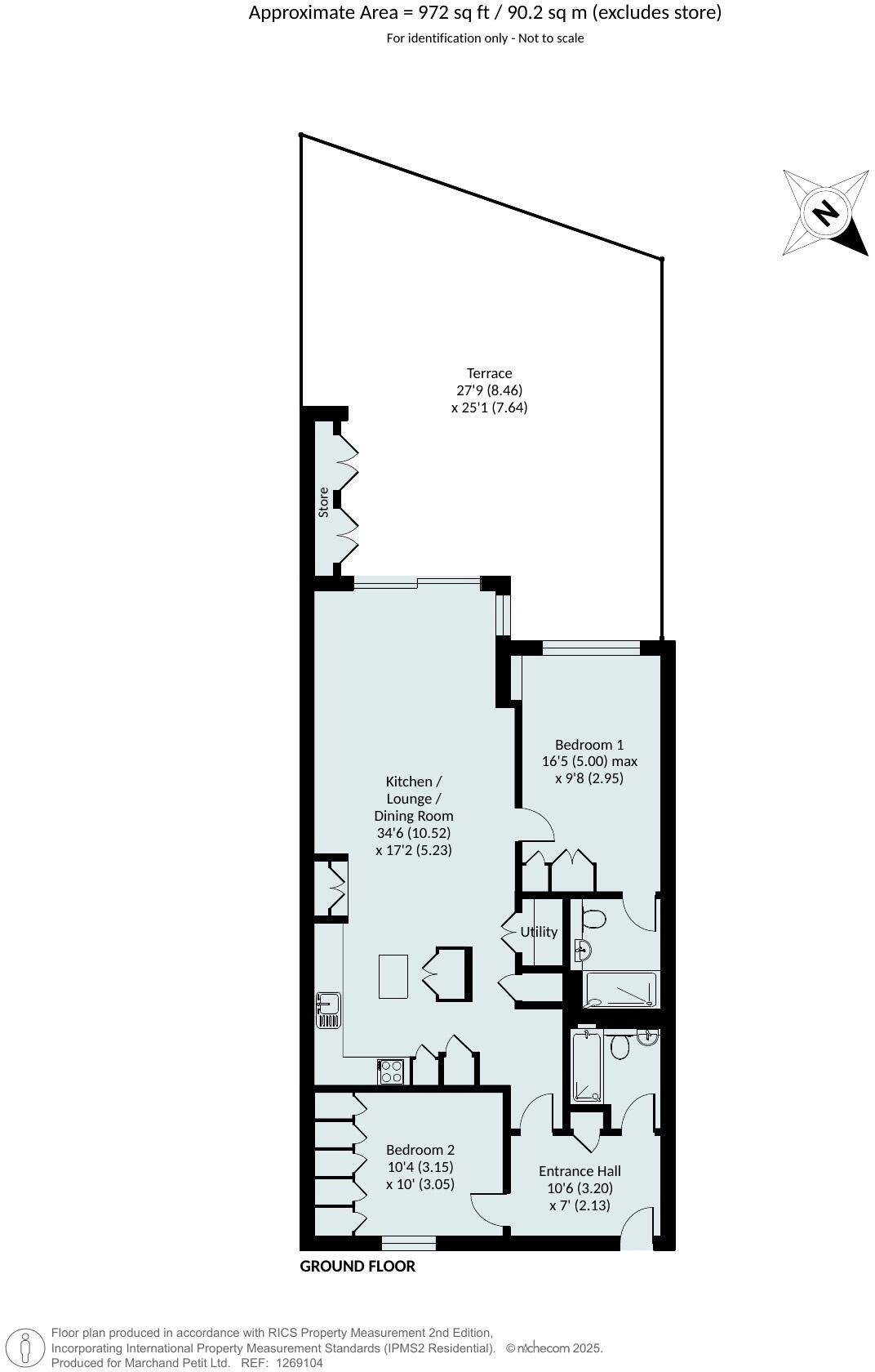
This exceptional apartment is regarded as one of the more exclusive within the development, with a unique layout, more spacious accommodation and a generous sun terrace.
Property Oracle says ..
Therefore, we give this property 7 / 10. *Disclaimer: This is our option and does constitute a recommendation or financial advice. Do your own research. *
- Price
- 6
- Condition
- 8
- Location
- 9
- Land
- 7
- Bedrooms
- 2
- Bathrooms
- 2
- Sqft (est)
- 1,626.00
The heatmap indicates the level of crime in the area. The color of the heatmap indicates the crime severity and recency.
Metrics Year-on-Year
- Average area value
- 216,225.00 £Decreased by 4.32 %
- Est sale value
- 426,012.00 £Increased by 37.89 %
- Average area rental value
- 863.00 £/moDecreased by 37.87 %
- Est letting value
- 1,626.00 £/moUnchanged by 0.00 %
- Est rental Yield
- 4.79 %Decreased by 35.09 %
- Crime Rate
- 56.00 %Unchanged by 0.00 %
from 225,977.00 £
from 308,940.00 £
from 1,389.00 £/mo
from 1,626.00 £/mo
from 7.38 %
from 56.00 %
Agent Activity
Marchand Petit created the listing.
Nearby Schools
| Name | Type | Ofsted | Distance |
|---|---|---|---|
| Thurlestone All Saints Church Of England Academy | Academy Converter | Good | 4.46 KM |
| Modbury Primary School | Community School | Good | 7.54 KM |
| Aveton Gifford Cofe Primary School | Academy Converter | Good | 7.54 KM |
| Holbeton Primary School | Academy Converter | 8.17 KM | |
| Ermington Primary School | Academy Converter | 9.03 KM |
Images
Nearby Streets
| Name | Average Price | Average Sqft | Distance |
|---|---|---|---|
| Beachdown | £ 0 | 0 | 0.00 KM |
| Fosse Way | £ 550,000 | 0 | 0.00 KM |
| Sunnybank | £ 0 | 0 | 0.00 KM |
| Watling St. | £ 800,000 | 0 | 0.00 KM |
| Crossways | £ 0 | 0 | 0.00 KM |
Nearby Listings
| Address | Price | Type | Score | Distance |
|---|---|---|---|---|
| Burgh Island Causeway, Bigbury-on-Sea | £ 680,000 | BUY | Unknown | 0.00 KM |
| Burgh Island Causeway, Bigbury on Sea | £ 765,000 | BUY | 7 / 10 | 0.00 KM |
| Burgh Island Causeway, Bigbury-On-Sea | £ 710,000 | BUY | 5 / 10 | 0.00 KM |
| Burgh Island Causeway, Bigbury-on-Sea | £ 710,000 | BUY | 5 / 10 | 0.00 KM |
| Marine Drive, Bigbury on Sea | £ 700,000 | BUY | Unknown | 0.11 KM |
Nearby Properties
| Address | Price | Distance |
|---|---|---|
| Southway | £ 1,719,500 | 0.11 KM |
| Lewin | £ 565,000 | 0.11 KM |
| The Cedars | £ 445,000 | 0.11 KM |
| Cliff House | £ 650,000 | 0.11 KM |
| Seafront | £ 1,150,000 | 0.11 KM |