Ongar Road, Abridge, Romford, Essex
By V&C ESTATES
£ 750,000
Reviews
3 out of 5 stars
V&C ESTATES says ..
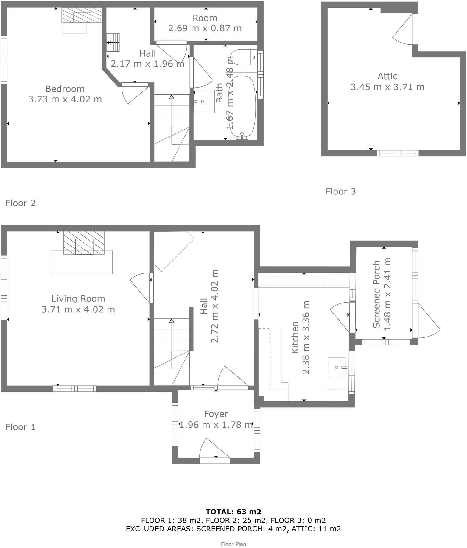
A charming and recently refurbished 2-bedroom Cottage on Ongar Road, Abridge Spread over three floors, this property offer s a blend of modern living and timeless character, featuring exposed wooden beams, brickwork, and plenty of natural light.
Property Oracle says ..
This property located on Ongar Road, Abridge, presents a mixed picture. The images reveal a partially renovated two-bedroom house with a newly fitted kitchen and bathroom. The exposed beams and brickwork suggest character, but some areas, such as the flooring and some wall finishes, appear unfinished. The property benefits from a garden, which offers outdoor space. The location in Abridge, Essex, is generally considered desirable, offering a balance between rural living and proximity to amenities. However, the considerable distance to public transport may be a drawback for some buyers. The list price of £750,000 requires further investigation to determine its accuracy against comparable properties in the area, given the lack of precise square footage data in the provided information. The property would likely appeal to buyers looking for a project, willing to complete the renovation to their own specifications, and who value the peaceful village setting of Abridge.
Therefore, we give this property 6 / 10. *Disclaimer: This is our option and does constitute a recommendation or financial advice. Do your own research. *
- Price
- 7
- Condition
- 6
- Location
- 7
- Land
- 5
- Bedrooms
- 2
- Bathrooms
- 1
- Sqft (est)
- 678.13
The heatmap indicates the level of crime in the area. The color of the heatmap indicates the crime severity and recency.
Metrics Year-on-Year
- Average area value
- 626,772.00 £Decreased by 1.47 %
- Est sale value
- 448,922.06 £Increased by 71.50 %
- Average area rental value
- 2,367.00 £/moDecreased by 68.86 %
- Est letting value
- 1,356.26 £/moDecreased by 50.00 %
- Est rental Yield
- 4.53 %Decreased by 68.41 %
- Crime Rate
- 14.00 %Unchanged by 0.00 %
Agent Activity
V&C ESTATES created the listing.
Nearby Schools
| Name | Type | Ofsted | Distance |
|---|---|---|---|
| Lambourne Primary School | Academy Converter | 0.94 KM | |
| Coopersale Hall School | Other Independent School | 3.31 KM | |
| Chigwell Row Infant School | Academy Converter | 3.52 KM | |
| Theydon Bois Primary School | Academy Converter | 3.61 KM | |
| Debden Park High School | Academy Converter | Outstanding | 3.81 KM |
Images
Nearby Streets
| Name | Average Price | Average Sqft | Distance |
|---|---|---|---|
| White Hall | £ 0 | 0 | 0.00 KM |
| Silver Street | £ 824,995 | 0 | 0.00 KM |
| M11 | £ 0 | 0 | 0.00 KM |
Nearby Transport
| Name | NLC | TLC | Distance |
|---|---|---|---|
| Chadwell Heath | 6874 | CTH | 9.57 KM |
| Goodmayes | 6878 | GMY | 9.95 KM |
Nearby Listings
| Address | Price | Type | Score | Distance |
|---|---|---|---|---|
| Ongar Road, Abridge, RM4 | £ 1,595,000 | BUY | 7 / 10 | 0.04 KM |
| Ongar Road, Abridge, Romford, RM4 | £ 1,500,000 | BUY | 7 / 10 | 0.04 KM |
| Ongar Road, Abridge, Romford, RM4 | £ 1,500,000 | BUY | 7 / 10 | 0.04 KM |
| Ongar Road, Abridge, Essex, RM4 | £ 1,500,000 | BUY | 7 / 10 | 0.04 KM |
| Ongar Road, Abridge, Romford, Essex | £ 850,000 | BUY | 6 / 10 | 0.08 KM |
Nearby Properties
| Address | Price | Distance |
|---|---|---|
| 38 New Farm Drive | £ 275,000 | 0.25 KM |
| 6 New Farm Drive | £ 578,000 | 0.25 KM |
| 33 New Farm Drive | £ 235,000 | 0.25 KM |
| New Farm Cottage | £ 650,000 | 0.25 KM |
| 11 New Farm Drive | £ 652,000 | 0.25 KM |