Highclere Gardens, Knaphill, Woking, Surrey, GU21
By Seymours Estate Agents
£ 425,000
Reviews
3 out of 5 stars
Seymours Estate Agents says ..
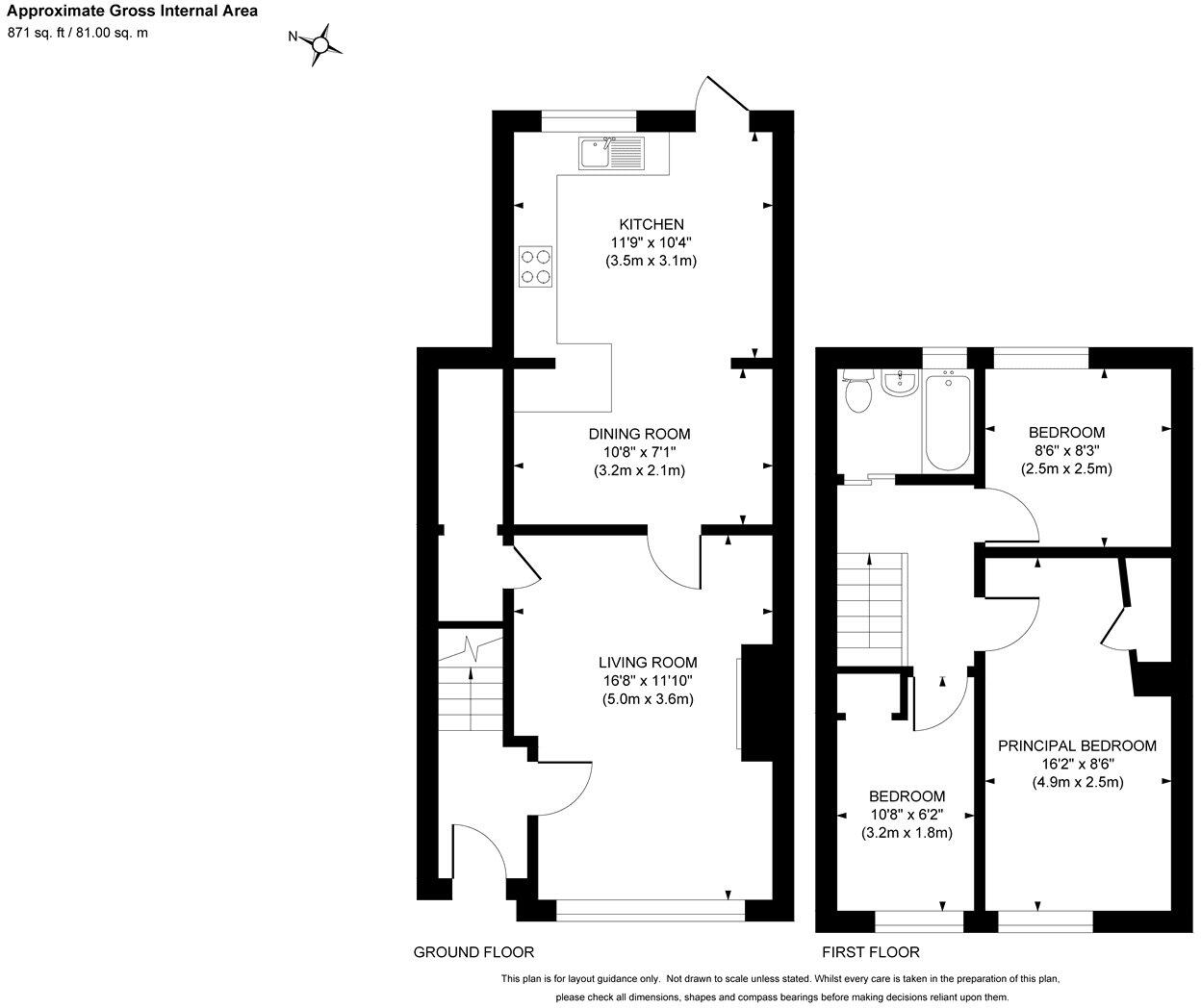
An extended terraced home, ideally located just a short walk from Knaphill Village, which offers a wide range of amenities and convenient bus links providing easy access to Woking Town Centre. The property has been well maintained and offers generous accommodation throughout. Upstairs are th...
Property Oracle says ..
This is a three-bedroom terraced house located in Knaphill, Woking. The property offers a garden, off-street parking, and is situated within a reasonable distance of local schools and transportation links. While the property is in a habitable condition, some areas would benefit from modernization, particularly the kitchen and bathroom. The house is listed for £425,000, which is slightly above the average price per square foot for the area, but still represents a reasonable value considering its location and features.
Therefore, we give this property 6 / 10. *Disclaimer: This is our option and does constitute a recommendation or financial advice. Do your own research. *
- Price
- 7
- Condition
- 6
- Location
- 7
- Land
- 7
- Bedrooms
- 3
- Bathrooms
- 1
- Sqft (est)
- 871.00
The heatmap indicates the level of crime in the area. The color of the heatmap indicates the crime severity and recency.
Metrics Year-on-Year
- Average area value
- 586,400.00 £Increased by 18.76 %
- Est sale value
- 414,596.00 £Increased by 6.01 %
- Average area rental value
- 2,150.00 £/moIncreased by 9.47 %
- Est letting value
- 871.00 £/moUnchanged by 0.00 %
- Est rental Yield
- 4.40 %Decreased by 7.76 %
- Crime Rate
- 5.00 %Unchanged by 0.00 %
Agent Activity
Seymours Estate Agents created the listing.
Nearby Schools
| Name | Type | Ofsted | Distance |
|---|---|---|---|
| Knaphill School | Academy Converter | 0.88 KM | |
| St John'S Primary School And Sure Start Children'S Centre | Children's Centre | 1.11 KM | |
| St John'S Primary School | Academy Sponsor Led | Requires improvement | 1.11 KM |
| St Hugh Of Lincoln Catholic Primary School | Academy Converter | Good | 1.15 KM |
| The Knaphill Lower School | Academy Converter | 1.16 KM |
Images
Nearby Streets
| Name | Average Price | Average Sqft | Distance |
|---|---|---|---|
| Rose Lodge | £ 0 | 0 | 0.00 KM |
| Barton Close | £ 0 | 0 | 0.00 KM |
| Beechwood Close | £ 0 | 0 | 0.00 KM |
| Elmgrove Close | £ 425,000 | 0 | 0.00 KM |
| Trinity Road | £ 660,000 | 0 | 0.00 KM |
Nearby Transport
| Name | NLC | TLC | Distance |
|---|---|---|---|
| Brookwood | 5687 | BKO | 2.87 KM |
| Worplesdon | 5686 | WPL | 5.06 KM |
| Woking | 5685 | WOK | 6.51 KM |
| Longcross | 5674 | LNG | 7.60 KM |
| Sunningdale | 5671 | SNG | 8.21 KM |
Nearby Listings
| Address | Price | Type | Score | Distance |
|---|---|---|---|---|
| Highclere Gardens, Knaphill, Woking, Surrey, GU21 | £ 425,000 | BUY | 6 / 10 | 0.00 KM |
| Highclere Gardens, Knaphill, Woking, Surrey, GU21 | £ 425,000 | BUY | 7 / 10 | 0.00 KM |
| Highclere Gardens, Knaphill, Woking, Surrey, GU21 | £ 425,000 | BUY | 6 / 10 | 0.04 KM |
| Highclere Gardens, Knaphill, Woking, Surrey, GU21 | £ 400,000 | BUY | 7 / 10 | 0.07 KM |
| Knaphill. | £ 375,000 | BUY | 6 / 10 | 0.10 KM |
Nearby Properties
| Address | Price | Distance |
|---|---|---|
| 43 Highclere Gardens | £ 196,950 | 0.01 KM |
| 45 Highclere Gardens | £ 244,000 | 0.01 KM |
| 51 Highclere Gardens | £ 315,000 | 0.01 KM |
| 42 Highclere Gardens | £ 360,000 | 0.01 KM |
| 31 Highclere Gardens | £ 330,000 | 0.01 KM |