Winkworth says ..
Located on one of N17’s most sought-after streets, this four-bedroom house offers fantastic potential to be transformed into a wonderful family home. Chain Free.
Property Oracle says ..
Therefore, we give this property 4 / 10. *Disclaimer: This is our option and does constitute a recommendation or financial advice. Do your own research. *
- Price
- 3
- Condition
- 3
- Location
- 7
- Land
- 3
- Bedrooms
- 4
- Bathrooms
- 2
- Sqft (est)
- 794.31
The heatmap indicates the level of crime in the area. The color of the heatmap indicates the crime severity and recency.
Metrics Year-on-Year
- Average area value
- 517,500.00 £Decreased by 2.69 %
- Est sale value
- 374,120.01 £Decreased by 37.53 %
- Average area rental value
- 2,820.00 £/moIncreased by 42.71 %
- Est letting value
- 1,588.62 £/moUnchanged by 0.00 %
- Est rental Yield
- 6.54 %Increased by 46.64 %
- Crime Rate
- 2.00 %Unchanged by 0.00 %
from 531,825.00 £
from 598,909.74 £
from 1,976.00 £/mo
from 1,588.62 £/mo
from 4.46 %
from 2.00 %
Agent Activity
Winkworth created the listing.
Nearby Schools
| Name | Type | Ofsted | Distance |
|---|---|---|---|
| Harris Primary Academy Philip Lane | Academy Sponsor Led | Outstanding | 0.21 KM |
| Park View School | Community School | Good | 0.49 KM |
| The Brook Special Primary School | Community Special School | Requires improvement | 0.76 KM |
| St Ann'S Ce Primary School | Academy Converter | Requires improvement | 0.84 KM |
| Chestnuts Primary School | Foundation School | Good | 0.87 KM |
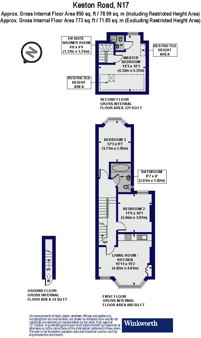
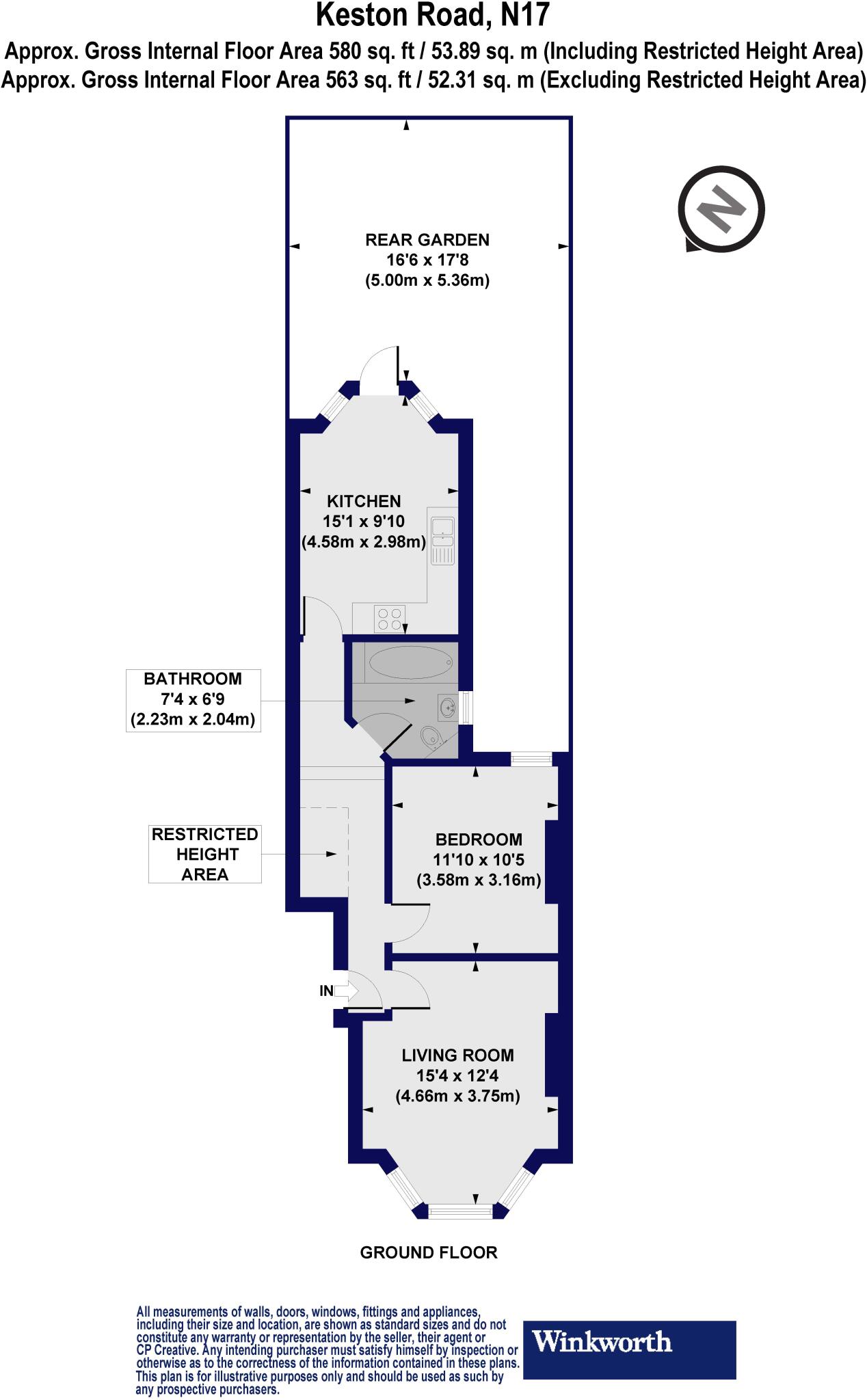
Images
Nearby Streets
| Name | Average Price | Average Sqft | Distance |
|---|---|---|---|
| Hastings Road | £ 0 | 0 | 0.00 KM |
| Alexandra Road | £ 596,650 | 0 | 0.00 KM |
| Freedom Road | £ 200,000 | 0 | 0.00 KM |
| Newsam Avenue | £ 0 | 0 | 0.00 KM |
| Fairweather Close | £ 0 | 0 | 0.00 KM |
Nearby Transport
| Name | NLC | TLC | Distance |
|---|---|---|---|
| Seven Sisters | 6931 | SVS | 1.48 KM |
| Harringay Green Lanes | 7401 | HRY | 1.85 KM |
| South Tottenham | 7404 | STO | 1.89 KM |
| Bruce Grove | 6958 | BCV | 1.93 KM |
| Stamford Hill | 6968 | SMH | 1.98 KM |
Nearby Listings
| Address | Price | Type | Score | Distance |
|---|---|---|---|---|
| Keston Road, London, N17 | £ 890,000 | BUY | 4 / 10 | 0.00 KM |
| Keston Road, London, N17 | £ 395,000 | BUY | 5 / 10 | 0.00 KM |
| Keston Road, London, N17 | £ 495,000 | BUY | 4 / 10 | 0.02 KM |
| Ripon Road, London, N17 | £ 800,000 | BUY | 6 / 10 | 0.07 KM |
| Keston Road, London, N17 | £ 985,000 | BUY | 7 / 10 | 0.09 KM |
Nearby Properties
| Address | Price | Distance |
|---|---|---|
| 26 Keston Road | £ 279,995 | 0.06 KM |
| 38 Keston Road | £ 675,000 | 0.06 KM |
| 10 Keston Road | £ 235,000 | 0.06 KM |
| 40 Keston Road | £ 71,700 | 0.06 KM |
| 32 Keston Road | £ 457,100 | 0.06 KM |