Monks Park, Wembley, Greater London, HA9
By Grey & Co
£ 590,000
Reviews
3 out of 5 stars
Grey & Co says ..
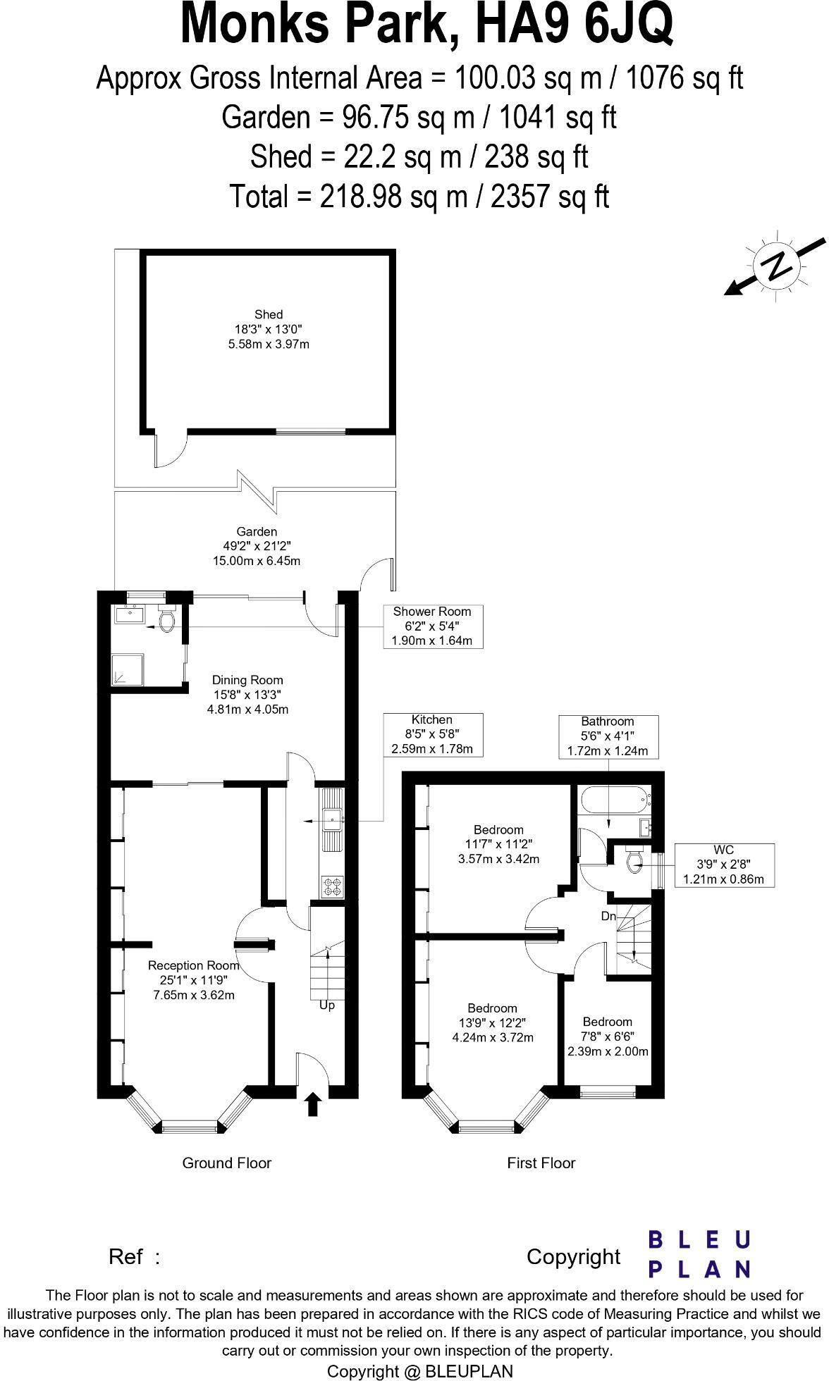
This semi-detached house is located in the sought-after Monks Park, offering easy access to amenities and schools. With 3 bedrooms, 2 bathrooms, and ample living space, this property is perfect for families. Off-street parking and a rear garden with an outer building complete this excellent package.
Property Oracle says ..
This three-bedroom, two-bathroom semi-detached house located on Monks Park in Wembley, HA9 offers a blend of advantages and drawbacks. Its location is a key strength, providing access to public transport via Stonebridge Park station and several well-regarded schools. The relatively large garden is another positive aspect, offering potential for outdoor living and landscaping. However, the property’s condition is a significant consideration. The provided photos clearly indicate a need for modernisation and refurbishment throughout. The kitchen and bathrooms appear dated, and the interior décor requires updating. The overall aesthetic is somewhat tired, suggesting a considerable investment will be necessary to bring the property up to a contemporary standard. While the list price of £590,000 seems competitive within the local market, potential buyers must factor in the substantial costs associated with renovation and modernisation. A comprehensive survey and detailed cost estimate for refurbishment are essential before making an offer. The property could be an excellent investment for a buyer willing to undertake a renovation project, but it’s not a move-in-ready option.
Therefore, we give this property 6 / 10. *Disclaimer: This is our option and does constitute a recommendation or financial advice. Do your own research. *
- Price
- 7
- Condition
- 4
- Location
- 7
- Land
- 6
- Bedrooms
- 3
- Bathrooms
- 2
- Sqft (est)
- 1,076.71
- Lot (est)
- 2,357.08
The heatmap indicates the level of crime in the area. The color of the heatmap indicates the crime severity and recency.
Metrics Year-on-Year
- Average area value
- 567,500.00 £Increased by 23.85 %
- Est sale value
- 1,160,693.38 £Increased by 96.72 %
- Average area rental value
- 2,508.00 £/moIncreased by 2.66 %
- Est letting value
- 4,306.84 £/moIncreased by 100.00 %
- Est rental Yield
- 5.30 %Decreased by 17.19 %
- Crime Rate
- 2.00 %Unchanged by 0.00 %
Agent Activity
Grey & Co created the listing.
Nearby Schools
| Name | Type | Ofsted | Distance |
|---|---|---|---|
| Oakington Manor Primary School | Academy Converter | 0.26 KM | |
| St Raphaels Children'S Centre | Children's Centre | 0.30 KM | |
| Brentfield Primary School | Community School | Good | 0.87 KM |
| Phoenix Arch School | Community Special School | Good | 0.89 KM |
| Edith Kay Independent School | Other Independent Special School | Good | 0.96 KM |
Images
Nearby Streets
| Name | Average Price | Average Sqft | Distance |
|---|---|---|---|
| Overton Close | £ 0 | 0 | 0.00 KM |
| Macarthur Close | £ 0 | 0 | 0.00 KM |
| James Dudson Court | £ 375,000 | 0 | 0.00 KM |
| Russell Close | £ 0 | 0 | 0.00 KM |
| Derek Avenue | £ 0 | 0 | 0.00 KM |
Nearby Transport
| Name | NLC | TLC | Distance |
|---|---|---|---|
| Stonebridge Park | 1454 | SBP | 0.92 KM |
| Wembley Stadium | 1509 | WCX | 1.78 KM |
| Harlesden | 1521 | HDN | 2.06 KM |
| Wembley Central | 1423 | WMB | 2.92 KM |
| Willesden Junction | 1457 | WIJ | 3.44 KM |
Nearby Listings
| Address | Price | Type | Score | Distance |
|---|---|---|---|---|
| Monks Park, Wembley, Greater London, HA9 | £ 590,000 | BUY | 6 / 10 | 0.00 KM |
| Monks Park, Wembley, Middlesex, HA9 | £ 570,000 | BUY | 6 / 10 | 0.00 KM |
| Monks Park, Wembley, HA9 | £ 569,950 | BUY | 5 / 10 | 0.01 KM |
| Monks Park, Wembley, HA9 | £ 500,000 | BUY | 6 / 10 | 0.09 KM |
| Wembley Triangle | £ 550,000 | BUY | 5 / 10 | 0.09 KM |
Nearby Properties
| Address | Price | Distance |
|---|---|---|
| 70 Monks Park | £ 250,000 | 0.01 KM |
| 84a Monks Park | £ 292,500 | 0.01 KM |
| 62 Monks Park | £ 473,000 | 0.01 KM |
| 52 Monks Park | £ 240,000 | 0.01 KM |
| 176 Vivian Avenue | £ 86,000 | 0.11 KM |