WI
Brearley Avenue, New Whittington, Chesterfield
By Wilkins Vardy Residential
£ 285,000
Reviews
3 out of 5 stars
Wilkins Vardy Residential says ..
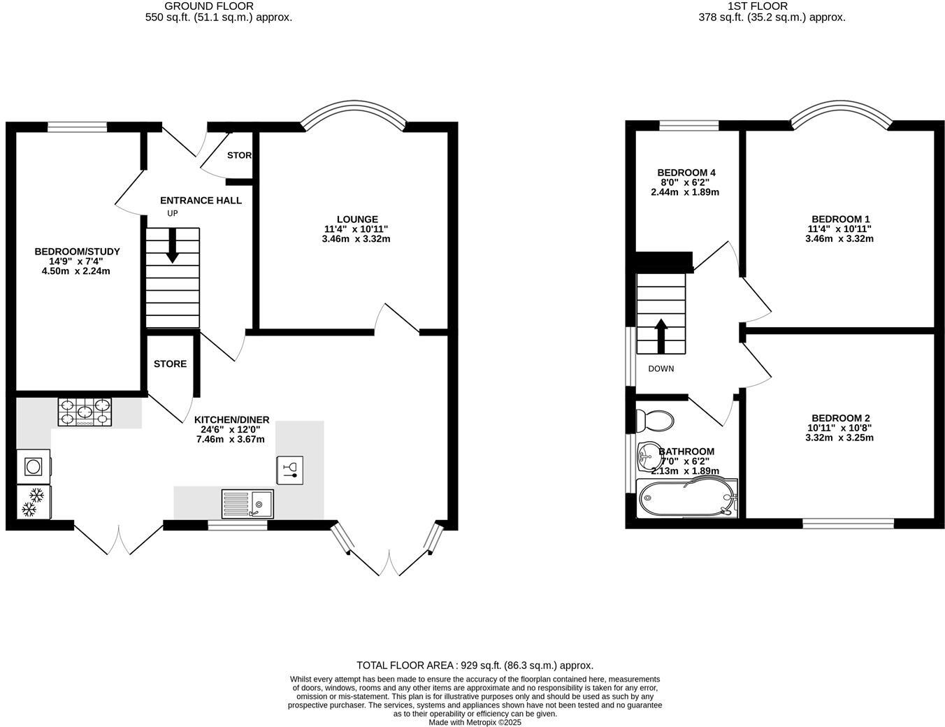
WELL APPOINTED BAY FRONTED SEMI - THREE/FOUR BEDS - STYLISH ACCOMMODATION - GENEROUS PLOT Spanning an impressive 929 sq.ft., is this delightful bay fronted semi detached house which has been refurbished by the current owners and offers a perfect blend of comfort and practicality. The la...
Property Oracle says ..
Therefore, we give this property 6 / 10. *Disclaimer: This is our option and does constitute a recommendation or financial advice. Do your own research. *
- Price
- 6
- Condition
- 8
- Location
- 6
- Land
- 7
- Bedrooms
- 4
- Bathrooms
- 1
- Sqft (est)
- 929.00
The heatmap indicates the level of crime in the area. The color of the heatmap indicates the crime severity and recency.
Metrics Year-on-Year
- Average area value
- 116,667.00 £Decreased by 44.53 %
- Est sale value
- 139,350.00 £Increased by 19.05 %
- Average area rental value
- 775.00 £/moIncreased by 4.31 %
- Est letting value
- 0.00 £/mo
- Est rental Yield
- 7.97 %Increased by 87.97 %
- Crime Rate
- 22.00 %Unchanged by 0.00 %
from 210,337.00 £
from 117,054.00 £
from 743.00 £/mo
from 0.00 £/mo
from 4.24 %
from 22.00 %
Agent Activity
Wilkins Vardy Residential created the listing.
Nearby Schools
| Name | Type | Ofsted | Distance |
|---|---|---|---|
| New Whittington Community Primary School | Academy Sponsor Led | Requires improvement | 0.40 KM |
| Whittington Green School | Community School | Requires improvement | 0.98 KM |
| Brimington Junior School | Academy Converter | Good | 1.41 KM |
| Mary Swanwick Primary School | Academy Converter | Good | 1.91 KM |
| Old Whittington Children'S Centre | Children's Centre | 1.91 KM |
Images
Nearby Streets
| Name | Average Price | Average Sqft | Distance |
|---|---|---|---|
| Caxton Close | £ 250,000 | 0 | 0.00 KM |
| Albert Road | £ 0 | 0 | 0.00 KM |
| Albert Avenue | £ 0 | 0 | 0.00 KM |
| Anderson Close | £ 140,000 | 0 | 0.00 KM |
| Ashleigh Close | £ 237,500 | 0 | 0.00 KM |
Nearby Transport
| Name | NLC | TLC | Distance |
|---|---|---|---|
| Chesterfield | 6615 | CHD | 4.11 KM |
| Dronfield | 6616 | DRO | 7.34 KM |
Nearby Listings
| Address | Price | Type | Score | Distance |
|---|---|---|---|---|
| Brearley Avenue, New Whittington, Chesterfield | £ 285,000 | BUY | 6 / 10 | 0.00 KM |
| Durham Avenue, Grassmoor, S42 | £ 200,000 | BUY | 7 / 10 | 0.11 KM |
| High Street, CHESTERFIELD, Derbyshire, S43 | £ 230,000 | BUY | Unknown | 0.15 KM |
| High Street, New Whittington, Chesterfield, Derbyshire S43 | £ 240,000 | BUY | Unknown | 0.16 KM |
| Crown Close, New Whittington, Chesterfield, Derbyshire S43 | £ 280,000 | BUY | 6 / 10 | 0.17 KM |
Nearby Properties
| Address | Price | Distance |
|---|---|---|
| 4 Durham Avenue | £ 126,500 | 0.10 KM |
| 11 Durham Avenue | £ 240,000 | 0.10 KM |
| 3 Durham Avenue | £ 103,000 | 0.10 KM |
| 1 Durham Avenue | £ 115,000 | 0.10 KM |
| 8 Crown Close | £ 105,000 | 0.14 KM |