Margaret Road, London, N16
By Location Location
£ 590,000
Reviews
3 out of 5 stars
Location Location says ..
Join us for the property launch on Saturday 5th April 2025 - contact us to reserve your private viewing.This magnificent chain free Edwardian maisonette really is in a league of its own, displaying incredible attention to detail, having been lovingly refurbished by the current owner to an exempla...
Property Oracle says ..
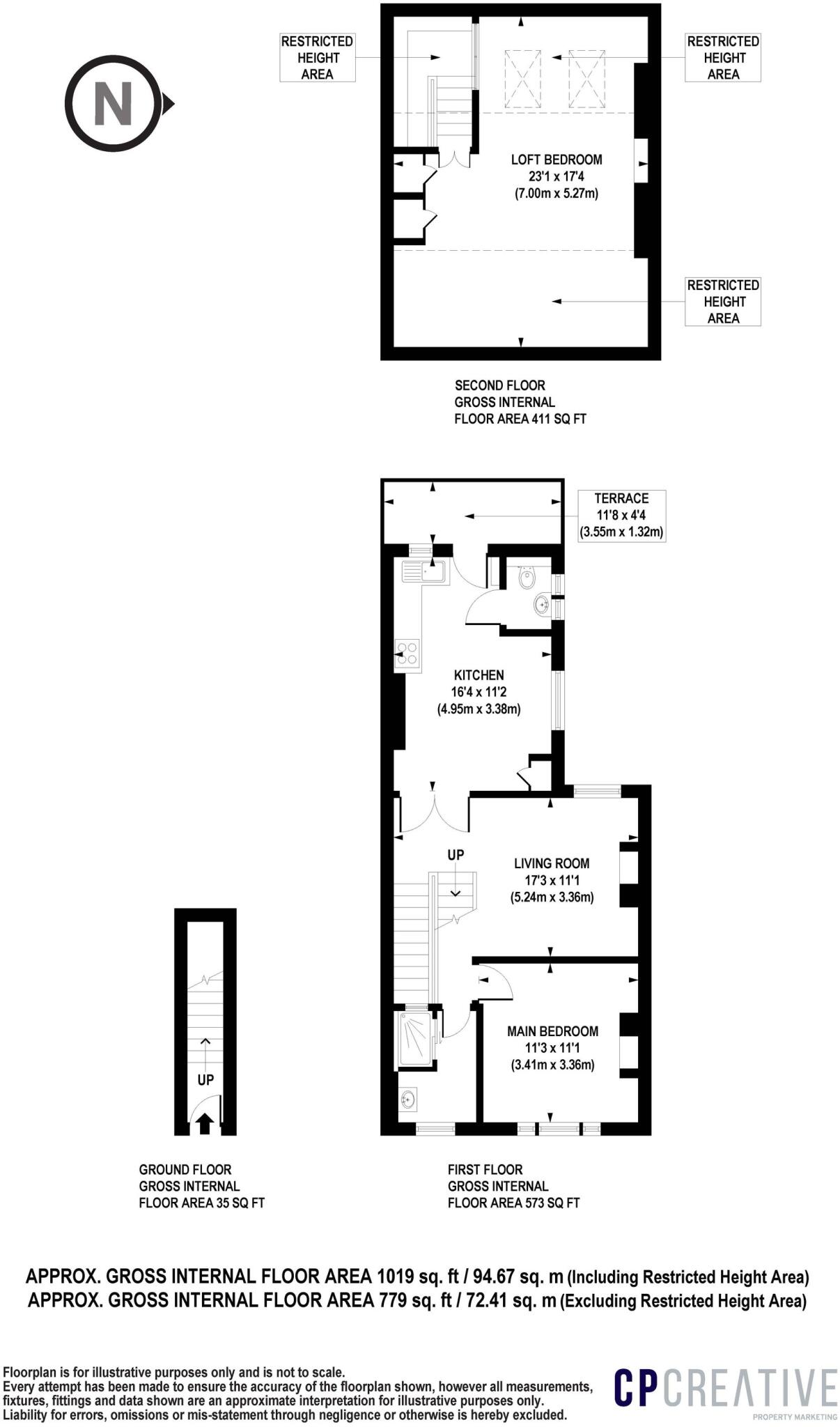
This maisonette is located in the Cazenove area of Hackney, a popular and trendy part of London. The property benefits from being close to several transport links, including Stoke Newington Overground station (0.21km away). There are also a number of schools nearby, although their Ofsted ratings vary. The property itself is presented in excellent condition, having been recently renovated to a high standard. The images show a modern and stylish interior with a well-equipped kitchen and bathroom. The property includes a small balcony/patio area. Given the average price per sqft in the area (£353) and the property’s size (1019 sqft), the asking price of £590,000 appears to be in line with the market, although slightly below the average price for the area. However, the lack of plot size is a factor to consider.
Therefore, we give this property 6 / 10. *Disclaimer: This is our option and does constitute a recommendation or financial advice. Do your own research. *
- Price
- 7
- Condition
- 9
- Location
- 8
- Land
- 3
- Bedrooms
- 1
- Bathrooms
- 1
- Sqft (est)
- 1,019.02
The heatmap indicates the level of crime in the area. The color of the heatmap indicates the crime severity and recency.
Metrics Year-on-Year
- Average area value
- 475,000.00 £Decreased by 35.62 %
- Est sale value
- 913,041.92 £Increased by 35.55 %
- Average area rental value
- 1,997.00 £/moIncreased by 6.91 %
- Est letting value
- 3,057.06 £/moIncreased by 200.00 %
- Est rental Yield
- 5.05 %Increased by 66.12 %
- Crime Rate
- 4.00 %Unchanged by 0.00 %
Agent Activity
Location Location marked this listing as sold.
Location Location created the listing.
Nearby Schools
| Name | Type | Ofsted | Distance |
|---|---|---|---|
| Ttd Gur School | Other Independent School | Inadequate | 0.05 KM |
| Beis Malka Girls' School | Other Independent School | Good | 0.09 KM |
| Talmud Torah Chaim Meirim Wiznitz School | Other Independent School | Inadequate | 0.15 KM |
| Tawhid Boys School, Tawhid Educational Trust | Other Independent School | Good | 0.23 KM |
| Simon Marks Jewish Primary School | Voluntary Aided School | Good | 0.36 KM |
Images
Nearby Streets
| Name | Average Price | Average Sqft | Distance |
|---|---|---|---|
| Station Approach | £ 0 | 0 | 0.00 KM |
| Sandford Walk | £ 0 | 0 | 0.00 KM |
| Sanford Lane | £ 0 | 0 | 0.00 KM |
| Manor Road | £ 831,667 | 0 | 0.00 KM |
| Barry Avenue | £ 0 | 0 | 0.00 KM |
Nearby Transport
| Name | NLC | TLC | Distance |
|---|---|---|---|
| Stoke Newington | 6934 | SKW | 0.21 KM |
| Rectory Road | 6967 | REC | 0.98 KM |
| Stamford Hill | 6968 | SMH | 1.04 KM |
| South Tottenham | 7404 | STO | 1.53 KM |
| Clapton | 6926 | CPT | 1.70 KM |
Nearby Listings
| Address | Price | Type | Score | Distance |
|---|---|---|---|---|
| Margaret Road, London, N16 | £ 590,000 | BUY | 6 / 10 | 0.00 KM |
| Margaret Road, London, N16 | £ 475,000 | BUY | 7 / 10 | 0.00 KM |
| Windus Road, London, N16 | £ 1,100,000 | BUY | 7 / 10 | 0.04 KM |
| Windus Road, Stoke Newington | £ 750,000 | BUY | 4 / 10 | 0.05 KM |
| Windus Road, London, N16 | £ 750,000 | BUY | Unknown | 0.06 KM |
Nearby Properties
| Address | Price | Distance |
|---|---|---|
| 11a Margaret Road | £ 477,500 | 0.01 KM |
| 2 Margaret Road | £ 320,000 | 0.01 KM |
| 4 Margaret Road | £ 440,000 | 0.01 KM |
| 13a Margaret Road | £ 560,000 | 0.01 KM |
| 13 Margaret Road | £ 460,000 | 0.01 KM |