Watsons says ..
A Charming 1920s Arts & Crafts Detached Home with Character and Style, in an established and sought-after location.
Property Oracle says ..
Therefore, we give this property 6 / 10. *Disclaimer: This is our option and does constitute a recommendation or financial advice. Do your own research. *
- Price
- 6
- Condition
- 7
- Location
- 7
- Land
- 7
- Bedrooms
- 3
- Bathrooms
- 1
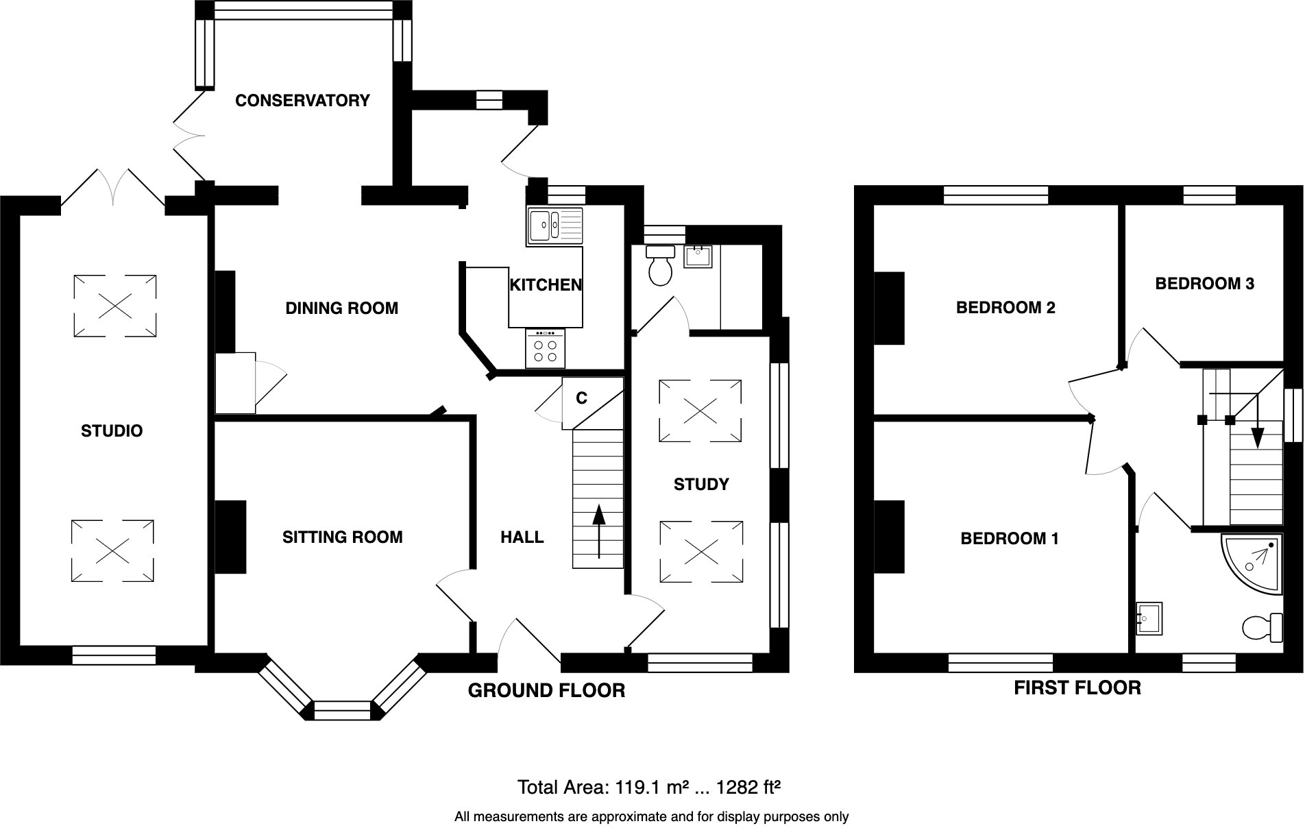
- Sqft (est)
- 1,281.98
The heatmap indicates the level of crime in the area. The color of the heatmap indicates the crime severity and recency.
Metrics Year-on-Year
- Average area value
- 337,772.00 £Decreased by 14.97 %
- Est sale value
- 347,416.58 £Decreased by 19.35 %
- Average area rental value
- 950.00 £/moIncreased by 2.70 %
- Est letting value
- 0.00 £/mo
- Est rental Yield
- 3.38 %Increased by 21.15 %
- Crime Rate
- 2.00 %Unchanged by 0.00 %
from 397,237.00 £
from 430,745.28 £
from 925.00 £/mo
from 0.00 £/mo
from 2.79 %
from 2.00 %
Agent Activity
Watsons created the listing.
Nearby Schools
| Name | Type | Ofsted | Distance |
|---|---|---|---|
| Sheringham Community Primary School | Community School | Good | 1.63 KM |
| Sheringham Woodfields School | Foundation Special School | Outstanding | 1.89 KM |
| Sheringham High School | Academy Converter | Good | 1.95 KM |
| Beeston Hall School | Other Independent School | 2.00 KM | |
| St Andrew'S School | Other Independent Special School | Good | 2.18 KM |
Images
Nearby Streets
| Name | Average Price | Average Sqft | Distance |
|---|---|---|---|
| Hadley Road | £ 0 | 0 | 0.00 KM |
| Knowle Road | £ 180,000 | 0 | 0.00 KM |
| Havelock Road | £ 0 | 0 | 0.00 KM |
| Elm Grove | £ 0 | 0 | 0.00 KM |
| Huntley Crescent | £ 198,750 | 0 | 0.00 KM |
Nearby Transport
| Name | NLC | TLC | Distance |
|---|---|---|---|
| Sheringham | 7319 | SHM | 0.79 KM |
| West Runton | 7329 | WRN | 3.28 KM |
| Cromer | 7295 | CMR | 8.55 KM |
| Roughton Road | 7297 | RNR | 9.52 KM |
Nearby Listings
| Address | Price | Type | Score | Distance |
|---|---|---|---|---|
| Sheringham | £ 425,000 | BUY | 6 / 10 | 0.00 KM |
| Hadley Road, Sheringham | £ 550,000 | BUY | 7 / 10 | 0.00 KM |
| Sheringham | £ 375,000 | BUY | 7 / 10 | 0.02 KM |
| Havelock Road, Sheringham | £ 500,000 | BUY | 7 / 10 | 0.19 KM |
| The Rise. Sheringham | £ 675,000 | BUY | 8 / 10 | 0.19 KM |
Nearby Properties
| Address | Price | Distance |
|---|---|---|
| 7 Hadley Road | £ 368,000 | 0.01 KM |
| 6 Hadley Road | £ 192,500 | 0.01 KM |
| 15 Hadley Road | £ 424,800 | 0.01 KM |
| 9 Hadley Road | £ 67,000 | 0.01 KM |
| 16 Hadley Road | £ 350,000 | 0.01 KM |