Singleton Scarp, Woodside Park
By Real Estates
£ 850,000
Reviews
2 out of 5 stars
Real Estates says ..
* CASH BUYER/INVESTOR ONLY * Real Estates are pleased to offer for sale this ORIGINAL THREE BEDROOM SEMI-DETACHED home on one of Woodside Park's most premier cul-de-sacs. The property requires a full renovation and comes with vast potential to extend to the loft and rear (STPP)....
Property Oracle says ..
This property is a three-bedroom semi-detached house located in Totteridge, Barnet. The location benefits from being close to several well-regarded schools, including The Holmewood School and Woodridge Primary School, both rated as ‘Good’ by Ofsted. Transport links are also reasonably accessible, with several train stations within a few kilometers. However, the property itself is in need of significant renovation. The images show a tired and worn interior, with several rooms requiring complete refurbishment. The garden is overgrown and neglected. While the list price is below the average price for the area, the extensive renovation required significantly impacts the overall value. Considering the necessary work, the price may still be considered high.
Therefore, we give this property 4 / 10. *Disclaimer: This is our option and does constitute a recommendation or financial advice. Do your own research. *
- Price
- 4
- Condition
- 3
- Location
- 7
- Land
- 3
- Bedrooms
- 3
- Bathrooms
- 1
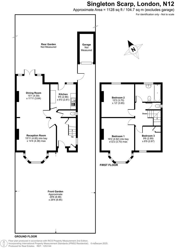
- Sqft (est)
- 1,128.00
The heatmap indicates the level of crime in the area. The color of the heatmap indicates the crime severity and recency.
Metrics Year-on-Year
- Average area value
- 1,077,389.00 £Increased by 1.83 %
- Est sale value
- 735,456.00 £Increased by 8.49 %
- Average area rental value
- 2,772.00 £/moIncreased by 5.36 %
- Est letting value
- 1,128.00 £/moUnchanged by 0.00 %
- Est rental Yield
- 3.09 %Increased by 3.69 %
- Crime Rate
- 1.00 %Unchanged by 0.00 %
Agent Activity
Real Estates created the listing.
Nearby Schools
| Name | Type | Ofsted | Distance |
|---|---|---|---|
| The Holmewood School | Other Independent Special School | Good | 0.79 KM |
| Woodridge Primary School | Community School | Good | 0.84 KM |
| Moss Hall Nursery School | Local Authority Nursery School | Outstanding | 0.88 KM |
| Moss Hall Infant School | Community School | Outstanding | 0.99 KM |
| Moss Hall Junior School | Community School | Requires improvement | 0.99 KM |
Images
Nearby Streets
| Name | Average Price | Average Sqft | Distance |
|---|---|---|---|
| Station Approach | £ 0 | 0 | 0.00 KM |
| Woodside Court | £ 850,000 | 0 | 0.00 KM |
| Finchley Court | £ 0 | 0 | 0.00 KM |
| Adams Close | £ 550,000 | 0 | 0.00 KM |
| Popes Drive | £ 0 | 0 | 0.00 KM |
Nearby Transport
| Name | NLC | TLC | Distance |
|---|---|---|---|
| Oakleigh Park | 6020 | OKL | 3.66 KM |
| New Barnet | 6018 | NBA | 4.11 KM |
| New Southgate | 6019 | NSG | 5.39 KM |
| Hadley Wood | 6075 | HDW | 6.02 KM |
| Mill Hill Broadway | 1527 | MIL | 6.37 KM |
Nearby Listings
| Address | Price | Type | Score | Distance |
|---|---|---|---|---|
| Singleton Scarp, Woodside Park | £ 850,000 | BUY | 4 / 10 | 0.00 KM |
| Chanctonbury Way, London | £ 1,100,000 | BUY | 7 / 10 | 0.13 KM |
| Chanctonbury Way, North Finchley, London, N12 | £ 900,000 | BUY | Unknown | 0.14 KM |
| Lullington Garth, Woodside Park | £ 1,100,000 | BUY | 7 / 10 | 0.18 KM |
| Chanctonbury Way, Woodside Park | £ 1,150,000 | BUY | Unknown | 0.18 KM |
Nearby Properties
| Address | Price | Distance |
|---|---|---|
| 32 Singleton Scarp | £ 750,000 | 0.09 KM |
| 37 Singleton Scarp | £ 185,000 | 0.09 KM |
| 20 Singleton Scarp | £ 845,000 | 0.09 KM |
| 23 Singleton Scarp | £ 775,000 | 0.09 KM |
| 33 Singleton Scarp | £ 449,950 | 0.09 KM |