Breteuil says ..
Impressive penthouse in the heart of Chelsea Harbour. This apartment benefits from a generous reception room with a large balcony.
Property Oracle says ..
The property is located in Chelsea Harbour, a prestigious area in London. The apartment is well-maintained and appears to be in excellent condition based on the provided photos. The presence of a balcony is a positive feature. While the plot size is not exceptionally large, it is sufficient for an apartment of this type. The list price of £1,795,000 is higher than the average price for the area (£1,442,884), but comparable to other properties in Chelsea Harbour. Considering the location, condition, and amenities, the price may be justified.
Therefore, we give this property 8 / 10. *Disclaimer: This is our option and does constitute a recommendation or financial advice. Do your own research. *
- Price
- 7
- Condition
- 9
- Location
- 10
- Land
- 6
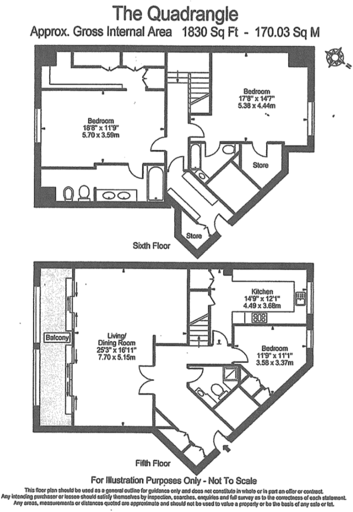
- Bedrooms
- 3
- Bathrooms
- 3
- Sqft (est)
- 1,212.06
- Lot (est)
- 1,830.00
The heatmap indicates the level of crime in the area. The color of the heatmap indicates the crime severity and recency.
Metrics Year-on-Year
- Average area value
- 1,383,762.00 £Increased by 8.10 %
- Est sale value
- 2,488,359.18 £Increased by 67.73 %
- Average area rental value
- 3,390.00 £/moIncreased by 11.04 %
- Est letting value
- 6,060.30 £/moIncreased by 150.00 %
- Est rental Yield
- 2.94 %Increased by 2.80 %
- Crime Rate
- 4.00 %Unchanged by 0.00 %
Agent Activity
Breteuil created the listing.
Nearby Schools
| Name | Type | Ofsted | Distance |
|---|---|---|---|
| Chelsea Academy | Academy Sponsor Led | Outstanding | 0.28 KM |
| Cheyne Children'S Centre | Children's Centre | 0.56 KM | |
| Ashburnham Community School | Community School | Outstanding | 0.66 KM |
| Somerset Nursery School And Children'S Centre | Children's Centre | 0.68 KM | |
| Somerset Nursery School And Children'S Centre | Local Authority Nursery School | Outstanding | 0.73 KM |
Images
Nearby Streets
| Name | Average Price | Average Sqft | Distance |
|---|---|---|---|
| Waterfront Drive | £ 4,150,708 | 0 | 0.00 KM |
| Harbour Avenue | £ 0 | 0 | 0.00 KM |
| Albion Quay | £ 895,000 | 0 | 0.00 KM |
| Edith Yard | £ 580,000 | 0 | 0.00 KM |
| William Morris Way | £ 1,505,000 | 0 | 0.00 KM |
Nearby Transport
| Name | NLC | TLC | Distance |
|---|---|---|---|
| Imperial Wharf | 9586 | IMW | 0.20 KM |
| Clapham Junction | 5595 | CLJ | 1.80 KM |
| Wandsworth Town | 5576 | WNT | 1.82 KM |
| West Brompton | 8875 | WBP | 1.99 KM |
| Battersea Park | 5420 | BAK | 3.75 KM |
Nearby Listings
| Address | Price | Type | Score | Distance |
|---|---|---|---|---|
| Chelsea Harbour, Chelsea, London, SW10 | £ 999,950 | BUY | 8 / 10 | 0.01 KM |
| Chelsea Harbour, Chelsea Harbour, London, SW10 | £ 600,000 | BUY | Unknown | 0.01 KM |
| Carlyle Court, Chelsea Harbour, London, SW10 | £ 825,000 | BUY | 7 / 10 | 0.03 KM |
| Carlyle Court, Chelsea Harbour | £ 999,950 | BUY | 5 / 10 | 0.04 KM |
| Carlyle Court, Chelsea Harbour | £ 699,950 | BUY | Unknown | 0.04 KM |
Nearby Properties
| Address | Price | Distance |
|---|---|---|
| 56 Carlyle Court | £ 1,070,000 | 0.03 KM |
| 9 Carlyle Court | £ 985,000 | 0.03 KM |
| 8 Carlyle Court | £ 1,450,000 | 0.03 KM |
| 37 Carlyle Court | £ 950,000 | 0.03 KM |
| 3 Carlyle Court | £ 855,000 | 0.03 KM |