Lewis King says ..
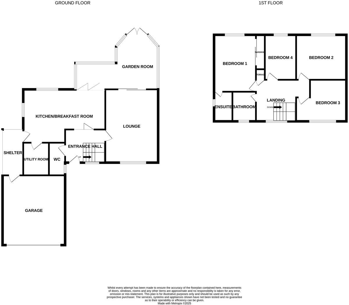
*NO ONWARD CHAIN* Tucked away within the highly sought-after Tatton Drive estate, this impressive four-bedroom detached property on Radbroke Close offers an exceptional blend of space, style, and convenience. Situated on a substantial corner plot with a private rear outlook, this home is perf...
Property Oracle says ..
This property is a 4 bedroom, 2 bathroom detached house located in Radbroke Close, Sandbach, Cheshire. The property benefits from a modern kitchen extension and conservatory overlooking a good-sized garden. The location is desirable, being close to local schools and transport links. While the list price is higher than the average for the area, comparable properties in the vicinity support the valuation. The property appears to be well-maintained and in good condition.
Therefore, we give this property 7 / 10. *Disclaimer: This is our option and does constitute a recommendation or financial advice. Do your own research. *
- Price
- 7
- Condition
- 9
- Location
- 8
- Land
- 7
- Bedrooms
- 4
- Bathrooms
- 2
- Sqft (est)
- 250.00
The heatmap indicates the level of crime in the area. The color of the heatmap indicates the crime severity and recency.
Metrics Year-on-Year
- Average area value
- 246,667.00 £Increased by 6.08 %
- Est sale value
- 72,000.00 £Increased by 10.77 %
- Average area rental value
- 1,000.00 £/moDecreased by 7.41 %
- Est letting value
- 250.00 £/moUnchanged by 0.00 %
- Est rental Yield
- 4.86 %Decreased by 12.75 %
- Crime Rate
- 0.00 %
Agent Activity
Lewis King created the listing.
Nearby Schools
| Name | Type | Ofsted | Distance |
|---|---|---|---|
| St John'S Cofe Primary School | Voluntary Aided School | Requires improvement | 1.33 KM |
| Offley Primary Academy | Academy Converter | Good | 1.37 KM |
| Sandbach Children'S Centre | Children's Centre | 2.13 KM | |
| Sandbach Primary Academy | Academy Converter | Good | 2.16 KM |
| Sandbach School | Free Schools | Good | 2.27 KM |
Images
Nearby Streets
| Name | Average Price | Average Sqft | Distance |
|---|---|---|---|
| Alderley Close | £ 725,000 | 0 | 0.00 KM |
| White Wood Road | £ 285,000 | 0 | 0.00 KM |
| Sandbach Interchange | £ 685,000 | 0 | 0.00 KM |
| Buckthorn Road | £ 0 | 0 | 0.00 KM |
| Heather Way | £ 0 | 0 | 0.00 KM |
Nearby Transport
| Name | NLC | TLC | Distance |
|---|---|---|---|
| Sandbach | 1261 | SDB | 4.62 KM |
| Holmes Chapel | 1221 | HCH | 5.39 KM |
| Goostrey | 1220 | GTR | 8.49 KM |
| Alsager | 1223 | ASG | 8.65 KM |
Nearby Listings
| Address | Price | Type | Score | Distance |
|---|---|---|---|---|
| Radbroke Close, Sandbach | £ 700,000 | BUY | 7 / 10 | 0.00 KM |
| Alderley Close, Sandbach | £ 680,000 | BUY | 7 / 10 | 0.09 KM |
| Swettenham Close, Sandbach | £ 525,000 | BUY | 8 / 10 | 0.16 KM |
| Monarch Place, Sandbach | £ 275,000 | BUY | 7 / 10 | 0.19 KM |
| Comma Road, Sandbach | £ 365,000 | BUY | 7 / 10 | 0.20 KM |
Nearby Properties
| Address | Price | Distance |
|---|---|---|
| 5 Radbroke Close | £ 333,000 | 0.01 KM |
| 9 Radbroke Close | £ 510,000 | 0.01 KM |
| 2 Radbroke Close | £ 230,000 | 0.01 KM |
| 2 Davenport Close | £ 129,607 | 0.07 KM |
| 8 Davenport Close | £ 144,000 | 0.07 KM |