AL
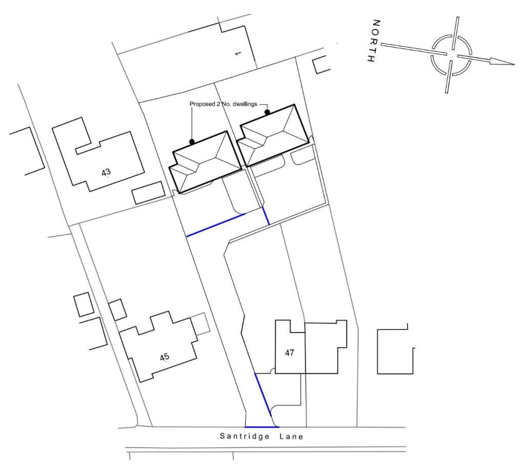
Plots to Rear of 47 Santridge Lane, Bromsgrove, B61 8JZ
By Allan Morris
£ 280,000
Reviews
3 out of 5 stars
Allan Morris says ..
This freehold plot of approximately 0.24 acre has planning permission for two detached bungalows with a GIA of approximately 820sqft. Granted on 7th June 2024, the planning permission documents can be viewed on Bromsgrove District Council's planning portal:
Property Oracle says ..
Therefore, we give this property 7 / 10. *Disclaimer: This is our option and does constitute a recommendation or financial advice. Do your own research. *
- Price
- 6
- Condition
- 10
- Location
- 7
- Land
- 6
- Bedrooms
- 0
- Bathrooms
- 0
- Sqft (est)
- 700.00
The heatmap indicates the level of crime in the area. The color of the heatmap indicates the crime severity and recency.
Metrics Year-on-Year
- Average area value
- 274,140.00 £Decreased by 13.18 %
- Est sale value
- 139,300.00 £Decreased by 25.19 %
- Average area rental value
- 958.00 £/moIncreased by 19.75 %
- Est letting value
- 0.00 £/mo
- Est rental Yield
- 4.19 %Increased by 37.83 %
- Crime Rate
- 4.00 %Unchanged by 0.00 %
from 315,765.00 £
from 186,200.00 £
from 800.00 £/mo
from 0.00 £/mo
from 3.04 %
from 4.00 %
Agent Activity
Allan Morris created the listing.
Nearby Schools
| Name | Type | Ofsted | Distance |
|---|---|---|---|
| Meadows First School | Community School | Outstanding | 0.30 KM |
| Parkside Middle School | Community School | Good | 0.38 KM |
| Pear Tree Children'S Centre | Children's Centre | 0.94 KM | |
| North Bromsgrove High School | Community School | Requires improvement | 0.99 KM |
| St John'S Church Of England Middle School Academy | Academy Converter | 1.49 KM |
Images
Nearby Streets
| Name | Average Price | Average Sqft | Distance |
|---|---|---|---|
| Orchard Road | £ 0 | 0 | 0.00 KM |
| Laburnum Grove | £ 0 | 0 | 0.00 KM |
| Laurel Grove | £ 0 | 0 | 0.00 KM |
| Churchfields Road | £ 0 | 0 | 0.00 KM |
| Jasmine Grove | £ 225,000 | 0 | 0.00 KM |
Nearby Transport
| Name | NLC | TLC | Distance |
|---|---|---|---|
| Bromsgrove | 4715 | BMV | 2.73 KM |
| Barnt Green | 1096 | BTG | 7.67 KM |
Nearby Listings
| Address | Price | Type | Score | Distance |
|---|---|---|---|---|
| Plots to Rear of 47 Santridge Lane, Bromsgrove, B61 8JZ | £ 280,000 | BUY | 7 / 10 | 0.00 KM |
| Santridge Lane, Bromsgrove, Worcestershire, B61 | £ 295,000 | BUY | 5 / 10 | 0.03 KM |
| 21 Santridge Lane, Bromsgrove, Worcestershire, B61 8JZ | £ 220,000 | BUY | 7 / 10 | 0.07 KM |
| 21 Santridge Lane, Bromsgrove, Worcestershire, B61 8JZ | £ 215,000 | BUY | 6 / 10 | 0.07 KM |
| Stourbridge Road, Bromsgrove, Worcestershire, B61 | £ 450,000 | BUY | 7 / 10 | 0.09 KM |
Nearby Properties
| Address | Price | Distance |
|---|---|---|
| 52 Santridge Lane | £ 202,000 | 0.01 KM |
| 54 Santridge Lane | £ 54,950 | 0.01 KM |
| 29 Santridge Lane | £ 95,000 | 0.01 KM |
| 43 Santridge Lane | £ 250,000 | 0.01 KM |
| 41b Santridge Lane | £ 260,000 | 0.01 KM |