Charrison Davis says ..
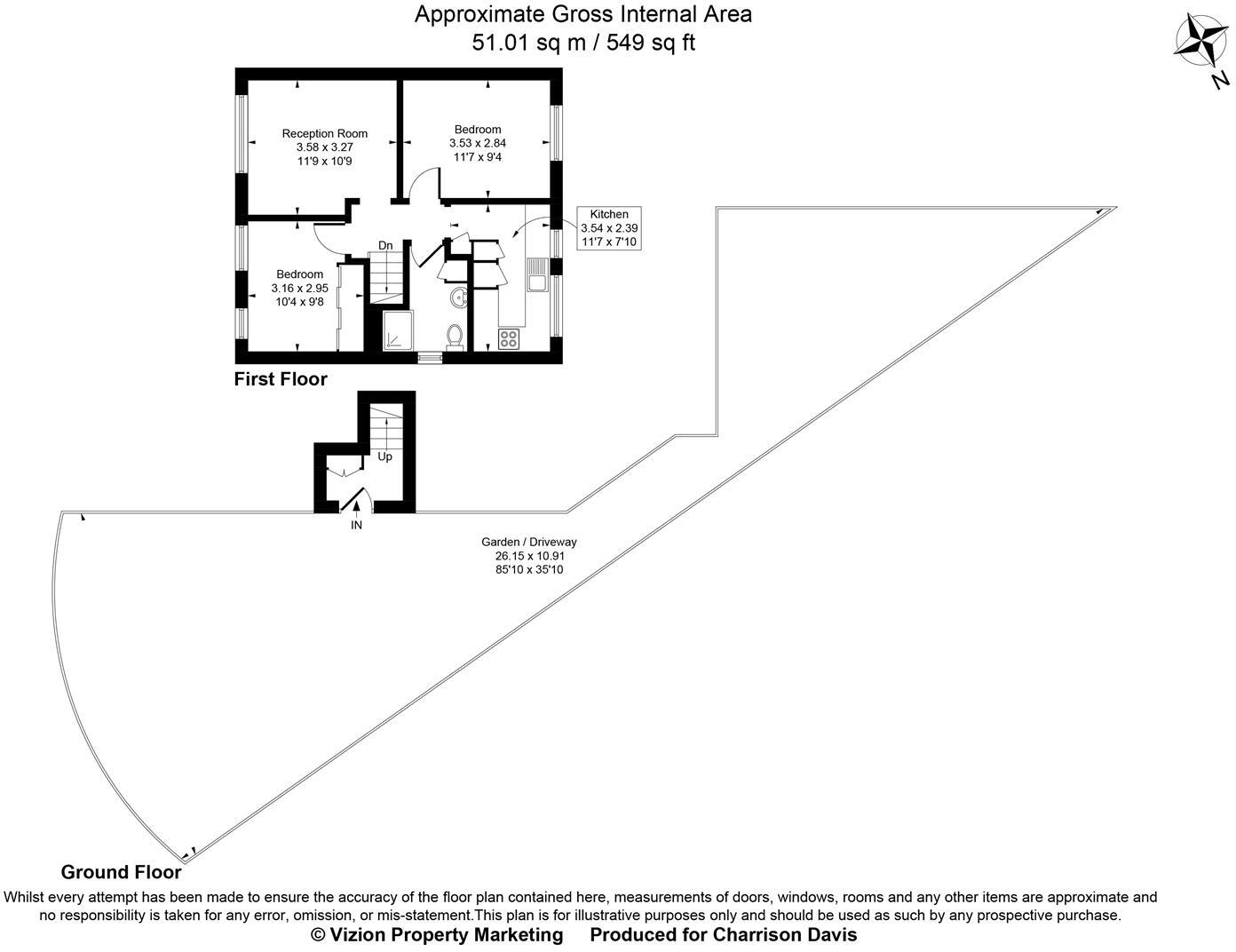
NO ONWARD CHAIN FOR THIS SPACIOUS AND WELL PRESENTED 2 DOUBLE BEDROOM FIRST FLOOR MAISONETTE WITH ITS OWN GARDEN AREA AND OWN DRIVEWAY PARKING FOR 3 CARS. THIS EXCELLENT PROPERTY ALSO BENEFITS FROM A REMAINING 143 YEARS LEASE AND NO GROUND RENT OR SERVICE CHARGES. Located in a sought after re...
Property Oracle says ..
This is a 2-bedroom maisonette located in Greenford Broadway, Ealing. The property is listed for £325,000. It benefits from its proximity to transport links and schools. While the property appears to be in a fair condition, it could benefit from some modernisation. It includes a garden/driveway area, adding to its appeal. Considering the location, condition, and available land, the price seems reasonable.
Therefore, we give this property 6 / 10. *Disclaimer: This is our option and does constitute a recommendation or financial advice. Do your own research. *
- Price
- 7
- Condition
- 6
- Location
- 7
- Land
- 6
- Bedrooms
- 2
- Bathrooms
- 1
The heatmap indicates the level of crime in the area. The color of the heatmap indicates the crime severity and recency.
Metrics Year-on-Year
- Average area value
- 345,650.00 £Decreased by 14.42 %
- Average area rental value
- 1,733.00 £/moIncreased by 12.61 %
- Est rental Yield
- 6.02 %Increased by 31.73 %
- Crime Rate
- 2.00 %Unchanged by 0.00 %
Agent Activity
Charrison Davis created the listing.
Nearby Schools
| Name | Type | Ofsted | Distance |
|---|---|---|---|
| The Edward Betham Church Of England Primary School | Voluntary Aided School | Good | 0.32 KM |
| Coston Primary School | Community School | Good | 0.32 KM |
| William Perkin Church Of England High School | Free Schools | Outstanding | 0.55 KM |
| Oldfield Primary School | Community School | Good | 0.56 KM |
| Ealing Primary Centre | Pupil Referral Unit | Good | 0.70 KM |
Images
Nearby Streets
| Name | Average Price | Average Sqft | Distance |
|---|---|---|---|
| Dairy Close | £ 300,000 | 0 | 0.00 KM |
| Greenford Roundabout | £ 0 | 0 | 0.00 KM |
| Runnymede Gardens | £ 600,000 | 0 | 0.00 KM |
| Footpath 64 | £ 0 | 0 | 0.00 KM |
| Bingley Road | £ 635,000 | 0 | 0.00 KM |
Nearby Transport
| Name | NLC | TLC | Distance |
|---|---|---|---|
| Greenford | 3136 | GFD | 1.12 KM |
| South Greenford | 3138 | SGN | 1.28 KM |
| Castle Bar Park | 3098 | CBP | 2.13 KM |
| Hanwell | 3191 | HAN | 2.54 KM |
| Drayton Green | 3099 | DRG | 2.67 KM |
Nearby Listings
| Address | Price | Type | Score | Distance |
|---|---|---|---|---|
| Shelley Avenue, Greenford | £ 325,000 | BUY | 6 / 10 | 0.00 KM |
| Greenford Road, Greenford | £ 285,000 | BUY | 5 / 10 | 0.03 KM |
| 628 Greenford Road, Greenford | £ 325,000 | BUY | 6 / 10 | 0.07 KM |
| Greenview Court, 628 Greenford Road, Greenford, UB6 8QT | £ 350,000 | BUY | 6 / 10 | 0.07 KM |
| Greenford Road, Greenford, Middlesex, UB6 | £ 300,000 | BUY | 4 / 10 | 0.07 KM |
Nearby Properties
| Address | Price | Distance |
|---|---|---|
| 2a Shelley Avenue | £ 176,950 | 0.05 KM |
| 15a Shelley Avenue | £ 178,886 | 0.05 KM |
| 8a Shelley Avenue | £ 300,000 | 0.05 KM |
| 3 Shelley Avenue | £ 159,950 | 0.05 KM |
| 11a Shelley Avenue | £ 178,000 | 0.05 KM |