Rice & Roman says ..
A two bedroom, two bathroom apartment in the popular Austin Place, Development for persons 55+ Years of age.
Property Oracle says ..
This two-bedroom, two-bathroom apartment in Austin Place, Weybridge, presents a modern and well-maintained living space. Located in a 55+ retirement development, it offers convenience and a desirable address. The proximity to highly-rated schools such as Oatlands School and excellent transport links to London via South Western Railway are key selling points. The apartment’s interior appears clean and recently updated, with modern fixtures and fittings. However, the lack of private outdoor space is a significant limitation. The price, while potentially justifiable in light of the location and condition, might be influenced by the niche target market of this retirement development, where prices are usually higher per sqft than standard open-market properties. Further information on the precise square footage of living space versus communal areas would allow for more accurate comparative analysis. The fact that other nearby properties do not have comparable SQFT numbers is also a factor to be considered. The lack of information on parking, included services, and building maintenance fees, also affects the overall assessment of this property’s value. Buyers should carefully weigh the advantages of the location and condition against the limitations of limited land and the restrictive nature of a retirement development.
Therefore, we give this property 5 / 10. *Disclaimer: This is our option and does constitute a recommendation or financial advice. Do your own research. *
- Price
- 7
- Condition
- 8
- Location
- 7
- Land
- 1
- Bedrooms
- 2
- Bathrooms
- 2
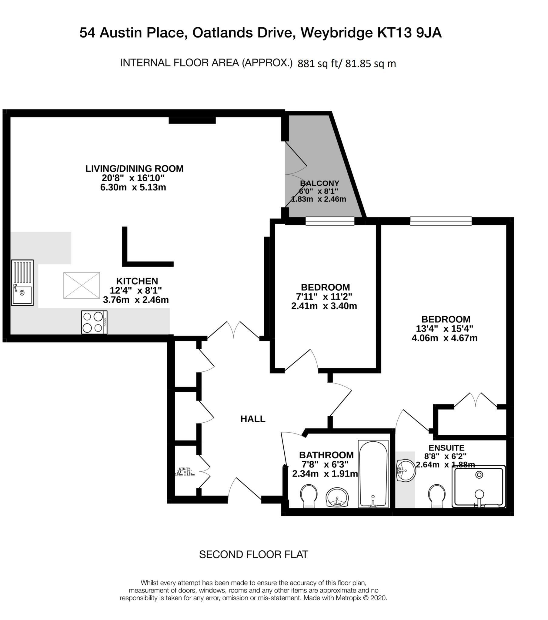
- Sqft (est)
- 881.03
The heatmap indicates the level of crime in the area. The color of the heatmap indicates the crime severity and recency.
Metrics Year-on-Year
- Average area value
- 1,106,364.00 £Increased by 6.59 %
- Est sale value
- 1,385,860.19 £Increased by 108.62 %
- Average area rental value
- 4,190.00 £/moIncreased by 13.61 %
- Est letting value
- 4,405.15 £/moIncreased by 150.00 %
- Est rental Yield
- 4.54 %Increased by 6.57 %
- Crime Rate
- 5.00 %Unchanged by 0.00 %
Agent Activity
Rice & Roman created the listing.
Nearby Schools
| Name | Type | Ofsted | Distance |
|---|---|---|---|
| Oatlands School | Community School | Outstanding | 0.93 KM |
| Cleves School | Academy Converter | 1.11 KM | |
| Walton Leigh School | Community Special School | Outstanding | 1.28 KM |
| St James Cofe Primary School | Voluntary Controlled School | Good | 1.66 KM |
| Halliford School | Other Independent School | 1.70 KM |
Images
Nearby Streets
| Name | Average Price | Average Sqft | Distance |
|---|---|---|---|
| Duneevan | £ 372,500 | 0 | 0.00 KM |
| Beverley Close | £ 960,000 | 0 | 0.00 KM |
| Village Close | £ 0 | 0 | 0.00 KM |
| Larchfield Close | £ 0 | 0 | 0.00 KM |
| Parkway | £ 750,000 | 0 | 0.00 KM |
Nearby Transport
| Name | NLC | TLC | Distance |
|---|---|---|---|
| Walton-On-Thames | 5575 | WAL | 2.26 KM |
| Shepperton | 5605 | SHP | 2.42 KM |
| Weybridge | 5577 | WYB | 3.25 KM |
| Upper Halliford | 5613 | UPH | 3.80 KM |
| Sunbury | 5608 | SUU | 4.72 KM |
Nearby Listings
| Address | Price | Type | Score | Distance |
|---|---|---|---|---|
| Austin Place, Weybridge | £ 335,000 | BUY | Unknown | 0.00 KM |
| Austin Place, Weybridge | £ 489,950 | BUY | Unknown | 0.00 KM |
| Austin Place, Weybridge | £ 340,000 | BUY | Unknown | 0.00 KM |
| Austin Place, Weybridge | £ 300,000 | BUY | Unknown | 0.00 KM |
| Austin Place, Weybridge | £ 300,000 | BUY | 6 / 10 | 0.00 KM |
Nearby Properties
| Address | Price | Distance |
|---|---|---|
| 72 Berkeley Court | £ 240,000 | 0.09 KM |
| 54 Berkeley Court | £ 440,000 | 0.09 KM |
| 70 Berkeley Court | £ 290,000 | 0.09 KM |
| 63 Berkeley Court | £ 392,500 | 0.09 KM |
| 75 Berkeley Court | £ 128,000 | 0.09 KM |