Parsonage Way, Plymouth, PL4
By Atwell Martin
£ 795,000
Reviews
4 out of 5 stars
Atwell Martin says ..
Luxurious 4-bed Penthouse at Queen Anne's Quay with panoramic views of Plymouth Sound. Open-plan layout, extensive terrace, en-suite master bedroom, garaged parking. Prime location near historic Barbican. Contact us to schedule a private viewing.
Property Oracle says ..
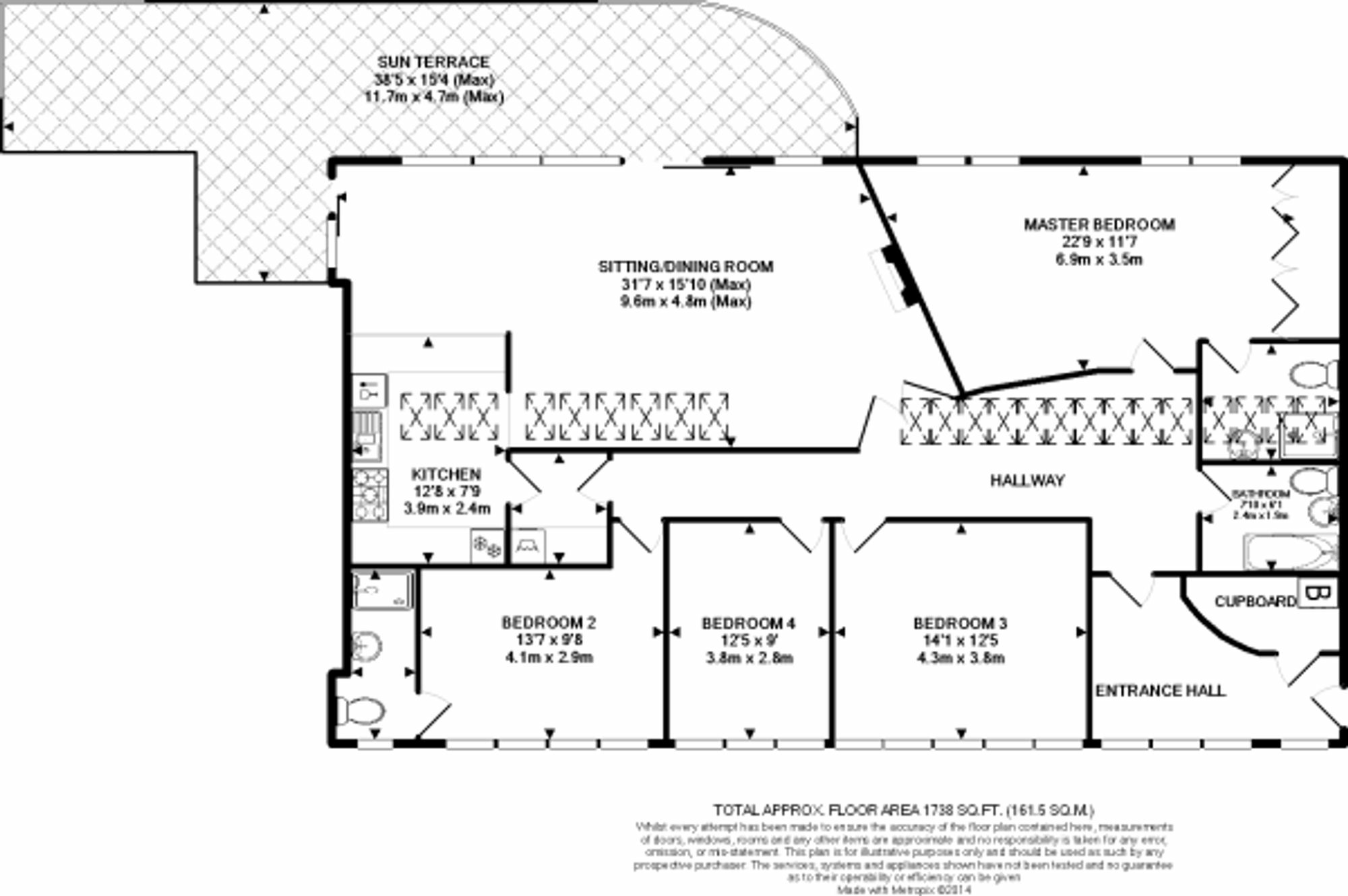
The property is a 4 bedroom, 3 bathroom penthouse apartment located in Sutton And Mount Gould, Plymouth, Devon. It is listed at £795,000 and has 1,711.79 sqft of living space and a 1,738 sqft plot. The average price for a property in the area is £223,679, with an average size of 1,161 sqft and an average price per sqft of £192. The property benefits from stunning views and a large private balcony. The interior is modern and well-maintained, with a contemporary kitchen and bathrooms. The property also includes a large living area, multiple bedrooms and a dedicated study/office space. The images suggest the property is in excellent condition and is a modern property. The location is also a positive aspect, with proximity to transportation links and local amenities. The plot size is significant for a penthouse apartment, offering additional outdoor space. Given the size, condition, and location of the property, the list price of £795,000 appears to be at the higher end of the market, but not unreasonable considering the premium associated with penthouse apartments offering panoramic views and modern finishes. The lack of comparable properties in the immediate vicinity with square footage data makes a precise price comparison difficult. However, the list price is significantly higher than the average property price in the area, reflecting the premium for the penthouse style and the views.
Therefore, we give this property 8 / 10. *Disclaimer: This is our option and does constitute a recommendation or financial advice. Do your own research. *
- Price
- 7
- Condition
- 10
- Location
- 9
- Land
- 8
- Bedrooms
- 4
- Bathrooms
- 3
- Sqft (est)
- 1,711.79
- Lot (est)
- 1,738.00
The heatmap indicates the level of crime in the area. The color of the heatmap indicates the crime severity and recency.
Metrics Year-on-Year
- Average area value
- 253,125.00 £Increased by 15.55 %
- Est sale value
- 391,999.91 £Increased by 9.05 %
- Average area rental value
- 741.00 £/moIncreased by 14.88 %
- Est letting value
- 0.00 £/mo
- Est rental Yield
- 3.51 %Decreased by 0.57 %
- Crime Rate
- 9.00 %Unchanged by 0.00 %
Agent Activity
Atwell Martin created the listing.
Nearby Schools
| Name | Type | Ofsted | Distance |
|---|---|---|---|
| Nomony Children'S Centre | Children's Centre | 0.34 KM | |
| Holy Cross Catholic Primary School | Academy Converter | 0.66 KM | |
| Ace Schools Plymouth | Academy Alternative Provision Converter | Good | 0.91 KM |
| Salisbury Road Primary School | Academy Converter | Requires improvement | 1.04 KM |
| Mount Street Primary School | Academy Sponsor Led | 1.17 KM |
Images
Nearby Streets
| Name | Average Price | Average Sqft | Distance |
|---|---|---|---|
| Alma Street | £ 375,000 | 0 | 0.00 KM |
| Holborn Street | £ 0 | 0 | 0.00 KM |
| Cattedown Roundabout | £ 0 | 0 | 0.00 KM |
| Friary Retail Park | £ 180,000 | 0 | 0.00 KM |
| Egerton Road | £ 179,700 | 0 | 0.00 KM |
Nearby Transport
| Name | NLC | TLC | Distance |
|---|---|---|---|
| Plymouth | 3580 | PLY | 2.04 KM |
| Devonport | 3579 | DPT | 4.84 KM |
| Dockyard (Devonport) | 3588 | DOC | 5.50 KM |
| Keyham | 3571 | KEY | 6.20 KM |
| St Budeaux Ferry Road | 3590 | SBF | 7.50 KM |
Nearby Listings
| Address | Price | Type | Score | Distance |
|---|---|---|---|---|
| Parsonage Way, Plymouth, PL4 | £ 350,000 | BUY | 7 / 10 | 0.00 KM |
| Parsonage Way, Plymouth, PL4 | £ 795,000 | BUY | 8 / 10 | 0.00 KM |
| Parsonage Way, Plymouth, PL4 | £ 1,500,000 | BUY | Unknown | 0.00 KM |
| Parsonage Way, Plymouth, PL4 | £ 299,950 | BUY | 6 / 10 | 0.00 KM |
| Parsonage Way, Plymouth | £ 375,000 | BUY | 7 / 10 | 0.01 KM |
Nearby Properties
| Address | Price | Distance |
|---|---|---|
| 6 Parsonage Way | £ 271,000 | 0.01 KM |
| 12 Parsonage Way | £ 249,950 | 0.01 KM |
| 10 Parsonage Way | £ 249,950 | 0.02 KM |
| 2 Parsonage Way | £ 279,500 | 0.02 KM |
| 13 Artillery Place | £ 101,750 | 0.09 KM |