Upper Ferry Lane, Callow End, Worcester
QU

Upper Ferry Lane, Callow End, Worcester

By QualitySolicitors Parkinson Wright Estate Agents

£ 675,000

Reviews

3 out of 5 stars

QualitySolicitors Parkinson Wright Estate Agents says ..

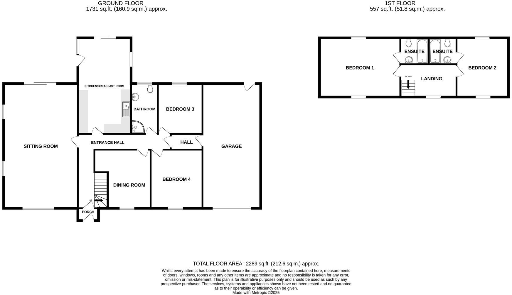
A substantial detached four double bedroom dormer bungalow situated in a good size plot within the popular village of Callow End. Offered with NO CHAIN. EPC D.

Property Oracle says ..

This property is a 4-bedroom, 3-bathroom detached house located in Callow End, a village near Worcester. The property benefits from a good-sized garden and is conveniently located near Callow End Cofe Primary School (0.18km). While the images show the property to be in reasonable condition, some updating may be desirable. The list price of £675,000 is significantly higher than the average house price in the area (£417,727), and the average price per sqft is also above average. However, the larger plot size (2,289 sqft) and detached nature of the property could justify a higher price. More information on the property’s condition and recent comparable sales in the immediate vicinity would be needed to fully assess the value.

Therefore, we give this property 6 / 10. *Disclaimer: This is our option and does constitute a recommendation or financial advice. Do your own research. *

Price
5
Condition
7
Location
8
Land
7
Bedrooms
4
Bathrooms
3
Sqft (est)
1,800.00
Lot (est)
2,289.00

The heatmap indicates the level of crime in the area. The color of the heatmap indicates the crime severity and recency.

Metrics Year-on-Year

Average area value
440,000.00 £
Increased by 10.44 %
from 398,412.00 £
Est sale value
743,400.00 £
Increased by 68.57 %
from 441,000.00 £
Average area rental value
925.00 £/mo
Decreased by 5.13 %
from 975.00 £/mo
Est letting value
0.00 £/mo
from 0.00 £/mo
Est rental Yield
2.52 %
Decreased by 14.29 %
from 2.94 %
Crime Rate
0.00 %
from 0.00 %

Agent Activity

  • QualitySolicitors Parkinson Wright Estate Agents created the listing.

Nearby Schools

NameTypeOfstedDistance
Callow End Cofe Primary SchoolAcademy Converter0.18 KM
Powick Cofe Primary SchoolAcademy Converter2.29 KM
Kempsey Primary SchoolAcademy ConverterGood3.03 KM
Pitmaston Primary SchoolCommunity SchoolOutstanding4.60 KM
Rushwick Cofe Primary SchoolVoluntary Controlled SchoolRequires improvement4.66 KM

Images

Front (1).jpg Lounge (1).jpg Kitchen (3).jpg Dining Room (3).jpg Garden (4).jpg Bedroom 1.jpg Bedroom 2.jpg Bedroom 4.jpg Lounge (3).jpg Garden (2).jpg Lounge (2).jpg Downstairs bathroom.jpg Ensuite (2).jpg Ensuite (1).jpg Kitchen (1).jpg Bedroom 3 (1).jpg Ensuite 2.jpg Landing (2).jpg Garden (3).jpg Garden.jpg Hall (5).jpg Kitchen (2).jpg Front (3).jpg Garden (5).jpg Hall (2).jpg Hall (4).jpg Sign.jpg

Nearby Streets

NameAverage PriceAverage SqftDistance
Orchard Way £ 000.00 KM

Nearby Transport

NameNLCTLCDistance
Worcester Foregate Street4893WOF6.41 KM
Worcester Shrub Hill4891WOS6.99 KM
Malvern Link4884MVL8.58 KM
Great Malvern4892GMV9.01 KM
Worcestershire Parkway6580WOP9.38 KM

Nearby Listings

AddressPriceTypeScoreDistance
Upper Ferry Lane, Callow End, Worcester £ 675,000BUY6 / 100.00 KM
Upton Road, Worcester £ 450,000BUY7 / 100.03 KM
Upton Road, Callow End £ 325,000BUY6 / 100.06 KM
Upton Road, Callow End £ 325,000BUY7 / 100.06 KM
Upper Ferry Lane, Callow End, Nr Worcester £ 425,000BUY7 / 100.15 KM

Nearby Properties

AddressPriceDistance
7 Upton Road £ 250,0000.05 KM
9 Upton Road £ 315,0000.05 KM
Elder Cottage £ 290,0000.06 KM
11a Upton Road £ 392,0000.06 KM
2 Upton Road £ 472,0000.06 KM