Clifford Grove, Haslington, CW1
By James Du Pavey
£ 500,000
Reviews
3 out of 5 stars
James Du Pavey says ..
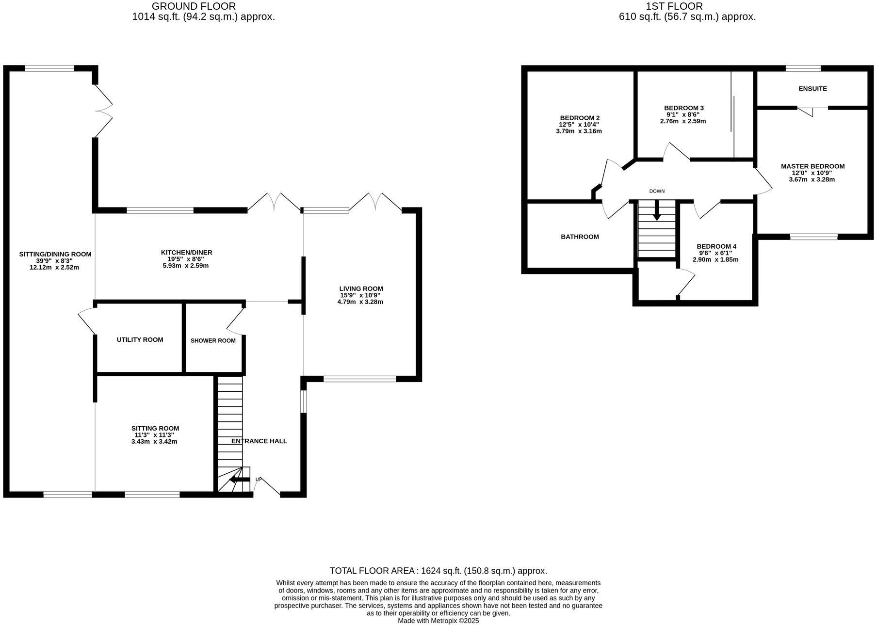
***Guide Price £500,000 - £525,000***Set within the charming and well-connected village of Haslington, this beautifully appointed four-bedroom detached home offers an exceptional blend of style, comfort, and practicality.
Property Oracle says ..
This is a detached property in Haslington, Cheshire East, featuring four bedrooms and three bathrooms. The property spans 1,623.20 sqft and includes a garden. The interior is modern and well-maintained, with a contemporary design. The property benefits from its proximity to local schools and transportation links, including Crewe station. While the listing price is above the local average, the property’s condition and size justify the premium.
Therefore, we give this property 7 / 10. *Disclaimer: This is our option and does constitute a recommendation or financial advice. Do your own research. *
- Price
- 6
- Condition
- 9
- Location
- 7
- Land
- 8
- Bedrooms
- 4
- Bathrooms
- 3
- Sqft (est)
- 1,623.20
The heatmap indicates the level of crime in the area. The color of the heatmap indicates the crime severity and recency.
Metrics Year-on-Year
- Average area value
- 393,216.00 £Increased by 17.54 %
- Est sale value
- 522,670.40 £Increased by 20.15 %
- Average area rental value
- 1,150.00 £/moIncreased by 7.38 %
- Est letting value
- 0.00 £/mo
- Est rental Yield
- 3.51 %Decreased by 8.59 %
- Crime Rate
- 20.00 %Unchanged by 0.00 %
Agent Activity
James Du Pavey created the listing.
Nearby Schools
| Name | Type | Ofsted | Distance |
|---|---|---|---|
| Haslington Primary Academy | Academy Converter | 0.73 KM | |
| The Dingle Primary School | Community School | Good | 1.22 KM |
| Springfield School | Community Special School | Outstanding | 1.83 KM |
| Hungerford Primary Academy | Academy Converter | 2.77 KM | |
| Safe Opportunities | Special Post 16 Institution | 3.15 KM |
Images
Nearby Streets
| Name | Average Price | Average Sqft | Distance |
|---|---|---|---|
| Victoria Avenue | £ 0 | 0 | 0.00 KM |
| Russell Drive | £ 0 | 0 | 0.00 KM |
| Barnes Close | £ 0 | 0 | 0.00 KM |
| West Street | £ 0 | 0 | 0.00 KM |
| Vicarage Road | £ 240,000 | 0 | 0.00 KM |
Nearby Transport
| Name | NLC | TLC | Distance |
|---|---|---|---|
| Crewe | 1243 | CRE | 3.56 KM |
| Sandbach | 1261 | SDB | 5.85 KM |
Nearby Listings
| Address | Price | Type | Score | Distance |
|---|---|---|---|---|
| Clifford Grove, Haslington, CW1 | £ 500,000 | BUY | 7 / 10 | 0.00 KM |
| Clifford Grove, Haslington, Crewe, Cheshire, CW1 | £ 520,000 | BUY | 7 / 10 | 0.01 KM |
| 40 Oakland Avenue, Haslington, Crewe, Cheshire CW1 5PB | £ 150,000 | BUY | Unknown | 0.04 KM |
| Victoria Avenue, Haslington, Cheshire, CW1 5PF | £ 280,000 | BUY | 7 / 10 | 0.05 KM |
| Oakland Avenue, CW1 | £ 170,000 | BUY | 5 / 10 | 0.05 KM |
Nearby Properties
| Address | Price | Distance |
|---|---|---|
| 70 Oakland Avenue | £ 180,000 | 0.05 KM |
| 42 Oakland Avenue | £ 258,500 | 0.05 KM |
| 20 Oakland Avenue | £ 136,000 | 0.05 KM |
| 30 Oakland Avenue | £ 159,000 | 0.05 KM |
| 34 Oakland Avenue | £ 170,000 | 0.05 KM |