Belvoir says ..
A smart, recently built, contemporary semi-detached house set in a thoughtfully considered development with more than 100 acres of green space, just a 15 minute stroll into Wantage.
Property Oracle says ..
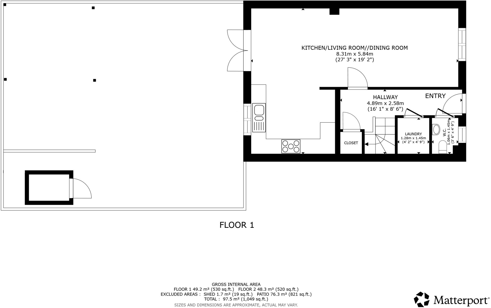
This is a well-presented semi-detached property located in Wantage Charlton. The house features modern interiors, a well-maintained garden, and is situated within a reasonable distance of local schools. The property appears to be in excellent condition, requiring no immediate renovations. The asking price of £375,000 seems fair when compared to similar properties in the area, making it an attractive option for potential buyers, especially families. The proximity to local amenities and transport links further enhances its appeal.
Therefore, we give this property 7 / 10. *Disclaimer: This is our option and does constitute a recommendation or financial advice. Do your own research. *
- Price
- 8
- Condition
- 9
- Location
- 7
- Land
- 7
- Bedrooms
- 3
- Bathrooms
- 2
- Sqft (est)
- 183.42
The heatmap indicates the level of crime in the area. The color of the heatmap indicates the crime severity and recency.
Metrics Year-on-Year
- Average area value
- 382,443.00 £Decreased by 0.54 %
- Est sale value
- 87,124.50 £Increased by 51.27 %
- Average area rental value
- 1,581.00 £/moIncreased by 11.97 %
- Est letting value
- 183.42 £/moUnchanged by 0.00 %
- Est rental Yield
- 4.96 %Increased by 12.47 %
- Crime Rate
- 76.00 %Unchanged by 0.00 %
Agent Activity
Belvoir created the listing.
Nearby Schools
| Name | Type | Ofsted | Distance |
|---|---|---|---|
| Wantage Primary Academy | Free Schools | 0.33 KM | |
| Charlton Primary School | Academy Converter | Good | 0.89 KM |
| Huckleberry Therapeutic School | Other Independent Special School | 1.10 KM | |
| Wantage Church Of England Primary School | Academy Converter | Good | 2.55 KM |
| Grove Church Of England School | Academy Converter | Good | 2.66 KM |
Images
Nearby Streets
| Name | Average Price | Average Sqft | Distance |
|---|---|---|---|
| Hawkey Road | £ 431,498 | 0 | 0.00 KM |
| Poppy Road | £ 625,000 | 0 | 0.00 KM |
| Hazel Grove | £ 0 | 0 | 0.00 KM |
| Rutherford Road | £ 190,000 | 0 | 0.00 KM |
| Flowe Drive | £ 217,000 | 0 | 0.00 KM |
Nearby Listings
| Address | Price | Type | Score | Distance |
|---|---|---|---|---|
| Goodenough Drive, Wantage, OX12 | £ 375,000 | BUY | 7 / 10 | 0.00 KM |
| Goodenough Drive, Wantage | £ 500,000 | BUY | 7 / 10 | 0.00 KM |
| Hawkey Road, Wantage, OX12 | £ 380,000 | BUY | 6 / 10 | 0.08 KM |
| Rae Crescent, Wantage, OX12 | £ 390,000 | BUY | 6 / 10 | 0.09 KM |
| Cowslip Road, Wantage, OX12 | £ 425,000 | BUY | 7 / 10 | 0.15 KM |
Nearby Properties
| Address | Price | Distance |
|---|---|---|
| 4 Whitehorns Farm Road | £ 640,000 | 0.46 KM |
| 9 Whitehorns Farm Road | £ 525,000 | 0.46 KM |
| 6 Whitehorns Farm Road | £ 581,500 | 0.46 KM |
| 2a Whitehorns Farm Road | £ 295,000 | 0.46 KM |
| 12 Whitehorns Farm Road | £ 400,000 | 0.46 KM |